家居精神與設計理念融合,打造實用與美觀兼具的現代住宅,是 設計師為業主一家打造的設計思路。
業主希望整個空間簡潔耐看,設計師完美的還原了業主對于家居 生活的暢想,不僅僅考慮了美觀也將起居、收納、烹飪、休閑等 多種家居功能涵蓋于設計中。從業主一家的生活方式出發,量身 打造設計方案。
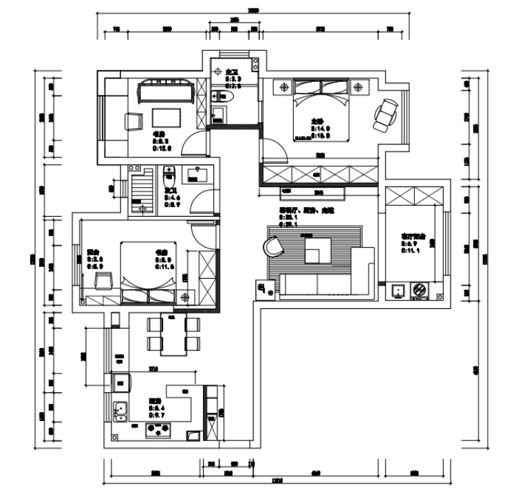
原始戶型廚房預留的面積較小,上方空間不充分利用起來有些許 浪費。客廳面積較大,陽臺也有些大。
針對業主希望有書房的想法,我們在設計的時候就將廚房做成了 半開放式的設計,將上方空間作為餐廳使用。客廳衛生間旁的位 置,直接開發出來當做臥室,并將陽臺納入室內,擴大使用面積 。
玄關
玄關處的布置較為簡單,不做吊頂直接裝上筒燈拉高視覺感。一 面墻體裝上鏡子,整理儀容的同時增加了視覺空間感。
另一側墻體做了個內嵌的鞋柜,功能分區明確。中部凹槽部分掛 雨傘、帽子、包包、鑰匙等,橫切面還能當做換鞋凳,底部抽屜 用來收納進出常用小物件。
定制的鞋柜特意做了個展示區,黑框玻璃門內置燈帶,擺上業主 收藏的鞋,質感滿滿。展示區右側作為收納區,底部留空不設腳 踢板,方便進出換鞋也方便打掃。
客廳
整個客廳光線充足,顏色淡雅舒適,綠植點綴也給整個空間帶來 了更多的自然氣息。陽臺與客廳之間不設門,有效增加了室內采 光。
淺灰色系的地板與電視背景墻、米色的沙發占據了主要的視覺色 彩,一個跳躍但不失穩重的棕色單人沙發與裝飾畫給整個空間帶 來了一些優雅的味道。
舍棄了傳統的大落地茶幾,選擇了圓形的造型茶幾,呼應頂部的 圓形燈,顯得和諧統一。
電視背景墻以巖板打底,底部打上吊柜用作收納,中部鏡面的設 定,精致又時尚。
餐廳
餐廳置于廚房前方,一張四方桌搭上幾張黑色皮質靠椅,頂上垂 下一盞金色吊燈,簡單的布置,即構成一個溫馨的就餐空間。
格柵窗戶的布置,更有氛圍感。窗臺鋪設巖板,種上綠植,增添 一抹生機。底部按上烤箱與抽屜,邊側打上儲物柜,空間利用率 十足。
餐廳留有的空間不大,對于背景墻的布置就較為簡單,僅僅掛上 了一幅裝飾畫用來點綴,避免繁復的配置壓縮空間。
廚房
一個迷你的小吧臺兼具空間隔斷和使用性,將餐廳與廚房劃分開 來,并延伸了廚房的操作臺面。
白色瓷磚墻面提升了空間的亮度,集成灶與櫥柜一體,操作簡單 使用方便。按壓式的抽屜與柜門,讓整體更美觀和諧。
水槽選用了當下流行的臺下盆設計,方便清理。提前做好規劃, 讓電器完美納入柜子與墻體空隙中,讓小小的空間得到了完美的 使用。
主臥
奶茶系的溫柔配色加上氛圍十足的線條燈光,整個臥室的空間充 滿了放松的味道。低飽和度的淺奶茶色皮質家具與淺灰色的乳膠 漆墻面,以不同的材質碰撞出低調的高級感。
梳妝吊柜一側置于床頭柜上,底部安置靠椅,整體以金色線條進 行勾勒,再配上一面金色鏡子,以簡單的造型呈現別樣的精致與 奢華氣質。
次臥
原有陽臺直接納入室內,擴大室內使用面積。雙眼皮吊頂以線條 進行勾勒,營造出層次感。床頭垂下一盞金屬環狀吊燈,于精致 中呈現一絲浪漫風情。
墻面以淺灰色打底,裝上拼接而成的創意裝飾畫,別致有趣。邊 側打上通頂衣柜,滿足業主基本收納需求。
窗戶邊布置一方書桌,上方打上吊柜,增加次臥收納。底部留有 一個凹槽,方面業主存放常用書籍。
茶室
設計師結合屋主的生活習慣,設計了這樣的一個茶室,深木色讓 整個空間韻味十足。偶爾小憩一下,讓大腦放松,這樣的一個茶 室再好不過。
中式立柜的布置,為整個空間帶來更深層次的文化底蘊。角落留 置出來,擺上一棵高大的發財樹,美化空間的同時還帶來良好的 寓意。
衛生間
推拉玻璃門隔斷出淋浴間,避免整個衛生間水汽氤氳。淋浴間壁 龕的設計,方便業主臨時存放洗浴用品與衣物。
墻面地面瓷磚黑白相間,裝點空間的同時帶來一絲趣味。地面安 置大排水地漏,下水更快,避免洗澡的時候水漬堆積。
鏡面做柜門,內部用作收納,上方安置補光燈,集美觀與實用于 一體。洗手臺選用吊柜加墻排的設計,底部打掃更方便。
陽臺
依據業主的需求,客廳原有的大陽臺保留。一側安裝了洗衣柜與 水槽,洗衣機烘干機內嵌其中,設計完美合理。
另一側空間也不能浪費,除去留下一個小凹槽存放電器外,其余 地方打滿儲物柜,用來安置業主家的雜物。而按壓式柜門的設計 ,讓整體更平滑、更美觀、更和諧。
走廊
走廊延續玄關的設計,以點狀形式安置筒燈,滿足基本照明的同 時營造向上的延伸感。盡頭安置一幅創意風景畫,別具一格。
知精準報價 避裝修深坑
選擇您喜歡的風格
現代輕奢
現代美式
北歐
新中式
歐式
其他
知精準報價 避裝修深坑
選擇房屋面積區間
您的戶型
兩居室
三居室
四居室
五居室
六居室
知精準報價 避裝修深坑
稍等片刻,您的報價正在生中......
知精準報價 避裝修深坑
每日僅限前10名用戶