线上股票配资平台-股票杠杆网站佰朔资本简介-【东方资本】,10倍杠杆炒股,支持中信证券的手机炒股软件,想学炒股怎么入门

24小時咨詢電話
027-82411111
當前位置:首頁 > 家裝資訊 > 裝修百科 > 三陽金城140㎡現代美式,溫馨甜蜜升級
三陽金城140㎡現代美式,溫馨甜蜜升級
發布時間 : 2021-06-18 14:02
來源 :
查看數 :

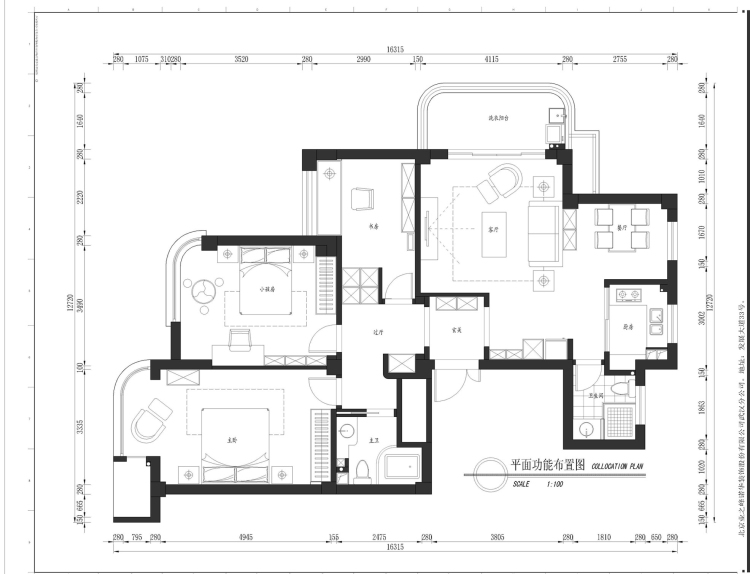
設計師為業主選擇了現代美式風格為主的設計 整體布局流線通暢,整體色調較為明亮,業主是一對年輕婚夫妻,有一個3歲的小孩,所以整體布局設計上較為溫馨甜蜜。溫馨的格局配合深色有質感的家具,體現家庭的品味。
?

兒童房比鄰主臥和書房,父母照顧孩子與輔導其學習很便利。過廳連接玄關并直通客廳與餐廳,孩子活動空間足夠大,足夠釋放其活潑天性。廚房遠離兒童房,減少幼兒觸碰危險幾率。

武漢裝修公司排名

玄關處設定的圓弧框架,懸掛的吊燈與黑白相間的地板交相輝映,墻柜配上風景畫,桌面擺上一盆鮮花,幾個小飾品,在柜燈的點綴下,使整個玄關充滿童話氣息。

武漢裝修公司排名
?
花朵樣的吊燈配上粉色的背景墻,搭上獨特設計的電視柜,茶幾邊環繞幾張條紋布藝椅,與粉色的沙發和諧構成一體,帶有童話般美麗溫馨的氛圍。

武漢裝修公司排名
?
兒童房整體表現為藍白配色,衣柜和床為白色,但對背景墻紙做了獨特的設計,藍色背景搭上白色的揚帆小船,不僅寓意優美,也使得整個空間更加生動。在吊頂燈的照耀下,再配上孩子喜歡的卡通床單被套,妥妥的置身童話世界。

武漢裝修公司排名
?
走廊主要采用粉白配色,除了做些墻柜提升整體利用空間外,最突出的在于拐角處做了木質包邊,不僅利于打掃,細微的弧度也可有效避免孩子受到磕碰傷。

武漢裝修公司排名
預約設計師
海量行家, 搶訂免費設計服務
每日前20名申請用戶, 獲3D裝修設計圖
熱門樓盤
華僑城
琨瑜府
永泰時代
華發外灘首府
復地東湖國際
新華尚水灣
中建御景星城
江山如畫
招商公園1872
銀泰御華園
預約成功
您已報名成功, 稍后會有客服人員聯系您。 您的隱私將被嚴格保密。
關注二維碼了解更多裝修知識
免費獲取同款設計方案
姓名*
樓盤*
電話*
*為了您的權益, 您的隱私將嚴格保密
聯系我們
裝修咨詢電話 : 027-82411111
售后服務電話 : 027-82866788
公司地址 : 武漢市江岸區澳門路232號金冠大廈
關于我們
友情鏈接 :
    武漢澳華裝飾設計工程有限公司 頁面版權所有 www.mami-care.com

    算一算,您家裝修需要花多少錢?

    知精準報價 避裝修深坑

    01/03

    選擇您喜歡的風格

    • 現代輕奢

    • 現代美式

    • 北歐

    • 新中式

    • 歐式

    • 其他

    算一算,您家裝修要花多少錢?

    知精準報價 避裝修深坑

    02/03

    選擇房屋面積區間

    • 80-100㎡
    • 100-140㎡
    • 140-200㎡
    • 200-300㎡
    • 300㎡以上

    03/03

    您的戶型

    • 兩居室

    • 三居室

    • 四居室

    • 五居室

    • 六居室

    算一算,您家裝修要花多少錢?

    知精準報價 避裝修深坑

    0%

    稍等片刻,您的報價正在生中......

    算一算,您家裝修要花多少錢?

    知精準報價 避裝修深坑

    您的完整報價已經生成

    報名成功享搶訂優惠名額

    每日僅限前10名用戶