线上股票配资平台-股票杠杆网站佰朔资本简介-【东方资本】,10倍杠杆炒股,支持中信证券的手机炒股软件,想学炒股怎么入门

24小時咨詢電話
027-82411111
當前位置 : 首頁 > 大咖設計 > 孫雄志
找TA設計
認真負責
DESIGNER
孫雄志 設計總監
從業時間 : 2011 作品數量 :18套
司 : 華中超級旗艦店
業主評價 :
    • 設計思路明確
    • 實用性強
    • 溝通輕松
    • 設計方案有創意
    • 裝修效果有質感
    • 經驗豐富
    輕奢,法式,意式風,北歐
    • 個人簡介
    • 設計理念
    • 經典樓盤
    • 武漢市裝飾協會注冊高級設計師

      5+設計會精英設計師協會會員

      5+設計會精英設計會課員

      武漢市“金意·陶”杯十佳新銳設計師

      2013年第二屆武漢DK設計大賽三等獎

      2016年獲得武漢裝飾協會年度優秀青年設計師

      2017年獲得武漢裝飾協會 年度優秀設計師

      2018年獲得武漢市黃鶴杯設計大賽“三等獎”

      2018年獲得武漢裝飾協會年度優秀設計師

      2019年獲得武漢裝飾協會年度優秀設計師

      2020年武漢市十佳設計師

      2021年獲得武漢裝飾協會年度優秀設計師

    • 去繁從簡 —— 去掉繁雜的設計元素,尋求完善的空間功能。讓快節奏的工作生活在回到家的那一刻慢下來。


    • 華僑城原岸,純水岸東湖,華僑城歡樂天天際,華僑城紅坊,中信泰富濱江金融城,華發外灘首府,華發公園首府,碧桂園云境疊墅,書院世家聯排等

    相關案例
    戶型解析
    在施工地
    其他案例推薦
    相關案例
    戶型解析
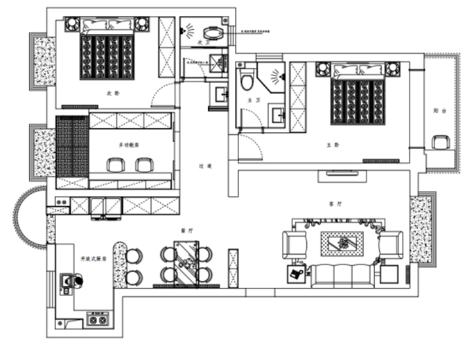
    陸景苑 138㎡ 三居室現代輕奢格調小窩戶型解析
    三居室
    138m2
    輕奢風

        案例簡介:本案例業主夫婦對生活充滿了熱情,偏愛現代簡約風的文化,因此在進行家居設計的時候希望設計師能夠使用最簡約的元素打造出格調感。而在與業主深入交流后,設計師了解到這對夫妻平常最大的興趣愛好就是讀讀書,因此在進行空間規劃的時候預留了一個專門的書房。同時,整體的裝修風格選為現代輕奢風,以滿足業主的審美需求。


        戶型解析:


        陸景苑的這套138㎡的三居室住宅為朝西戶型,整體的結構四四方方且沒有犄角,最大的問題在于不夠通風透氣,且陽光難以進入室內。因此設計師在進行規劃設計的時候,很大程度上保留了原來的戶型功能結構,同時將各個功能區域的窗戶進行擴大處理,有的直接改造為落地窗,以提升室內采光、通風效果。


        客廳:



        客廳區域以灰色為主基調色,點綴以少量黑色,簡約耐看而又時尚。圓形吊燈簡約而又不失設計感,為空間增添藝術氣息。


        餐廳:




        就餐區域面積并不大,因此設計師在設計師沒有使用繁瑣的設計,而是借助木材的紋理裝飾空間,再點綴以綠植,清新耐看。


        廚房:



        為了節約室內空間,廚房被打造為半開放式,同時借助吧臺打造迷你就餐區域,有效提升空間利用率。


        書房:



        為提升空間利用率,書房空間選用了大量收納設計。同時,借助大面積的窗戶引進自然光,提升書房使用舒適度。


        臥室:





        簡約的白色點綴上深色床具,質樸簡約而又不失高級感。與白色墻面融為一體的衣柜實用性強且不會過于突兀。


    在施工地
    • 開工
    • 前期
    • 中期
    • 后期
    • 竣工
    預約設計師
    海量行家, 搶訂免費設計服務
    每日前20名申請用戶, 獲3D裝修設計圖
    預約設計師
    姓名*
    樓盤*
    電話*
    *為了您的權益, 您的隱私將嚴格保密
    推薦相關案例
    免費獲取同款設計方案
    姓名*
    樓盤*
    電話*
    *為了您的權益, 您的隱私將嚴格保密
    預約成功
    您已報名成功, 稍后會有客服人員聯系您。 您的隱私將被嚴格保密。
    關注二維碼了解更多裝修知識
    聯系我們
    裝修咨詢電話 : 027-82411111
    售后服務電話 : 027-82866788
    公司地址 : 武漢市江岸區澳門路232號金冠大廈
    關于我們
    友情鏈接 :
      武漢澳華裝飾設計工程有限公司 頁面版權所有 www.mami-care.com

      算一算,您家裝修需要花多少錢?

      知精準報價 避裝修深坑

      01/03

      選擇您喜歡的風格

      • 現代輕奢

      • 現代美式

      • 北歐

      • 新中式

      • 歐式

      • 其他

      算一算,您家裝修要花多少錢?

      知精準報價 避裝修深坑

      02/03

      選擇房屋面積區間

      • 80-100㎡
      • 100-140㎡
      • 140-200㎡
      • 200-300㎡
      • 300㎡以上

      03/03

      您的戶型

      • 兩居室

      • 三居室

      • 四居室

      • 五居室

      • 六居室

      算一算,您家裝修要花多少錢?

      知精準報價 避裝修深坑

      0%

      稍等片刻,您的報價正在生中......

      算一算,您家裝修要花多少錢?

      知精準報價 避裝修深坑

      您的完整報價已經生成

      報名成功享搶訂優惠名額

      每日僅限前10名用戶