线上股票配资平台-股票杠杆网站佰朔资本简介-【东方资本】,10倍杠杆炒股,支持中信证券的手机炒股软件,想学炒股怎么入门

24小時咨詢電話
027-82411111
當前位置 : 首頁 > 大咖設計 > 王晶
找TA設計
經驗豐富
DESIGNER
王晶 設計總監
從業時間 : 2004 作品數量 :10套
司 : 總部旗艦店
業主評價 :
    • 親自指導施工
    • 工作細致
    • 設計精細
    • 設計方案有創意
    • 認真負責
    • 審美品位高
    輕奢,美式,新中式,歐式
    • 個人簡介
    • 設計理念
    • 經典樓盤

    • 行業資質:

      中國裝飾協會高級會員

      中國建筑裝飾協會高級室內建筑師


      榮獲獎項:

      2017年第三屆空間藝術設計大賽(友誼杯)一等獎

      2018第六屆HI-Design室內設計大賽優秀作品獎

      2019年歐亞達DK設計大賽金獎

      2020年福田杯中國十佳設計師

      2021年第五屆空間環境藝術設計大賽(歐普杯)優秀獎

      2022年中國室內設計年度評選設計優秀獎


    • 設計源于生活,生活因設計而改變!成就空間和諧,讓設計無憂所值,讓細節締造完美!


    • 復地東湖,元舍,月亮灣壹號,西北湖壹號,華僑城,漢口城市廣場,夢湖香郡,頂琇國際城,華發外灘首府,華潤翡翠城

    相關案例
    戶型解析
    在施工地
    其他案例推薦
    相關案例
    戶型解析
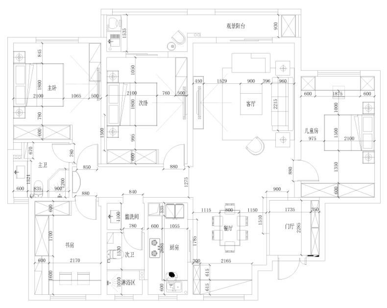
    復地東湖國際 170㎡四居室美式格調住宅戶型解析
    四居室
    170m2
    美式

        案例簡介:本案例的業主是高級白領,對家有著自己獨特的了解,因此在與設計師交流的時候表達了自己希望擁有一個個性化的家居空間。同時,由于業主夫婦目前帶有一個剛上幼兒園的小朋友,因此在設計的時候希望能夠將童真也融入其中,為孩子打造一個趣味十足的生活空間。基于此,設計師選擇了個性感相對比較濃厚的美式裝修風格,再搭配以各種清新明麗的色彩,來營造一種自由灑脫而又不失童真的個性家居。


        戶型解析:






        復地東湖國際這套170㎡的四居室住宅戶型相對比較平整方正,而由于入戶門在房屋偏角處,因此設計師在進行規劃設計時就利用入戶門軸向作一個劃分,將作伴區域作為業主的辦公、休憩區域、中間則設置為會客區域,右邊則打造為兒童房,有效提升了各個功能區域的劃分。


        玄關:




        一個簡潔的白色儲物柜搭配上褐色矮腳小凳就構成了玄關處的軟裝,簡約耐看而又不失實用性。


        客廳:


        淺藍色墻面搭配上簡約的風景畫,一種悠然自得的清新感流淌在空間。而柔軟的深灰色絲絨沙發,則為空間增添了品質格調。


        餐廳:




        淡藍色的墻面為就餐區域增添了一抹清新明麗的氛圍,而造型優雅的餐座椅則讓整個就餐區域多了一抹精致的浪漫感。


        廚房:




        大面積的淺色瓷磚確保了廚房油煙能夠得到更好的清理,而懸掛式櫥柜的存在則有效提升了空間利用率。


        臥室:




        臥室區域使用了大面積的淺色作為主基調色,營造溫馨柔和氛圍,而撞色的床具則讓整個臥室更具個性感。


        衛生間:






        半圓弧的玻璃滑門既可以起到干濕分離的作用,又為衛生間增添了一抹藝術氛圍。


    在施工地
    • 開工
    • 前期
    • 中期
    • 后期
    • 竣工
    預約設計師
    海量行家, 搶訂免費設計服務
    每日前20名申請用戶, 獲3D裝修設計圖
    預約設計師
    姓名*
    樓盤*
    電話*
    *為了您的權益, 您的隱私將嚴格保密
    推薦相關案例
    免費獲取同款設計方案
    姓名*
    樓盤*
    電話*
    *為了您的權益, 您的隱私將嚴格保密
    預約成功
    您已報名成功, 稍后會有客服人員聯系您。 您的隱私將被嚴格保密。
    關注二維碼了解更多裝修知識
    聯系我們
    裝修咨詢電話 : 027-82411111
    售后服務電話 : 027-82866788
    公司地址 : 武漢市江岸區澳門路232號金冠大廈
    關于我們
    友情鏈接 :
      武漢澳華裝飾設計工程有限公司 頁面版權所有 www.mami-care.com

      算一算,您家裝修需要花多少錢?

      知精準報價 避裝修深坑

      01/03

      選擇您喜歡的風格

      • 現代輕奢

      • 現代美式

      • 北歐

      • 新中式

      • 歐式

      • 其他

      算一算,您家裝修要花多少錢?

      知精準報價 避裝修深坑

      02/03

      選擇房屋面積區間

      • 80-100㎡
      • 100-140㎡
      • 140-200㎡
      • 200-300㎡
      • 300㎡以上

      03/03

      您的戶型

      • 兩居室

      • 三居室

      • 四居室

      • 五居室

      • 六居室

      算一算,您家裝修要花多少錢?

      知精準報價 避裝修深坑

      0%

      稍等片刻,您的報價正在生中......

      算一算,您家裝修要花多少錢?

      知精準報價 避裝修深坑

      您的完整報價已經生成

      報名成功享搶訂優惠名額

      每日僅限前10名用戶