設計獨特
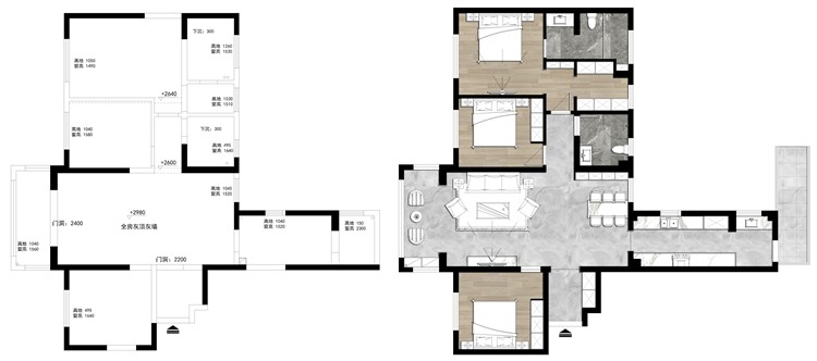
案例簡介:本案例的客戶是一口三家,其中男主人是大公司的高管,他希望家居空間能夠呈現靜謐的舒適感,以提升自己休憩質量。設計師在與業主一家三口進行深入的溝通之后,選擇了輕奢風進行軟裝,同時借助深色系的色彩來營造一種空間的靜謐氛圍。為了給孩子營造一個充滿童真感的休憩空間,兒童房則借助各類幼兒化的元素進行裝飾點綴,打造孩子的夢幻天堂。
戶型解析:

這套位于泛海國際的四居室住宅建筑面積約為175㎡,戶型結構雖然不算很規整,但是好在也沒有各種難以設計處理的犄角空間。為了將空間更加合理的利用,設計師將房屋中相對比較突兀的區域改造成廚房,這樣能夠借助戶型的結構將廚房油煙更好的釋放出室外。同時,為了提升主人的家居質量,內部兩個小空間則直接融入主臥中改造成主臥附帶的衛浴空間與迷你衣帽間。
客廳:

大面積的核桃木搭配上深灰色的暗紋地毯,營造一種幽深的靜謐感,大面積的落地窗則讓城市的繁華景象成為室內裝飾點綴。
餐廳:

簡約的灰色餐桌椅強調實用性,墻面處的壁畫則為就餐區域增添藝術時尚氛圍。
廚房:

廚房空間相對比較狹長,因此設計師沒有做過多的設計,而是強調可能性,同時借助簡約的暗紋瓷磚提升廚房空間的品質格調感。
臥室:



灰色背景墻搭配上嵌入式衣柜,整體給人靜謐柔和感,由線條組成的掛畫簡約清新而又不失個人色彩。
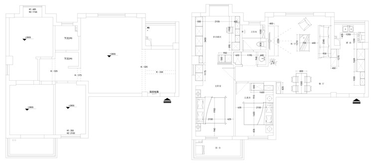
案例簡介:本案例的業主是一對年輕的95后夫妻,作為九零后的他們對于生活有著自己的感悟,他們張揚外放且追求獨特與個性,因此希望設計師能夠打造出一個不落俗套的個性化家居。為滿足業主的喜好與審美,設計師選用前衛風進行軟裝,借助各類不常見的元素及色彩組合強調空間的個性感,同時借助不同線條的組合,來營造空間的結構感與層次感。
戶型解析:

舒心苑這套三居室的住宅占地面積約為145㎡,整個戶型結構相對比較規整,不過原有的戶型結構并不能很好滿足業主的使用需求,因此設計師將主臥區域與外部陽臺空間直接打通,將小陽臺直接納入主臥,提升臥室區域的舒適感與采光度。為了滿足業主在家辦公及閱讀需求,設計師將其中一個次臥改造成小書房,同時將客衛的面積向書房延伸,提升衛浴空間的占地面積,以滿足正常使用需求。
客廳:


裸墻面搭配上結構式處理簡約而又不失個性摩登感,又曲線型打造的地板搭配上圓形茶幾,營造超現代的獨特品味感。
餐廳:


可收納式的臺面有效提升空間利用率,嵌入式雙開門大冰箱時尚感十足而又不失實用性。
臥室:

淺色系色彩強調空間潔凈溫馨感,融入臥室的儀態空間則直接改造成梳妝臺,借助天然光線滿足日常梳妝打扮的需求。
衛生間:

玻璃滑門讓干濕分離更為合理,大理石材料所打造的臺面優雅又高級。
案例簡介:本案例的主人公是一對即將走入婚姻殿堂的85后夫婦,其中男主人是畫家,對藝術與時尚有著較高的追求,因此希望在家中設計中能夠融入一些藝術感的元素。房屋的女主人作為教師則偏愛簡約的元素,如何將簡約與藝術進行融合是本次的設計要點。設計師根據夫妻二人的喜好選擇了現代簡約風進行軟裝,同時借助定制式家具與細節處理來提升整個家居環境的藝術感。
戶型解析:

這套位于銀泰御華園的三居室住宅建筑面積約為110平方米,原有的戶型結構相對比較規整,且已經完成了基本的功能分區,因此設計師沒有對空間格局進行大改動,以幫助業主節約一定的裝修花銷。為了提升空間的利用率與簡潔感,設計師在各個空間均融入了大量的收納式設計,以便空間更好打理。同時借助定制式的家具,為營造空間的個性感與藝術氛圍。
客廳:


原本色搭配上白色強調空間簡約整潔氛圍,曲線型沙發、圓形吊頂以及圓形地毯則通過線條的變化來提升空間的獨特藝術氛圍。
臥室:

大面積落地窗有效提升臥室采光,藕粉色背景墻營造溫馨靜謐感,搭配上色彩裝飾,簡約而又時尚。
書房:

大面積的白色墻面點綴上原木色椅子,營造視覺沖擊感。
衛生間:


以白色包圍的衛生間整體呈現潔凈舒適氛圍,玻璃推拉門則有效起到干濕分離作用
| 姓名* | |
| 樓盤* | |
| 電話* | |
| 姓名* | |
| 樓盤* | |
| 電話* | |
知精準報價 避裝修深坑
選擇您喜歡的風格
現代輕奢
現代美式
北歐
新中式
歐式
其他
知精準報價 避裝修深坑
選擇房屋面積區間
您的戶型
兩居室
三居室
四居室
五居室
六居室
知精準報價 避裝修深坑
稍等片刻,您的報價正在生中......
知精準報價 避裝修深坑
|
每日僅限前10名用戶