成熟穩重
案例簡介:復式住宅雖然可利用面積更多,但是存在著樓梯結構,因此在進行規劃設計的時候一定要充分利用好樓梯處的面積,否則不僅會造成空間浪費,還會影響整體美觀性。設計師在與業主進行深入的溝通之后,舍棄樓道區域的再利用,借助綠植提升空間的美觀度。而二層外部區域則就用玻璃走廊進行圍隔,避免出現安全隱患的同時還不會造成空間的擁堵感。
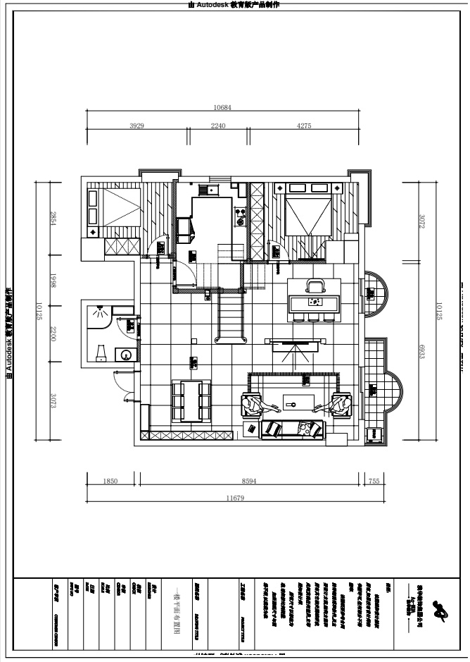
戶型解析:




聚豪華庭這套190㎡的四居室為復式樓,客廳擁有大陽臺,通風采光好,戶型方正,結構合理,空間適中,是一套不可多得的經典戶型。為了提升房屋整體美觀度,設計師借用“Y”形樓梯進行一二層空間的銜接,而樓梯扶手處則利用帶有金屬線條降表處理的玻璃進行打造,簡約而又不失雍容典雅。二層空間層高相對比較矮,因此設計師選用了大量矮腳家具進行裝飾,避免出現空間違和感。
客廳:



大面積的白色點綴上少量黑色,經典耐看而又不失現代時尚氣息。
餐廳:

就餐區域被設置在一樓,借助大理石臺面打造餐桌,簡約而又不失輕奢高級感。
衣帽間:

白色櫥柜搭配上原色色地板,兩種素色之間的組合清新而又不失結構美。
衛生間:


為提升衛生間區域的潔凈感,設計師選用了大面積的白色作為衛生間主基調色,搭配以少量綠植進行點綴,清新又高雅。
案例簡介:本案例的主人公家庭成員較多,因此希望設計師在進行室內裝飾設計的時候能夠從不同家庭成員的需求考慮出發,確保房屋能夠滿足不同年齡段家庭成員的起居使用需求。根據業主的介紹與需求,設計師選擇了受眾較廣且相對易于打理的現代簡約風進行室內軟裝,同時按照業主家庭成員的休憩需求劃分出多個房屋,再借不同的元素進行裝飾,以滿足不同年齡段居住者的審美需求。
戶型解析:


百瑞景這套16-㎡的四居室住宅戶型相對比較平整,且已經進行了基礎的功能分區,因此設計師的職責就是在原有的結構基礎上進行裝飾設計,同時按照業主不同家庭成員的需求進行合理的空間再分配。由于老年人對于空間的安靜度要求較高,因此設計師將房屋中獨立性較強的區域打造成長者房,以提升老人的休憩質量。為了便于業主照顧小孩,兒童房與主臥則被打造在相近的區域。
客廳:



木質柵欄式的背景墻簡約而又不失清新感,搭配上灰色沙發,整體給人柔和舒適的高級感。
餐廳:


嵌入式雙開大冰箱存在感不強且能夠滿足日常使用需求,長條形淺色餐桌耐看且能夠滿足多位家庭成員的就餐需求。
主臥:

為了提升主臥區域的靜謐感,設計時使用了相對比較柔和的灰白配色,同時借助柔軟的地毯與溫潤感十足的木質地板來營造休憩空間的溫馨柔和氛圍。
兒童房:

為了避免后續再進行返工,設計師在進行兒童房設計的時候沒有使用到較多童真感的元素,而是借助黑白灰的經典配色強調空間耐看度與舒適度,以滿足長期使用需求。
案例簡介:本案例的業主是一位剛剛留學歸來的95后女學生,這套由父母購置的房屋將按照她的喜好與想法進行裝飾設計。而剛剛從歐洲回來的她對歐洲文化有著濃烈的興趣,因此希望能夠在家裝中融入歐式文化,強調個性與古典。為了滿足業主的審美,設計師選用了傳統的歐式風進行軟裝,搭配以各種歐式元素,強調空間高檔貴氣氛圍。
戶型解析:




中建文化星城的這套三居室的建筑面積大約為125㎡,戶型方正且結構合理,整體通風采光不錯,因此整個的戶型結構無需進行過多的調整。按照業主的想法,設計師將現代元素與歐式文化進行融合,將雍容華貴與現代時尚進行完美融合,在突出房屋本身結構優勢的同時彰顯業主的個人品味。
客廳:



繁瑣的造型設計、華貴的燈飾營造了一個高檔而又復古的貴族氛圍。而小清新感十足的淡藍色壁紙,則降低了空間的繁瑣感與壓抑感。
臥室:

藍色衣柜與床頭墻的色彩相呼應,強調空間的一致性。同時借助曲線勾勒床體,打造空間的富麗堂皇貴族感。
知精準報價 避裝修深坑
選擇您喜歡的風格
現代輕奢
現代美式
北歐
新中式
歐式
其他
知精準報價 避裝修深坑
選擇房屋面積區間
您的戶型
兩居室
三居室
四居室
五居室
六居室
知精準報價 避裝修深坑
稍等片刻,您的報價正在生中......
知精準報價 避裝修深坑
每日僅限前10名用戶