线上股票配资平台-股票杠杆网站佰朔资本简介-【东方资本】,10倍杠杆炒股,支持中信证券的手机炒股软件,想学炒股怎么入门

24小時咨詢電話
027-82411111
當前位置 : 首頁 > 大咖設計 > 許順
找TA設計
細心耐心
DESIGNER
許順 主任設計師
從業時間 : 2004 作品數量 :7套
司 : 總部旗艦店
業主評價 :
    • 設計非常走心
    • 溝通輕松
    • 建議很合理
    • 工作認真負責
    • 思路明確
    • 配色非常美
    輕奢,法式,美式,中古風,意式風
    • 個人簡介
    • 設計理念
    • 經典樓盤
    • 中國建筑裝飾協會注冊室內高級設計師

      2014年度 美化家居設計大賽優秀設計獎

      2016年度 《筑巢獎》優秀設計獎

      2017年度 APDC亞太室內設計大賽優秀設計獎

      2018年度 IDEA-TOPS國際空間設計入圍獎

    • 讓藝術與生活零距離,用設計詮釋生活,用靈感點亮生活。


    • 同鑫花園、都會軒、南國明珠、福星華府、華潤翡翠城


    相關案例
    戶型解析
    在施工地
    其他案例推薦
    相關案例
    戶型解析
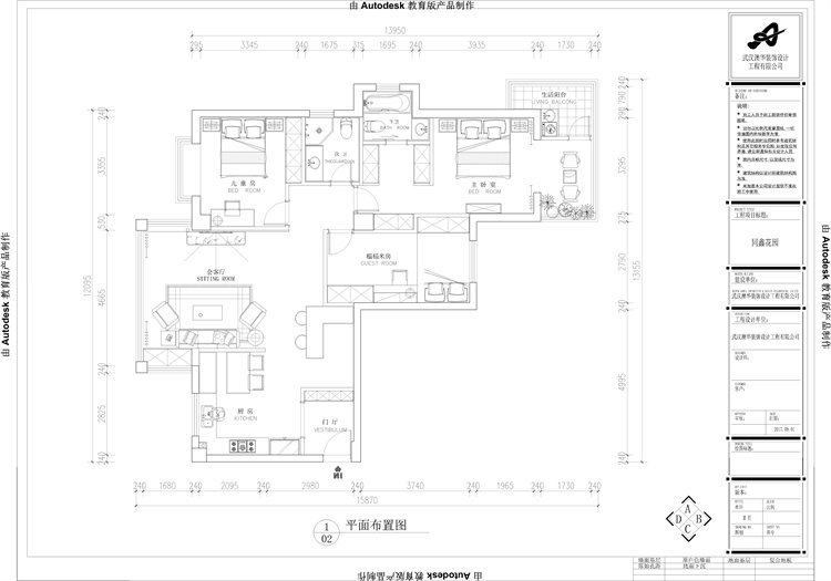
    同鑫花園159㎡三居室現代簡約時尚家居戶型解析
    三居室
    159m2
    現代簡約

        案例簡介:本案例的業主是一對年輕的90后夫妻,家中的常住人口除了夫妻二人之外還有一個剛上小學的孩子,偶爾父母也會過來探望。因此設計師在進行規劃設計的時候,優先考慮業主夫婦與孩子的起居使用需求,同時為業主選擇了簡約時尚風進行裝飾,借助各類現代化的元素打造出一個時尚而又不失品味的高級家居。


        戶型解析:


    1.jpg


        同鑫花園這套159㎡的三居室房屋整個的戶型結構并不規整,但也相對比較常見,整體呈現“L”形,因此需要設計師更加合理的進行空間規劃,避免由于戶型結構不夠規整帶來的壓抑感與局限感。根據業主的需求,設計師將主臥外部空間與主臥區域直接打通,并改造成一個臥室內的衛浴空間,提升主人日常洗漱的便利性。而為了滿足業主的閱讀、辦公需求以及老人偶爾過來探望的居住需求,設計師將一個次臥改造成書房,同時搭配上可收縮式家具,以滿足使用需求。


        客廳:


    2.jpg


        大面積的大理石背景墻與白色水泥墻相得益彰,既不會過于突兀又能夠提升空間品質格調感。


        臥室:


    5.jpg


        菱形色彩構成的墻面簡約而又不失濃烈的個人色彩,有效提升了空間的品味感與藝術氛圍。


        衛生間:





        衛生間借助大面積白色進行裝飾,搭配上灰色儲物柜,簡約而又不失潔凈清新感。


    在施工地
    • 開工
    • 前期
    • 中期
    • 后期
    • 竣工
    預約設計師
    海量行家, 搶訂免費設計服務
    每日前20名申請用戶, 獲3D裝修設計圖
    預約設計師
    姓名*
    樓盤*
    電話*
    *為了您的權益, 您的隱私將嚴格保密
    推薦相關案例
    免費獲取同款設計方案
    姓名*
    樓盤*
    電話*
    *為了您的權益, 您的隱私將嚴格保密
    預約成功
    您已報名成功, 稍后會有客服人員聯系您。 您的隱私將被嚴格保密。
    關注二維碼了解更多裝修知識
    聯系我們
    裝修咨詢電話 : 027-82411111
    售后服務電話 : 027-82866788
    公司地址 : 武漢市江岸區澳門路232號金冠大廈
    關于我們
    友情鏈接 :
      武漢澳華裝飾設計工程有限公司 頁面版權所有 www.mami-care.com

      算一算,您家裝修需要花多少錢?

      知精準報價 避裝修深坑

      01/03

      選擇您喜歡的風格

      • 現代輕奢

      • 現代美式

      • 北歐

      • 新中式

      • 歐式

      • 其他

      算一算,您家裝修要花多少錢?

      知精準報價 避裝修深坑

      02/03

      選擇房屋面積區間

      • 80-100㎡
      • 100-140㎡
      • 140-200㎡
      • 200-300㎡
      • 300㎡以上

      03/03

      您的戶型

      • 兩居室

      • 三居室

      • 四居室

      • 五居室

      • 六居室

      算一算,您家裝修要花多少錢?

      知精準報價 避裝修深坑

      0%

      稍等片刻,您的報價正在生中......

      算一算,您家裝修要花多少錢?

      知精準報價 避裝修深坑

      您的完整報價已經生成

      報名成功享搶訂優惠名額

      每日僅限前10名用戶