
案例簡介:本案例的主人公是一對即將走入婚姻殿堂的85后夫婦,其中男主人是畫家,對藝術與時尚有著較高的追求,因此希望在家中設計中能夠融入一些藝術感的元素。房屋的女主人作為教師則偏愛簡約的元素,如何將簡約與藝術進行融合是本次的設計要點。設計師根據夫妻二人的喜好選擇了現代簡約風進行軟裝,同時借助定制式家具與細節處理來提升整個家居環境的藝術感。
戶型解析:

這套位于銀泰御華園的三居室住宅建筑面積約為110平方米,原有的戶型結構相對比較規整,且已經完成了基本的功能分區,因此設計師沒有對空間格局進行大改動,以幫助業主節約一定的裝修花銷。為了提升空間的利用率與簡潔感,設計師在各個空間均融入了大量的收納式設計,以便空間更好打理。同時借助定制式的家具,為營造空間的個性感與藝術氛圍。
客廳:


原本色搭配上白色強調空間簡約整潔氛圍,曲線型沙發、圓形吊頂以及圓形地毯則通過線條的變化來提升空間的獨特藝術氛圍。
臥室:

大面積落地窗有效提升臥室采光,藕粉色背景墻營造溫馨靜謐感,搭配上色彩裝飾,簡約而又時尚。
書房:

大面積的白色墻面點綴上原木色椅子,營造視覺沖擊感。
衛生間:


以白色包圍的衛生間整體呈現潔凈舒適氛圍,玻璃推拉門則有效起到干濕分離作用
案例簡介:對于忙于工作的都市白領們來說,家居環境越簡潔越好,因為簡潔不僅僅代表著清新耐看,更意味著易于打理,因此本案例的業主多次跟業主強調不要使用過多花里胡哨的設計,整體一定要簡潔。根據業主的想法與喜好,設計師選擇了相對比較穩妥且耐看的現代簡約風進行裝飾,同時借助線條的組合來營造空間的結構感與品質感。
戶型解析:


世紀江尚這套三居室住宅的面積約為138㎡,整體戶型并不規整,存在著難以規劃設計的犄角空間,因此對設計師有著更高的考驗。出于充分利用空間的想法,設計師將房屋中最畸形的一塊區域改造成廚房,借助定制式臺面降低犄角的存在感,同時利用合理的裝飾點綴來化解空間的局限感與壓迫感,進而確保空間的犄角區域能夠得到更為合理的利用。
客廳:

客廳區域借助藕色與白色作為主基調色,強調簡約清新美。地毯與墻面上的線條裝飾看似簡單,但是卻從視覺上提升了空間的結構感。
餐廳:

綠色的椅子搭配上黑色桌子,簡約耐看而又不失跳躍時尚感。
臥室:


淡藍色的背景墻搭配上藕色衣柜,整體給人小清新的柔和韻味感。
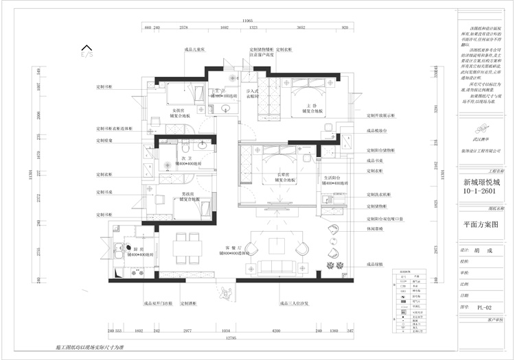
案例簡介:本案例以簡化整合的設計手法,有效改變了空間的舒適感。業主是一位都市白領,小資中帶著輕奢的生活態度,有一定的生活品位。因此設計師在進行規劃設計時,從空間上去考慮整個房子的舒適感,在功能性上考慮人口的居住實用感。整體色調柔和具有個美感,表達了業主的溫馨而典雅的氣質。
戶型解析:

這套位于新城璟悅城的住宅占地面積約為142㎡,原有的戶型結構中只劃分出三個臥室區域,并不能夠很好的滿足業主一家五口的使用需求。設計師根據家中常住人口對房屋進行了再規劃,放大主臥融入衛浴空間的同時,為男孩、女孩以及老人各自單獨劃分出休憩空間,以滿足不同年齡段家庭成員的日常起居使用需求。由于客廳區域面積相對比較狹長,因此就餐區域就直接設計在休憩區域拐角與客廳區域的銜接處,同時借助軟隔斷進行分隔,提升整體空間使用率。
客廳:


白色與原本色的組合清新又耐看,各類線條鑲邊處理則增加了空間的立體感與格調感。
餐廳:

由儲物柜打造的隔斷實用性性而又不失一定觀賞性,白色常卓義搭配上綠色抱枕,簡約而又不失清新活潑感。
臥室:


白色背景墻搭配上對稱式的線條設計,給人以整潔的大氣韻味。無燈具照明則有效提升空間時尚氛圍。
案例簡介:本案采用新中式輕奢設計手法來呈現,對原始戶型進行了局部的調整以來更加優化功能分區。整體色彩采用中性咖灰色系。材質采用復合石材及不免硬包、木飾面、天然石材、不銹鋼、乳膠漆等為主要材料。廚房利用隱藏式移門來滿足日常生活的各種場景。再設計和燈光以及質感為中心理念,圍繞宜居,舒適的生活環境為主導思想,從而呈現出業主滿意并且具備觀賞性及品位的居住空間。
戶型解析:

萬科玖璽這套210㎡的四居室整體較為寬敞,原有的戶型結構中只有四個臥室區域,并不能滿足業主的日常使用需求,因此設計師按照業主的想法與家庭成員的起居使用需求,將其中一個次臥改造成為書房,滿足主人的辦公與孩子的閱讀需求。而其中一個大次臥則一分為二,改造成為兩個小客房,滿足客人的起居使用需求。由于入戶玄關區域面積較為寬敞,設計師將其中一塊區域改造成儲物間,滿足業主們出入替換衣物以及放置物件的使用需求。
客廳:



木質背景墻給人溫潤而又大氣的高級格調感,樓口式設計則滿足日常收納使用需求。
臥室:

簡約古樸的墻面搭配上禪意感十足的圓形山水掛畫,整體給人溫馨的悠然韻味美。
書房:

窗戶旁對稱式的儲物柜設計優雅又耐看,而且有效提升空間利用率,造型復古的桌子搭配上藝術植物擺件,營造悠然古韻美。
衛生間:

大面積瓷磚鋪設墻面,營造清新潔凈感,簡潔的復古山水畫則讓衛浴空間更好的融入整個家居空間中。
案例簡介:本案的業主是一對即將結婚的年輕夫妻,同為白領的他們不喜歡過度裝飾,希望設計師能夠使用一些盡可能簡約的元素裝飾空間,以保障耐看且易于打理。設計師按照業主的喜好與想法,選擇了簡約而又不失品質感的現代輕奢風進行裝飾設計,利用簡潔的元素與色彩強調空間的沉穩優雅氣息,而細節處的設計則提升空間的高級品質感。

戶型解析:
這套中建之星的三居室面積約為160㎡,整體的結構相對比較規整,設計師在進行規劃設計的時候巧妙的借助入戶作為軸線,將空間進行軟隔斷,將其中一部分打造成會客區域,另外一個區域改造成為就餐區域。而走廊盡頭則借助墻面裝飾畫進行點綴,避免走廊空間過于空蕩的同時還有效提升了空間的藝術感與品位感。
客廳:


嵌入式的電視機背景墻設計有效提升空間的現代時尚氣息,淺灰色的背景搭配上直線條則給人沉穩大氣的清新質感。
案例簡介:本案例的業主是一位企業的高管,家中的常住人員除了業主夫妻二人之外,保姆也會在家中居住,因此希望設計師能夠單獨規劃出一塊保姆居住的空間,同時將保姆的空間與其他人的空間分隔開,提升私密性。設計師通過與業主的溝通交流了解到,業主喜歡簡潔有質感的元素,因此選用現代輕奢風進行裝飾設計,利用材料的質感來提升室內環境的檔次感與格調感。
戶型解析:

西北湖一號這套四居室的占地面積約為199㎡,戶型結構并不規整,尤其是入戶區域的空間過多,因此設計師將入戶區域進行改造,借助戶型本身自帶的拐角進行視覺裝飾,提升室內隱私感,同時借用一些色彩、圖案裝飾,提升玄關區域的視覺美感感。為了業主業主及家庭人員的起居使用需求,空間中共規劃了三個衛浴區域,其中主臥帶一個,保姆房帶一個,提升空間私密性,而另外一個則作用共用洗浴空間,滿足客人的使用需求。
客廳:

對稱式的大理石背景墻搭配上黑色嵌入式儲物柜設計,營造高檔品質生活感。
餐廳:

就餐區域借助淡橘色桌椅打造,強調實用性。吊頂處不同類型的燈具,則起到軟隔斷的作用。
臥室:

以線條裝飾打造的墻面簡約而又不失沉穩高級感,圓形巨型吊頂則營造品質格調感。
知精準報價 避裝修深坑
選擇您喜歡的風格
現代輕奢
現代美式
北歐
新中式
歐式
其他
知精準報價 避裝修深坑
選擇房屋面積區間
您的戶型
兩居室
三居室
四居室
五居室
六居室
知精準報價 避裝修深坑
稍等片刻,您的報價正在生中......
知精準報價 避裝修深坑
每日僅限前10名用戶