
案例簡介:本案例的業主是一對年輕的夫婦,兩個人都喜歡實用簡單的裝修風格。于是,設計師按照業主的想法與生活習慣選擇了強調簡約之美的現代輕奢風作為軟裝主基調,同時借助材料的質感起到裝飾作用,以提升室內環境的質感與格調感。
戶型解析:


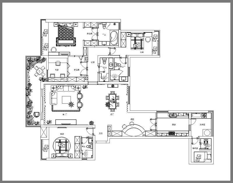
華潤翡翠城這套四居室的建筑面積為140㎡,原有的戶型結構已經進行了基本的功能分區,因此設計師沒有進行墻體大大改動。由于主臥區域的面積較大,因此設計師分隔出一個單獨的區域打造成衣帽間,在提升空間利用率的同時避免臥室面積太大帶來空曠感。裝修風格上,設計師則挑選了相對比較簡約而又不失品味格調感的現代輕奢風,以滿足業主夫婦的審美需求。
客廳:


客廳使用簡約的白色作為主基調色,為整體潔凈清新的風格奠定基調。白色大理石茶幾搭配上柔軟布藝沙發,營造不同的雅致格調。
臥室:


充滿童真韻味的床頭墻設計搭配上粉嫩的床體設計,勾勒出甜美優雅的少女氛圍。
案例介紹:本案業主是三口之家,業主是一家企業老板,太太全職在家照顧剛上初二的女兒,在風格選擇上,業主喜歡歐式風格,希望家里多一些溫馨浪漫的感覺,不僅要設計得上檔次,格調大氣,也要能滿足家人的生活需求,營造出意蘊豐富,品質舒適的歐式感。
戶型解析

東方世家這套136㎡三居室整體方正,從平面圖上可以看到,入戶玄關私密性好,客廳與餐廳開放式設計,廚房靠鄰餐廳,方便傳遞菜品,臥室集中分布,主臥附帶衛生間,次臥前往公衛的距離不長,居住舒適度高,室內動線流程,無需進行二次優化。
餐廳

黃色的活力感充斥著整個餐廳,方形吊頂配以多層次照明的設計方式,令餐廳空間更有層次感,黃色皮質餐椅與空間氛圍契合,營造出精致的用餐氛圍。
臥室

臨窗處增設了榻榻米,并利用右側墻體設計出收納空間,令空間立面選擇更為整潔。白色衣柜層次感強,底部專門預留鞋架,并在一側放置了換鞋凳,方便主人日常使用。
案例介紹:本案例業主為一對年輕的夫婦,帶有一個剛上幼兒園的小朋友,因此業主的設計需求是將空間進行合理的規劃設計,以滿足一家三口的使用需求,同時為孩子規劃出一片學習、玩樂的小天地,以保障孩子能夠健康快樂的成長。設計師依照業主的想法選用了簡約而又明快的北歐風裝飾空間,同時在家居空間中多個區域點綴上帶有童心的裝飾,以保障房屋能夠更好符合年輕業主及小朋友的審美。
戶型解析

漢口春天的這套89㎡二居室屬于典型的小戶型房屋,因此裝修設計所需考慮的地方較多,不可過于隨心所欲的進行裝飾。不過好在,這套房屋的結構相對比較合理,且沒有存在各種難處理的小角落,因此設計師將設計的重點放在了如何滿足業主及小孩起居需求以及如何營造空間的童心氛圍上。
玄關:

本案例的玄關其實就是一個迷你入戶走廊,面積并不大,因此設計師僅選擇了一幅趣味性十足的掛畫作為裝飾點綴,避免占用較多空間。
客廳:


大面積的白色點綴上色彩明快的黃色沙發,一種跳躍而又清新的浪漫之感呼之欲出。葉子形狀的燈飾、簡約的小綠植則為會客區域增添了一抹自然美。
餐廳:

為了節約室內空間,餐廳被設計在廚房與客廳的拐角處,在滿足使用需求的前提下有效節約了空間。卡通造型的門簾既能夠保證廚房區域與就餐區域的分隔,又讓整個空間多了一抹讓人忍俊不禁的童真。
廚房:

由于廚房空間不大,因此設計師在進行設計的時候選用了大量的收納設計,如懸掛式櫥柜、各類掛墻式收納盒等等,以避免各類瓶瓶罐罐出現在明面上。而方形瓷磚則為空間增添了精致格調。
臥室:

為營造一種清新靜謐的氛圍,臥室選用了淡藍色作為主基調色,搭配上質感溫潤的木質地板,一種溫馨舒適感油然而生。
衛生間:

衛生間區域選用了趣味感十足的黑白墻紙進行裝飾點綴,搭配以圓形梳妝鏡,很好展現了一種超現代的時尚感,而帶有粉色卡通造型的地毯則呼應了整個家居空間的童真氛圍。
案例介紹:女業主是一家上市企業的高管,夫妻二人都是80后,有一雙可愛的子女,二人對生活品質均有較高要求,對這套300㎡的華僑城別墅有較高的裝修期待。女業主青睞歐式風格,希望呈現出富麗高雅的視覺氛圍,也希望設計師在進行設計時能滿足不同年齡段的生活需求,為孩子提供一個足夠靜謐舒適的學習生活空間。
戶型解析


這套位于華僑城的300平方米五居室戶型整體方正歸整,客餐一體,橫廳大,公共活動空間寬敞,主次臥帶有衛生間,生活舒適度高,戶型缺點在于,右下角空間呈手槍型,餐廳到廚房的距離有些狹長,拐角處容易出現采光死角,在這個部分增置了一些軟裝設計,緩解了空間帶來的壓抑之感。
客廳


客廳吊頂精雕細琢,造型上極為講究,整體空間以香檳色為主調,白色、棕色搭配其中,歐式典雅的家具和軟裝提升了空間層次感,步入空間,瞬間就能感受到這份華麗高貴的空間氛圍。
餐廳

餐廳位于客廳一側,菱形磚面的延伸,延續了高貴華麗的調性,左側墻面增置了鏡面裝飾,令用餐氛圍更加明亮精致。
臥室

臥室墻面采用對稱手法設計,鏡面裝飾令空間豐富不失主次,燈光的點綴下,空間顯得更為寬敞明亮。背景墻中部采用軟包隔音設計,為主人提供一種安靜舒適的生活體驗。
案例簡介:
歐式風格可以說是許多中老年人所偏愛的裝修風格,這種風格所打造的房屋往往帶有一種端莊的大氣華貴質感,也因此許多退休老人都會選擇使用該裝修風格裝飾房屋。本案例的業主強調自己有一對兒女,平時在休息的時候會過來看看自己,因此設計師在對空間進行規劃設計的時候,除了考慮老人的審美與起居使用需求外,還融入了一些現代化的元素,以確??臻g能夠更好為各位家庭成員所服務。
戶型解析:

這所彭彬東湖壹號的四居室房屋面積為196㎡,空間不算小,且空間原始結構的缺陷相對比較少,因此設計師沒有對格局進行過多改動,在保留原有戶型結構的基礎上進行了合理的裝飾設計。由于過道處空間相對比較狹小且距離較長,設計師在對該區域進行設計的時候就利用了色彩的搭配以及裝飾元素的點綴,來提升該空間的美觀度與大氣感。
玄關:

該戶型的玄關屬于長條形結構,且相對比較狹窄,所以設計師并沒有在該區域做過多的裝飾設計,而是利用暖黃色作為主基調色,強調空間的歐式風情,同時借助兩幅簡約的歐式掛畫進行點綴,以提升空間豐富感。
客廳:


客廳按照老人的審美使用了相對比較溫馨的暖黃色作為主基調色,同時搭配以鑲邊處理的背景墻面,營造一種富麗堂皇的貴族氣息。帶有歐洲風情的沙發進行了一定的造型設計,以更好烘托出空間的典雅復古氣息。
餐廳:

酒柜、油畫可以說是最為經典的歐式風元素,因此設計師在對餐廳進行規劃設計的時候就融入了這兩個元素,借用酒柜的造型設計及酒品裝飾空間,同時運用大幅油畫營造歐式浪漫風情。
臥室:


臥室使用了大量的暗紋設計,如床頭柜的暗紋筆直、床具上的暗紋雕花等等,這些暗紋設計相對沒有那么顯眼,不會破壞臥室的靜謐感,同時還能在無形之中彰顯歐式風的高貴典雅氣息。
案例簡介:
現代簡約風是利用最少的設計元素、最簡約的色彩來營造一種帶有清爽氣息的時尚美,而本案例的業主作為時尚都市麗人,就偏愛這種簡約到極致的家居風格,所以設計師在進行裝修設計的時候,通過相對比較含蓄的設計來營造空間的氛圍感,同時利用材料本身的紋理與色彩進行空間裝飾,以達到以少勝多的效果。
戶型解析:

這套位于紫崧楓林上城的四居室面積約為165㎡,業主對空間原戶型相對比較滿意,因此在與設計師交流時希望設計師能夠在原有結構基礎上進行裝修設計,以節約一定的裝修花銷。而由于空間的部分拐角處存在犄角,因此需要設計師對空間進行一定的再設計分配,以提升空間利用率。由于廚房區域面積并不算大,所以設計師將該區域的設計重點放在增加收納上,利用各類儲物柜來提升廚房空間的整潔感與大氣感。
客廳:

客廳區域的用色簡約而又素雅,大面積的白色點綴上少量的灰棕色,強調一種超凡脫俗的潔凈美。而一幅藝術感十足的簡約壁畫則為讓空間的藝術氣息更為濃厚。
餐廳:

由于就餐區域面積相對比較狹小,因此設計師在進行該區域設計的時候與廚房進行了一個軟隔斷,僅通過地板材質的變化來隔斷空間,以提升就餐區域的寬敞度。
廚房:

該廚房的設計亮點在于使用大量收納設計的同時而又不顯得刻意,灰色懸掛式儲物柜、黑白配色一體式櫥柜,黑白灰的經典配色讓整個廚房空間簡約而又高級。
知精準報價 避裝修深坑
選擇您喜歡的風格
現代輕奢
現代美式
北歐
新中式
歐式
其他
知精準報價 避裝修深坑
選擇房屋面積區間
您的戶型
兩居室
三居室
四居室
五居室
六居室
知精準報價 避裝修深坑
稍等片刻,您的報價正在生中......
知精準報價 避裝修深坑
每日僅限前10名用戶