
案例簡介:本案例的業主是一對即將退休的夫婦,其中男主人偏愛品酒,且平時也會收藏一些好酒,因此在裝修設計這塊希望能夠預留出自己的小天地。而女主人公平常負責家務比較多,因此裝修設計這塊更看重的是整體的耐看性與是否便于打理。綜合兩位業主的需求,設計師對空間進行了再分割,同時在室內融入酒柜設計,以滿足男主人的需求。
戶型解析:


荷景苑這套128㎡的四居室住宅整體戶型四平八穩,而空間結構上,入戶處的面積相對比較寬敞,如果僅僅用來做玄關相對比較浪費,因此設計師將該空間分隔成兩個區域,其中一塊設計為廚房,以提升空間的利用率。主臥區域則與其中一個衛生間空間進行銜接融合,提升主人起居生活的便利度。
玄關:

玄關處借用遠處墻面的藝術畫作為點綴,同時側面由白色櫥柜進行裝飾,強調實用性。
客廳:



由木質與大理石材質打造的電視背景墻清新而又不失理性,鏤空的設計則讓空間的通透感更加強烈。
餐廳:


嵌入式木質酒柜滿足男主人收藏酒的需求。白色與原木色的搭配組合,則讓空間整體清新自然。
案例簡介:作為一個即將迎來二胎的家庭,業主希望能夠將空間中預留出足夠的親子互動空間與學習空間。再者由于業主夫婦兩人工作性質的原因,用于起居打掃的時間也相對比較有限,因此希望設計師能夠從簡潔的角度出發進行規劃設計,同時也需要展示一定的時尚感與品質感。因此設計師選擇了相對比較簡潔耐看而又自帶貴族氣息的現代輕奢風,搭配以各種質感元素進行裝飾。
戶型解析:

荷景苑這套162平方米的四居室住宅可利用設計面積較廣,原有的戶型結構也基本能夠滿足現有家庭成員起居需求。不過業主提出,未來還會迎接一個寶寶,因此設計師在進行空間設計的時候預留出一個足夠的空間,確保兩個孩子都能夠擁有自己的獨立空間。而整體軟裝上,設計師則為業主們選擇了相對比較經典耐看的輕奢風,確保整個室內空間易于打掃。
客廳:




帶有天然清冷氣息的大理石材質搭配上造型簡單的吊燈,簡約而又耐看,日常打理也相對比較容易。
餐廳:

大面積的灰色大理石搭配上白色餐座椅,簡約中透露著一股高級格調韻味。由簡約掛畫打造的背景墻清新而又藝術感十足。
案例簡介:本案例的家庭為幸福的五口之家,除了業主夫妻二人外還有業主的父母與孩子,因此業主希望設計師能夠根據不同家庭成員的需求對空間進行合理的規劃與設計,以提升起居幸福感。而在與所有家庭成員進行一定交流溝通后,設計師折中選擇了認可度比較高的現代輕奢風作為空間主裝修基調,而色彩的選擇上則以簡潔素雅為主,這樣相對比較耐看且易于打掃。
戶型解析:





這套位于琨瑜府的四居室面積譽為158㎡,整體的戶型結構相對比較平整合理,且不存在各種犄角區域,因此設計師在進行空間規劃時沿用了原來的空間格局,同時借助各種不同的隔斷進行空間劃分,以提升整個家居空間的豐富感。而針對不同家庭成員的生活習慣與審美,不同臥室空間則有針對性的進行了個性化裝飾。
客廳:


嵌入式的照明燈具既可以滿足日常使用需求,又易于打理。圓形大理石茶幾簡約清新而又不失高級藝術感。
長輩房:

灰色墻面搭配上深灰色床體,簡約而又舒適,很好滿足老年群體審美需求,且能夠營造一個靜謐的氛圍,有助于提升睡眠質量。
主臥

墻面借助木材與水泥材質兩種不同的材料進行空間裝飾,簡約而又賦予空間結構變化美。
兒童房:

大面積的灰色搭配上小區域的原木色,簡約清新而又耐看。一體式收納柜既可以滿足物件歸置需求,又能滿足孩子學習使用需求。
案例簡介:本案例的業主是一對75后夫妻,兩個人育有一雙兒女,他們對于家的期望就是足夠干凈整潔且易于打理,因為忙于工作的他們沒有太多時間用于家居整理上。基于此,設計師選擇了相對比較耐看且不顯臟的新中式裝修風,同時融入各種現代化元素來提升空間的時尚氣息,以保障家居空間能夠更好的為業主服務。
戶型解析:


華發外灘首府的這套180㎡的四居室住宅原有的戶型結構符合業主一家人的起居生活習慣,因此設計師沒有對戶型進行過多的改動。而為了滿足家庭孩子們的閱讀、學習需求,設計師將房屋中原本的次臥改造成一個迷你小書房。而走廊過道處則減少各種花里胡哨的設計,強調簡潔,以便于后續生活的清潔打掃。
客廳:


優雅的灰色耐看且耐臟,搭配以簡約的素雅山水畫,讓空間流淌著清新的古韻氣息。大面積的落地窗則讓室外美景一覽無余。
廚房:

為了節約空間面積,設計師將廚房打造為開放式設計,搭配以各種大收納的櫥柜,實用而又耐看。
臥室:



淡綠色墻面搭配上白色衣柜,整體強調清新簡潔感。而床頭柜處則背帶按照成一個迷你辦公區,有效提升空間利用率。
衛生間:

大面積的白色簡潔清新,搭配以線條深色處理,勾勒出空間的框架感與結構感。
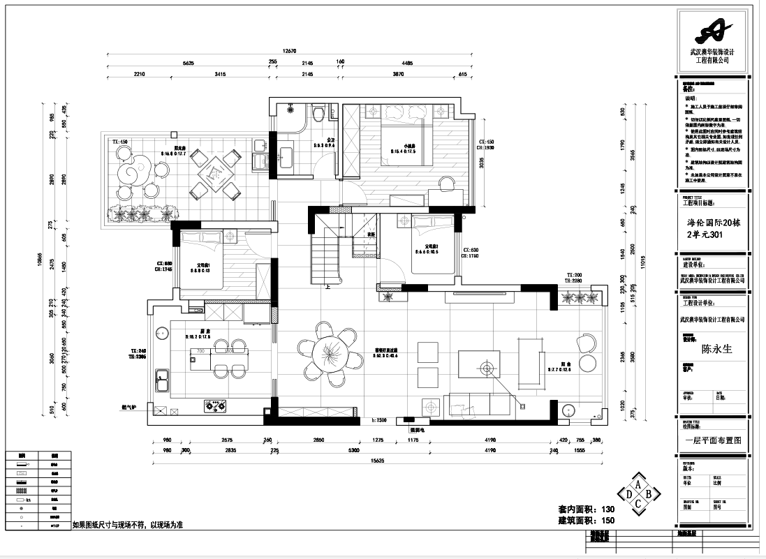
案例簡介:本案例的房屋常住人口只有業主夫妻而言,有時候父母、朋友會過來小聚,因此業主提出需要預留出足夠的會客區域與客人休憩空間。而在與業主進行深入了解后,設計師發現業主二人追求的是一種簡單自由的生活,因此設計師選擇了以浪漫著稱的美式風裝飾空間,同時分隔出一定的次臥供客人休憩。
戶型解析:




這套海倫國際的180㎡復式住宅的戶型戶型結構四方平整,且位于頂樓帶有小露臺,因此設計師在進行規劃設計的時候充分利用頂樓優勢,加入各類落地窗設計,提升室內采光度。同時,將露臺打造出一個舒適的會客休閑區域,以提升空間的利用率。整體色彩則按照業主的審美選擇了淺色系色彩,避免造成視覺壓迫感。
客廳:



客廳選用沉穩的灰色作為主基調色,耐看不易過時且相對便于缺少。大理石材質的背景墻低調而又不失高級韻味。
廚房:

淺藍色的櫥柜搭配上白色吊頂,優雅清新,讓油煙之所充滿浪漫之美。
臥室:


淡綠色的床頭墻搭配上藕粉色的窗簾,讓空間自帶自然清新氣息。而大面積的落地窗則確保陽光能夠自由撒落在室內。
案例簡介:該案例的業主一位偏愛歐洲文化的都市白領,喜歡各種帶有設計感且文化地緣的元素。因此設計師根據業主的喜好還有生活習慣,利用材料本身的質感及各種華麗的造型設計,為業主量身打造了一個充滿歐洲貴族風情的個性住宅。大量淺色系色彩搭配上朦朧的燈光,有效提升了整個家居空間的浪漫格調。
戶型解析:


保利城這座177㎡的三居室住宅,原始的戶型結構已經進行了一定的功能分區,該房屋南北通透、采光較好,因此設計師在原有戶型結構的基礎上保留原有優勢,同時借助部分軟隔斷提升空間的界限感與通透感。大量帶有歐式風情的裝飾元素,則能夠讓裝修后的房屋更好的契合業主的審美。
客廳:



華麗的巨型吊燈搭配上柔軟的淺色啥呀,低調而不失華麗貴族感。家具上的細節處理,則則讓整個空間更具精致美。
餐廳:



藍底印花墻紙小清新感十足,搭配上色彩清新的餐桌椅,高雅格調中透露著田園清新。
知精準報價 避裝修深坑
選擇您喜歡的風格
現代輕奢
現代美式
北歐
新中式
歐式
其他
知精準報價 避裝修深坑
選擇房屋面積區間
您的戶型
兩居室
三居室
四居室
五居室
六居室
知精準報價 避裝修深坑
稍等片刻,您的報價正在生中......
知精準報價 避裝修深坑
每日僅限前10名用戶