案例簡介:
本案例的業主為年輕的夫婦且有一個兩歲的嬰兒,根據房屋的結構特點與業主的實際需求,空間的實際設計重點放在了如何化解空間犄角及如何滿足一家三口居住使用上。整個房屋選用了耐看的現代簡約風,同時借助各類現代化的時尚元素裝飾空間,以起到較好的點綴效果。色彩的則使用了業主偏愛的暖黃色,通過暖黃色的搭配使用來突出空間的溫馨時尚氣息。
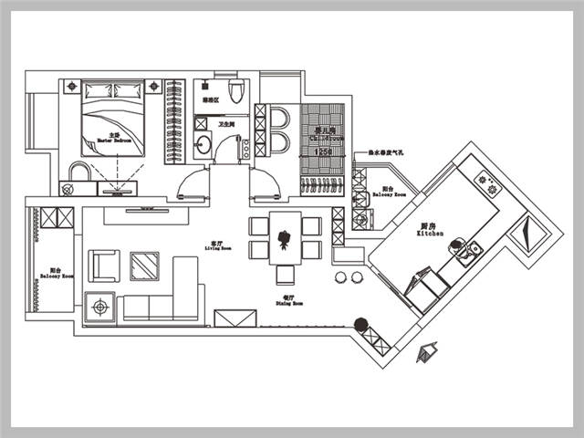
戶型分析:

世紀江尚的這套150㎡的四居室房屋,空間戶型結構相對比較復雜,如何將處于非正位置上的空間區域進行合理高效的利用成為了該戶型房屋的設計難度。設計師根據業主的實際需求將兩個臥室設計于對門處,以滿足業主照看孩子的需求。而房屋相對比較犄角的區域則設置為廚房,如此即可將空間合理利用,又能夠避免廚房區域的油煙進入生活區域空間,
客廳:

客廳區域使用了相對比較清新柔和的暖黃色作為主基調色,以營造家的溫馨感。帶有珠光質感的大理石材質背景墻搭配上生命力旺盛的綠植,一種典雅而又清新自然的活力美油然而生。深棕色地毯搭配上白色布藝沙發,則強調了一種碰撞時尚氣息。
餐廳:

餐廳區域設置在客廳區域的同一直線上,且兩個空間之間沒有使用硬隔斷,有效保障了整個空間的通透感。而餐廳側面的玻璃墻面設置,則從視覺上起到放大空間的作用,讓整個空間更顯現代時尚氣息的同時更具大氣美。
知精準報價 避裝修深坑
選擇您喜歡的風格
現代輕奢
現代美式
北歐
新中式
歐式
其他
知精準報價 避裝修深坑
選擇房屋面積區間
您的戶型
兩居室
三居室
四居室
五居室
六居室
知精準報價 避裝修深坑
稍等片刻,您的報價正在生中......
知精準報價 避裝修深坑
每日僅限前10名用戶