案例簡介:
這套房屋的業主是一對即將結婚的年輕人,他們希望能夠擁有一所帶有小資格調感而又不落俗套的輕奢婚房。而設計師在進行戶型設計的時候,根據業主的審美與需求選擇了較為穩妥的現代輕奢風,同時借助色彩的搭配、元素的碰撞來突出空間的精致感與個性化,以更好滿足這對即將結婚的新人的起居使用需求。
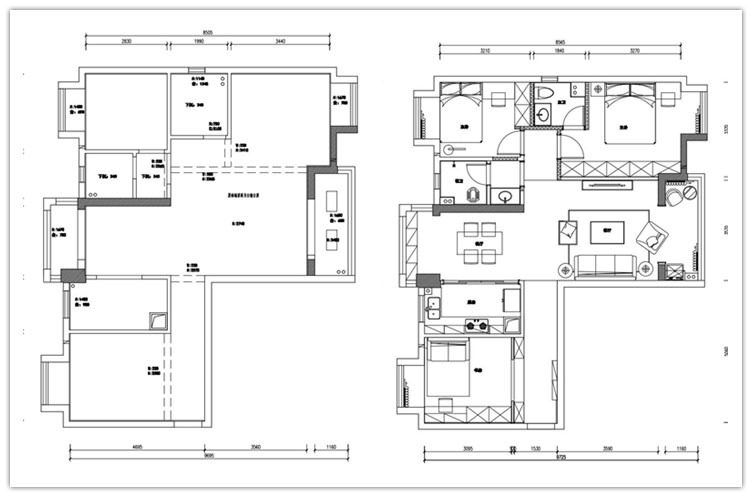
戶型解析:

這套位于美聯城仕的三居室房屋面積在114㎡左右,空間結構相對并沒有那么合理,因此設計師在進行規劃設計時,將外部一塊突出的區域打造為會客廳,通過戶型的結構將會客區域與休憩空間巧妙分隔開來。同時根據業主需求,空間使用了較多的軟隔斷設計,以避免家居空間看起來呆板且局限。臥室處則選用了與墻面一致的色彩打造衣柜,以避免過多的色彩造成空間壓抑感。
玄關:


玄關區域面積并不大,因此設計師在對玄關處進行設計時并沒有使用過多的元素,而是利用色彩的碰撞來提升玄關區域的結構感。黑白入戶式設計既能夠節省一定空間、滿足鞋子、衣物的收納需求,也能夠通過色彩來營造一種簡約時尚氛圍。
客廳:



客廳區域選用了相對比較大膽的用色,淺色系的墻面搭配上橘色的皮質沙發,一種不羈的只有灑脫感就油然而生。背景墻處使用簡單的墻面鑲邊處理,簡約精致好看而又節約裝修成本,可謂一舉多得。
餐廳:


餐廳區域面積相對比較狹小,所以設計師選用了推拉門的軟隔斷設計,避免讓原本就不大的就餐空間更顯壓抑。而大量的淺色元素,如淺藍色墻面、白色餐座椅則從視覺上起到擴大空間的作用。
廚房:


為了提升空間利用率,廚房安置了較多的收納區域,如懸掛式櫥柜、收納一體式的臺面,以保障廚房空間得到更加合理充分的利用。而空間上下兩部分出櫥柜則選用了黑白兩種色彩,避免空間過于單調。
臥室



書房


衛生間


陽臺

知精準報價 避裝修深坑
選擇您喜歡的風格
現代輕奢
現代美式
北歐
新中式
歐式
其他
知精準報價 避裝修深坑
選擇房屋面積區間
您的戶型
兩居室
三居室
四居室
五居室
六居室
知精準報價 避裝修深坑
稍等片刻,您的報價正在生中......
知精準報價 避裝修深坑
每日僅限前10名用戶