案例簡介:本案例的業主是一位獨居的年輕女士,作為一個新時代的都市麗人,她對家的理解是能夠充分釋放自己的心靈,不要過多繁瑣的設計。而根據業主介紹,她一般自己一個人居住,父母偶爾會過來陪伴自己。因此設計師在進行本案例的規劃設計時,為業主的家人預留出一個客房,而整體的裝修風格選擇了相對比較簡約而又不失小資格調的簡歐裝修風格,搭配以少量裝飾元素,簡約而又耐看。
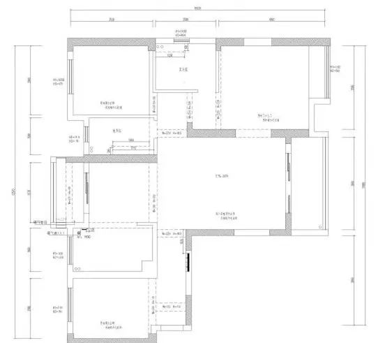
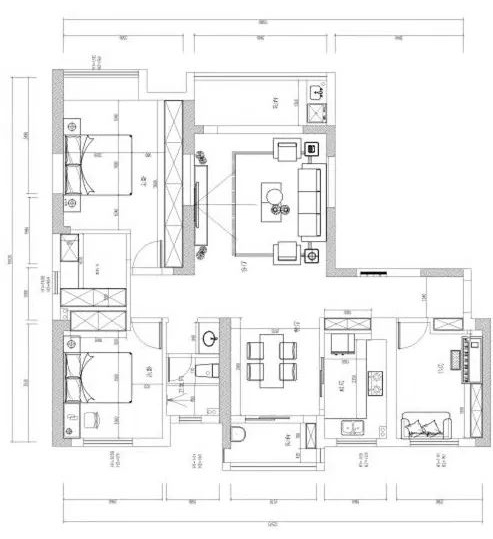
戶型解析:


聯發九都國際6期這套二居室住宅的面積為123㎡,整體的戶型結構呈現“L”形,空間犄角少卻格局合理,因此設計師的設計重點放在了功能的劃分上。根據業主起居使用需求,空間左半部分被劃分為休憩空間,中間則被規劃為會客區域,左半側則設計為做飯與就餐空間,整體動靜分區合理,在無形之中提升了生活的品質。
玄關:

玄關處通過墻面材質的碰撞來營造豐富的結構感,木質墻面與水泥墻面將整個墻面劃分為幾何形,簡約耐看中透露著一抹個性氣息。
客廳:

皮質沙發與大理石材質桌子之間通過材質的對比碰撞提升了空間的結構感與層次感,簡約藝術掛畫則彰顯了主人的獨特品味。
餐廳:

光澤感強的桌椅、墻面讓就餐區域有了一抹流光溢彩的高級美,華麗的吊燈與精美的掛畫則賦予空間藝術美感。
廚房:

黑白的經典配色展示了廚房空間的現代美,質感清冷的暖色系瓷磚則透露著大氣端莊,各處小細節均體現著都市麗人對于高品質生活的追求。
知精準報價 避裝修深坑
選擇您喜歡的風格
現代輕奢
現代美式
北歐
新中式
歐式
其他
知精準報價 避裝修深坑
選擇房屋面積區間
您的戶型
兩居室
三居室
四居室
五居室
六居室
知精準報價 避裝修深坑
稍等片刻,您的報價正在生中......
知精準報價 避裝修深坑
每日僅限前10名用戶