案例簡介:基于本案例業主的背景、喜好還有個人追求,設計師選用了中式風格打造空間,從典雅的山水畫意境入手,搭配以傳統中式住宅設計手法,雜糅現代時尚元素,將傳統古風韻味與現代都市生活相融合,呈現出帶有現代時尚氣息的特色復古住宅,讓業主能夠在喧囂的城市中,獲得一個心靈棲息之所。
案例解析:


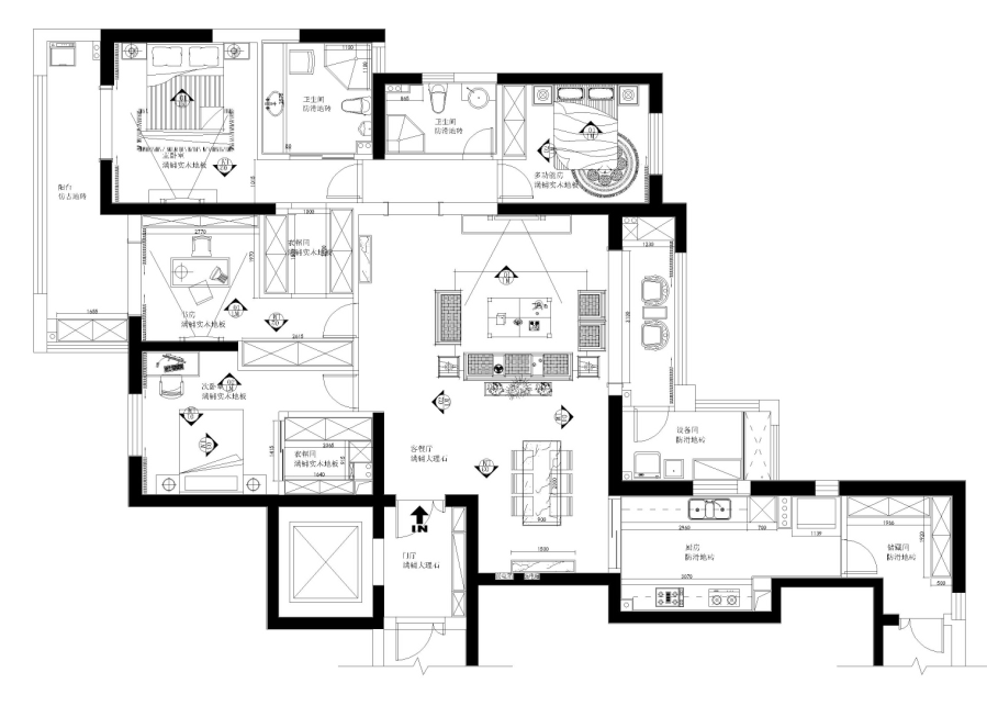
這套位于綠地金融國際城的四居室房屋面積雖然在220㎡左右,但是由于戶型并不方正平整,且存在著零碎角落,因此存在著較大的設計難題。為了讓所有的空間都得到合理的充分利用,化解戶型缺陷,設計師對空間進行了再規劃,將入戶處左邊的狹長條區域打造成廚房,利用戶型的轉折減少油煙進入生活空間的概率。同時將該區域進行一定的再切割,規劃出一塊置物空間,有效提升了家居空間的利用率。
客廳:



對稱式的設計搭配上帶有傳統結構制造的木質家具,一種清新典雅的復古韻味在空間中悠然流淌。
餐廳



餐廳區域借用淡雅的水墨畫起到視覺延伸的作用,搭配以各類帶有木材紋理的木質家具,強調一種空靈的自然典雅之美。
廚房:


長條形的廚房空間面積相對比較狹小,因此設計上使用了大量的收納元素,減少各類瑣碎物件出現在明面上的概率。
臥室:



古色古香的臥室門、做舊復古的吊燈、鑲邊處理的吊燈讓臥室洋溢著一股古韻氣息。而淡藍色的床具則讓空間多一抹輕快明麗的氣息。
衛生間:

暗紋的灰色瓷磚墻面為衛生間空間營造了一種清冷潔凈的氛圍,而帶有傳統總是元素的鏡子則讓衛生間區域與整個家居空間更加契合。
知精準報價 避裝修深坑
選擇您喜歡的風格
現代輕奢
現代美式
北歐
新中式
歐式
其他
知精準報價 避裝修深坑
選擇房屋面積區間
您的戶型
兩居室
三居室
四居室
五居室
六居室
知精準報價 避裝修深坑
稍等片刻,您的報價正在生中......
知精準報價 避裝修深坑
每日僅限前10名用戶