案例簡介:本案例的業主對于生活品質有著較高的要求,且家庭成員較多,因此在購房時特意買了一個帶有露臺的雙層房屋,在滿足基本起居使用需求的前提下追求生活品質。而根據業主的介紹,設計師從人性化的設計角度出發,充分考慮不同家庭成員的使用需求,在美式裝修風格的主基調下雜糅了多種元素,以打造一個個性而又有品質的家居空間。
戶型解析:






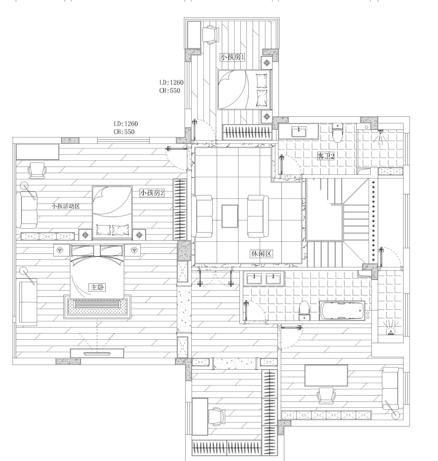
九臺別墅的這套復式別墅的面積為292㎡,雖然面積不算大,但是由于層數較多,為復式設計且帶有地下室,因此整體的可利用設計面積較大,能夠根據業主的需求與審美進行更為合理的規劃設計。設計師根據業主家庭成員的需求,分別設置了兒童房、老年人,并使用不同類型元素,以滿足不同家庭成員的居住及審美需求。
客廳:



客廳則利用家具的造型來營造一種典雅高貴的品質感,沙發腳的造型設計、鏤空的藝術置物柜都讓整個會客區域流淌著貴族典雅氣息。
餐廳:



大理石暗紋地板清冷而又不失高雅氣息,搭配以圓形藝術感吊燈設計、復古造型吊燈,為就餐區域奠定了典雅格調氣息。
廚房:

廚房使用了大面積的藍色進行裝飾點綴,強調個性感。而透明玻璃滑門的存在除了能夠起到空間分隔的作用,還提升了家居空間的通透感。
兒童房:


卡通造型的墻面設計讓兒童房的童真趣味感十足,兩面墻都設置了大面積的窗戶,確保室內空氣的流通。
地下室:


大理石背景墻搭配上灰色地磚,為地下空間營造了一種清雅的氣質。而是絲絨材質的沙發則讓空間多了一抹柔和溫馨感。
衛生間:


衛生間區域借助黑白色瓷磚的碰撞營造一種超現代的時尚感,而造型獨特的置物柜與鏡子,則讓衛生間區域多了一抹精致的貴族氣息。
知精準報價 避裝修深坑
選擇您喜歡的風格
現代輕奢
現代美式
北歐
新中式
歐式
其他
知精準報價 避裝修深坑
選擇房屋面積區間
您的戶型
兩居室
三居室
四居室
五居室
六居室
知精準報價 避裝修深坑
稍等片刻,您的報價正在生中......
知精準報價 避裝修深坑
每日僅限前10名用戶