案例簡介:本案例的業主是一位90后銀行工作職員,對待工作嚴謹的他對于生活也同樣是如此,因此在進行家裝過程中他更重視細節的強調,希望能夠通過細節強調空間的品質感。設計師在與業主進行深入溝通后,為業主選擇了相對比較強調質感的現代簡約風,同時借助不同質感的材料裝飾空間,強調細節處的高級感。
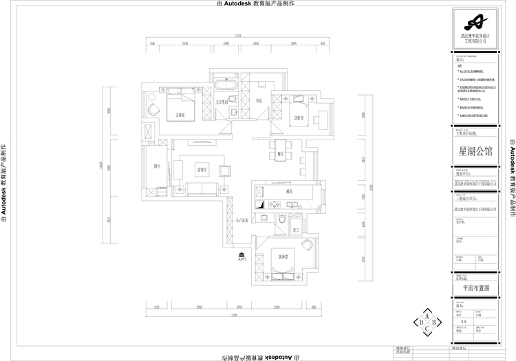
戶型解析:

東湖城這套四居室的住宅占地面積約為126㎡,戶型結構并不規整,尤其是入戶區域向外延伸的空間顯得過于突兀。因此設計師在進行規劃設計的時候,重新進行了功能分區的劃分,同時考慮到主人生活的私密度與空間實用性,設計師將入戶區域的空間直接改造成一個客房,滿足客人過夜使用需求。而就餐區域則被設計在廚房尾部與客廳的延伸處,避免整個空間看起來過于空蕩的同時有效提升空間利用率。
玄關:

木質儲物柜簡約又耐看,無燈具式照明強調空間清新優雅高級感。
客廳:



簡約的灰色點綴上亮橘色皮質沙發,清新而又不失活潑自由感。
餐廳:

就餐區域借助灰色的桌椅進行打造,強調實用性。
廚房:

利用大面積淺色系裝飾空間,奠定清爽潔凈氛圍,木質櫥柜門則為空間增添自然溫潤氣息。
臥室:



借助不同深度的灰色裝飾空間,節約又不失層次感。
書房:

借助儲物門做隔斷,既可以提升空間利用率,又可以借助各類擺件與書籍進行書房裝飾。
知精準報價 避裝修深坑
選擇您喜歡的風格
現代輕奢
現代美式
北歐
新中式
歐式
其他
知精準報價 避裝修深坑
選擇房屋面積區間
您的戶型
兩居室
三居室
四居室
五居室
六居室
知精準報價 避裝修深坑
稍等片刻,您的報價正在生中......
知精準報價 避裝修深坑
每日僅限前10名用戶