案例簡介:本案例的客戶從事教育工作,喜歡家里簡單整潔但是要有格調。因此設計師在進行裝飾設計的時候,選用了相對比較低調而又不失內含的輕奢風進行軟裝,同時借助各類細節的裝飾點綴提升空間的品質、彰顯主人的高雅審美與情趣。
戶型解析:

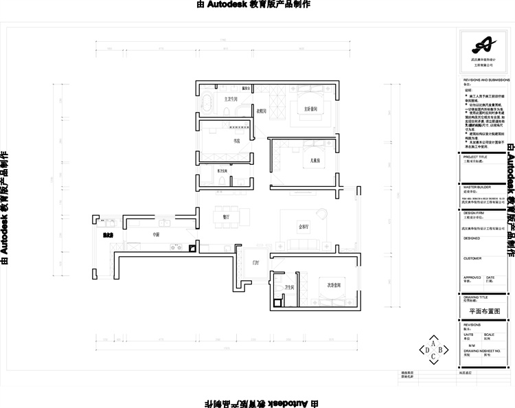
泛海國際這套四居室的住宅面積約為206㎡,雖然整體面積較為寬敞,但是戶型結構并不規整,尤其是一塊突兀的狹長型空間需要進行合理的規劃設計,否則整個家居空間就會給人強烈的違和感。而本案例的設計師則是直接利用狹長型空間內部空間改造成使用頻率并不高的儲物間,外部區域則借助本身的結構打造成廚房,通過戶型本身結構起到降低室內油煙的效果,將空間劣勢轉化為優勢。
玄關:

簡單的白色木質儲物柜搭配上綠植,簡約又清新。
客廳:

木質與大理石材質的碰撞讓空間在溫潤舒適中多了一抹優雅的高級品質感。
餐廳:

嵌入式櫥柜隱形感強而又不失實用性,橢圓形燈飾清新而又不失輕奢時尚感。
臥室:



對稱式床頭設計給人以沉穩典雅氣息,放射式燈飾既吊頂處的金色鑲邊處理則平添高級格調。
| 姓名* | |
| 樓盤* | |
| 電話* | |
知精準報價 避裝修深坑
選擇您喜歡的風格
現代輕奢
現代美式
北歐
新中式
歐式
其他
知精準報價 避裝修深坑
選擇房屋面積區間
您的戶型
兩居室
三居室
四居室
五居室
六居室
知精準報價 避裝修深坑
稍等片刻,您的報價正在生中......
知精準報價 避裝修深坑
|
每日僅限前10名用戶