案例簡介:本案例的客戶是三口之家,忙于工作的男主人希望家居空間足夠溫馨柔和,并且有足夠的親子互動空間。而作為家庭主婦的女主人對于家的要求則是要耐看且易于打理,不希望空間出現過多華而不實的設計。設計師在結合兩位業主的需求之后,選擇以現代輕奢風進行整體的軟裝,使用盡可能易于打理的材料裝飾空間,以滿足女主人的需求。同時,降低空間的尖銳設計,所有的臺面及拐角均使用圓弧設計,避免孩子出現磕碰。
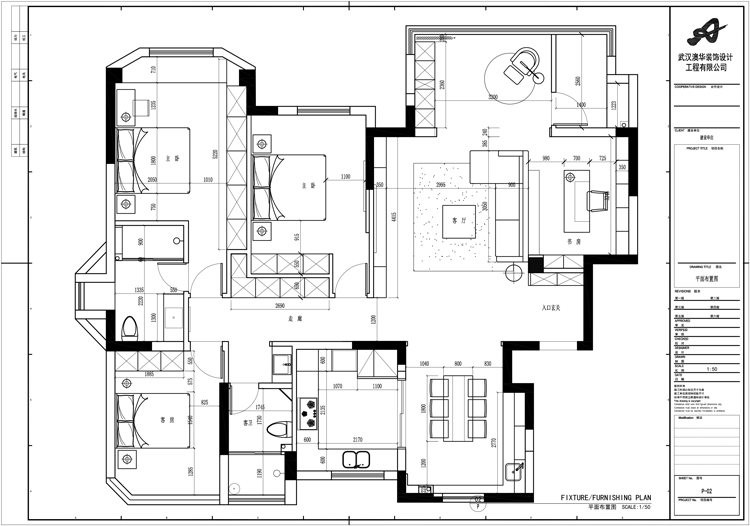
戶型解析:

東城華府這套三居室住宅的占地面積約為148㎡,整體的面積相對比較寬敞且戶型結構較為合理,設計師在進行規劃的時候盡可能保留房屋原有的戶型結構,以降低裝修成本。為了滿足主人的使用需求,設計師還在主臥區域融入衛浴設計,提升主人生活的私密性與品質感。而廚房與就餐區域則借助一個簡單的玻璃門進行隔斷,避免由于廚房空間面積較小而帶來的壓迫感。
客廳:


大理石地板高級優雅且易于打理,嵌入式電視墻設計則強調現代時尚氛圍。
餐廳:

符合人體功能學的桌椅強調起居舒適性,黑白色構成的置物臺簡約而又清新耐看。
臥室:


臥室區域借助大量的線條完成裝飾點綴,強調簡約大氣美。直線型的燈飾既可以滿足照明需求,又能營造空間藝術氛圍。
知精準報價 避裝修深坑
選擇您喜歡的風格
現代輕奢
現代美式
北歐
新中式
歐式
其他
知精準報價 避裝修深坑
選擇房屋面積區間
您的戶型
兩居室
三居室
四居室
五居室
六居室
知精準報價 避裝修深坑
稍等片刻,您的報價正在生中......
知精準報價 避裝修深坑
每日僅限前10名用戶