案例簡介:該房主為年輕有為的地大教授,孩子上小學,一家三口都非常喜歡看書學習,故臥室里都設置了書柜書桌。業主比較喜歡時尚流行的風格元素,也要求有更多的收納空間,故推薦現代輕奢風格。輕奢的風格融合了一些獨特的設計之后,完全可以滿足業主對于房屋獨特的居住要求。
戶型解析:

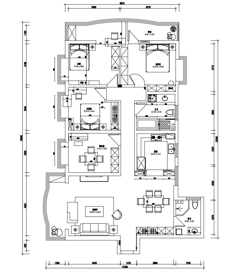
中建大廈160平方米四居室是160平方米,整體四居室完全滿足了居住的需要。戶型內部的大客廳窗戶呈現U型,一個簡單的設計便增加了客廳的時尚感。不過這套戶型有一個缺點便是各個臥室距離比較近,臥室的私密性不是很好,只能夠通過裝修的隔音處理來增強每個房間的私密性。
客廳:


客廳餐廳是開放連接并且分布在門的兩旁,使用起來確保便利的同時也實現了理想的空間劃分,現代的布藝沙發和時尚的現代餐桌凸顯了房間的輕奢風格。
餐廳:


白色風格簡單時尚,酒柜和灶臺渾然一體,桌子上綠植使得房屋生機勃勃。
臥室:


飄窗床鋪搭配時尚,主臥兒童房大衣柜滿足了儲物的功能,白色輕奢風格舒適安心。
書房:

大教授平日里工作緊張,空閑時候在自己家里書房和好友玩上幾圈麻將令日子更豐富。
| 姓名* | |
| 樓盤* | |
| 電話* | |
知精準報價 避裝修深坑
選擇您喜歡的風格
現代輕奢
現代美式
北歐
新中式
歐式
其他
知精準報價 避裝修深坑
選擇房屋面積區間
您的戶型
兩居室
三居室
四居室
五居室
六居室
知精準報價 避裝修深坑
稍等片刻,您的報價正在生中......
知精準報價 避裝修深坑
|
每日僅限前10名用戶