案例介紹:220㎡的四房大戶型采用現代輕奢風格設計,大氣雅致,歷久彌新。業主是一個多子家庭,喜愛具有女王氣場的咖色系輕奢風,希望設計師為百變空間塑造優雅基調,注入品質與時尚,呈現出令人回味,倍顯精致的獨特魅力。
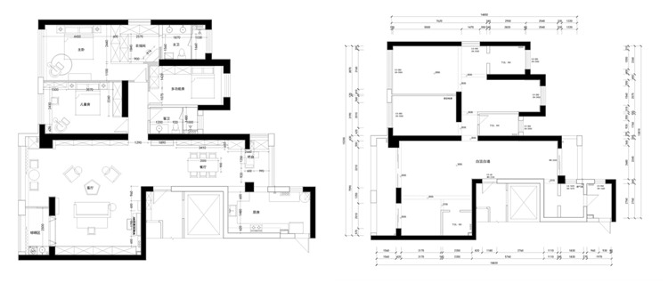
戶型解析

原始戶型瑣碎空間比較多,為了提升空間的利用率,設計師將原始客廳的墻體打通,令餐廳與客廳一體化銜接,提升了室內的采光和通風,廚房空間也做了調整,將廚房原本帶有的陽臺合并到廚房內,提升了烹飪面積;臥室集中分布,動靜分離,為了滿足家庭需求,設計師專門隔出一個房間,增加了臥室數量。
客廳



客廳以咖色系為主基調,浪漫的配色帶有女王氣質,簡約的線條中不失輕奢韻味;背景墻一面設計為書柜,一面設計為辦公空間,別有一番風味;灰色絨質沙發與橘色單椅圍合式放置,空間更具設計感,雕塑、擺件、燈具等元素,都令客廳帶有復古的氣息。
餐廳

打造餐廳的精致感不需要太過復雜的裝飾,餐邊柜以收納功能為主,添置燈帶裝飾,即可呈現出時尚氛圍,餐桌椅的造型盡量時尚一些,搭配水晶燈具,足以展現出大方氣質。
臥室

臥室采用無吊頂設計,四周添置的燈帶提升了空間的浪漫感;透明柜面的衣柜更具視覺張力,令臥室空間的個性升級;背景中采用石膏線勾勒,時尚氣息濃郁,凸顯出業主對時尚的眼光。
知精準報價 避裝修深坑
選擇您喜歡的風格
現代輕奢
現代美式
北歐
新中式
歐式
其他
知精準報價 避裝修深坑
選擇房屋面積區間
您的戶型
兩居室
三居室
四居室
五居室
六居室
知精準報價 避裝修深坑
稍等片刻,您的報價正在生中......
知精準報價 避裝修深坑
每日僅限前10名用戶