小區:華發中城薈中央首府
戶型:105㎡;120㎡;138㎡;142㎡;168㎡

華發中城薈二期中央首府采用商住分離的城市綜合體規劃布局,既能便捷享受綜合體配套高端商業,又很好的規避了商業人流的干擾。形成了集居住、辦公、商業、休閑為一體的最具活力和最高價值的城市新地標。
為了給華發中央首府的業主帶來更好的生活體驗,澳華裝飾的設計師全面解析建面105-168㎡的戶型方案。從居住者出發,從場景入手,平衡視覺效果與居住功能,擴展生活秩序!
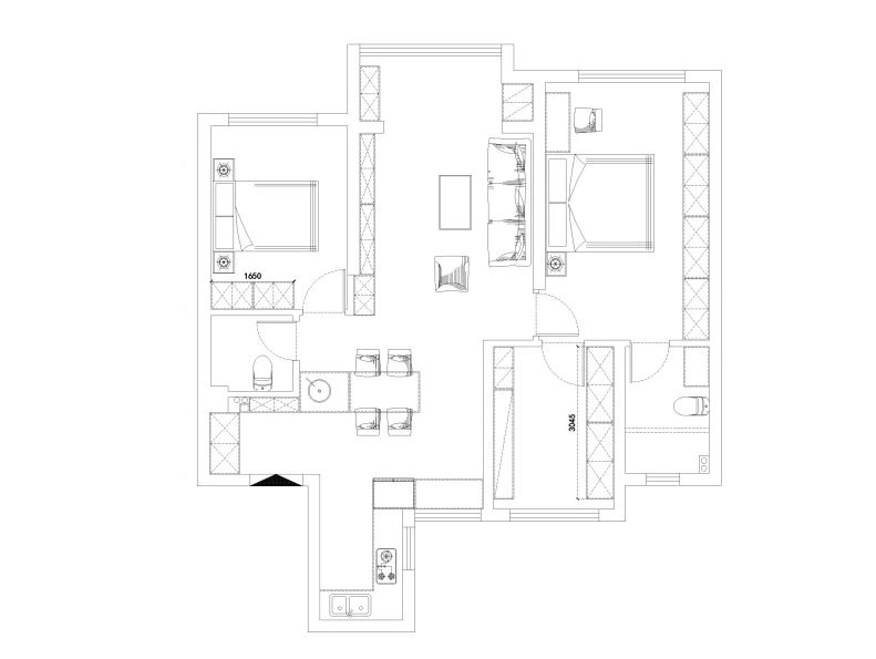
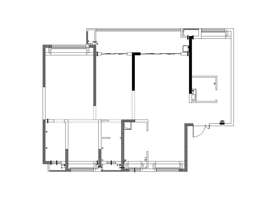
105㎡戶型解析

△原始結構圖
戶型優點
√ 客廳采光好,通風好,空間明亮通透。
√ 客廳和主臥面積較大,空間開闊。
√ 過道較少,空間利用率高。
戶型缺點
× 廚房和餐廳面積較小,活動范圍有限。
× 一間次臥面積較小,收納空間不足。
方案
開放式廚房+島臺,釋放空間

思路解析
1 門廳設置玄關,很好的阻擋了入戶視線。靠墻設置玄關柜,增加收納。
2 陽臺與客廳打通,增大視覺空間以及亮度。
3 開放式廚房設計,釋放空間。
4 餐廳設置島臺+水槽,布局新穎,功能便捷。
5 主衛和最小的房間納入主臥做衣帽間,形成舒適套臥,增加收納,極大提高生活品質。
效果圖展示


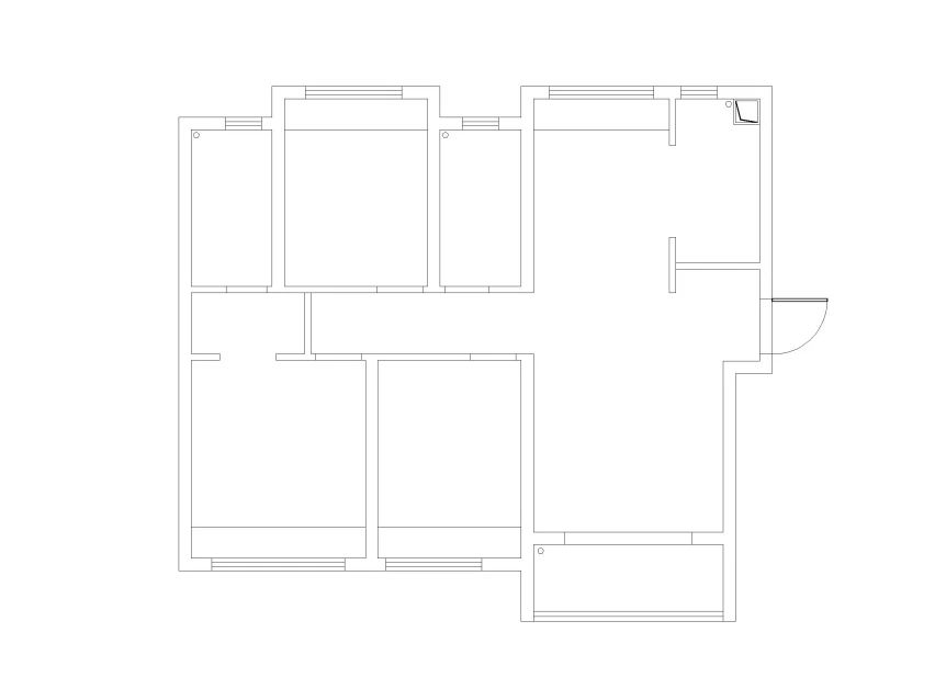
120㎡戶型解析

△原始結構圖
戶型優點
√ 戶型方正,采光和通風都較好。
√ 功能區域劃分清楚。
√ 三間臥室面積大小均勻。
√ 客廳和餐廳面積較大,空間開闊。
戶型缺點
× 廚房面積較小,活動受限。
方案
開放式廚餐廳+舒適三房

思路解析
1 開放式廚房設計,釋放空間,解決廚房較小的問題。
2 廚房與餐廳處在一個空間,動線便捷,操作方便。
3 保留三房,滿足多人口家庭需求。
4 主衛和雜物間納入主臥,形成一個小型衣帽間,增加收納空間。
效果圖展示


138㎡戶型解析

△原始結構圖
戶型優點
√ 戶型方正,采光通風都很不錯。
√ 四房兩廳,能夠滿足一家五口的居住需求。
√ 戶型功能區域劃分清楚。
戶型缺點
× 廚房面積較小,活動受限。
× 次臥面積較小。
方案
餐廚一體+獨立衣帽間

思路解析
1 客廳與陽臺打通,增大視覺空間以及亮度。
2 廚房與餐廳打通,優化后的兩個空間形成環形動線,空間相互借用形成餐廚一體。讓原來無法實現的島臺,電器高柜,超大的餐廚儲物量得以實現。
3 單獨把北面最小的房間拿出來做衣帽間,實現收納便捷。
4 兒童房利用了原有的飄窗的位子,設置睡眠區、學習區和儲物區。從小讓寶寶有個獨立的空間,教會他尊重與被尊重。
效果圖展示


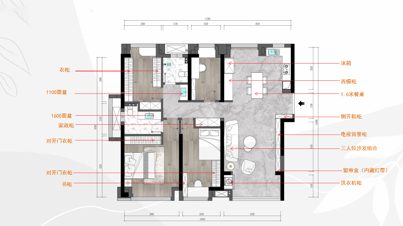
142㎡戶型解析

△原始結構圖
戶型優點
√ 采光通風都很不錯。
√ 戶型功能區域劃分清晰。
√ 擁有開闊的觀景大陽臺。
√ 四房兩廳,能夠滿足多人口家庭的居住需求。
戶型缺點
× 北面房間位置不合適獨立運用。
× 大框架剪力墻結構固定,只能做小調整。
方案
餐廚一體+多動能房

思路解析
1 客廳與陽臺聯通,增大會客區域,提升大氣視覺。
2 餐廳廚房一體化設計,提升視覺空間的同時,考慮充足存儲空間,并且打造了島臺及對窗吧臺,功能豐富多彩。
3 北面臥室獨立分區,改造一個功能型書房,加一個小孩房或者客臥營造豪華舒適的實用空間。
效果圖展示




168㎡戶型解析

△原始結構圖
戶型優點
√ 采光和通風非常好,空間明亮通透。
√ 戶型功能區域劃分清晰。
√ 擁有開闊的大陽臺。
戶型缺點
× 廚房區域空間太小,活動受限。
× 其中一個衛生間無采光。
× 臥室區域的收納分配不合理。
× 公共區域劃分不合理。
方案
主臥套房+開放式陽臺

思路解析
1 主臥做了套房,放大整個主臥的空間,盡享舒適便捷的私人空間。
2 保留兩間次臥,滿足多人口家庭需求。
3 開放式的陽臺與客廳的組合方式,增加了室內外的空間的互動。
效果圖展示


知精準報價 避裝修深坑
選擇您喜歡的風格
現代輕奢
現代美式
北歐
新中式
歐式
其他
知精準報價 避裝修深坑
選擇房屋面積區間
您的戶型
兩居室
三居室
四居室
五居室
六居室
知精準報價 避裝修深坑
稍等片刻,您的報價正在生中......
知精準報價 避裝修深坑
每日僅限前10名用戶