小區:城投聯投江南岸
戶型:103㎡;110㎡;127㎡;140㎡;170㎡

城投聯投江南岸地處新二環濱江示范段,具備江景資源、交通、配套、規模等多重優勢,集住宅、學校、酒店、商業等多樣業態,外享60萬方江灘公園,一線臨江,大美武漢盡收眼底!
為了給城投聯投江南岸的業主帶來更好的生活體驗,澳華裝飾的設計師全面解析建面103-170㎡的戶型方案。從居住者出發,從場景入手,平衡視覺效果與居住功能,擴展生活秩序!

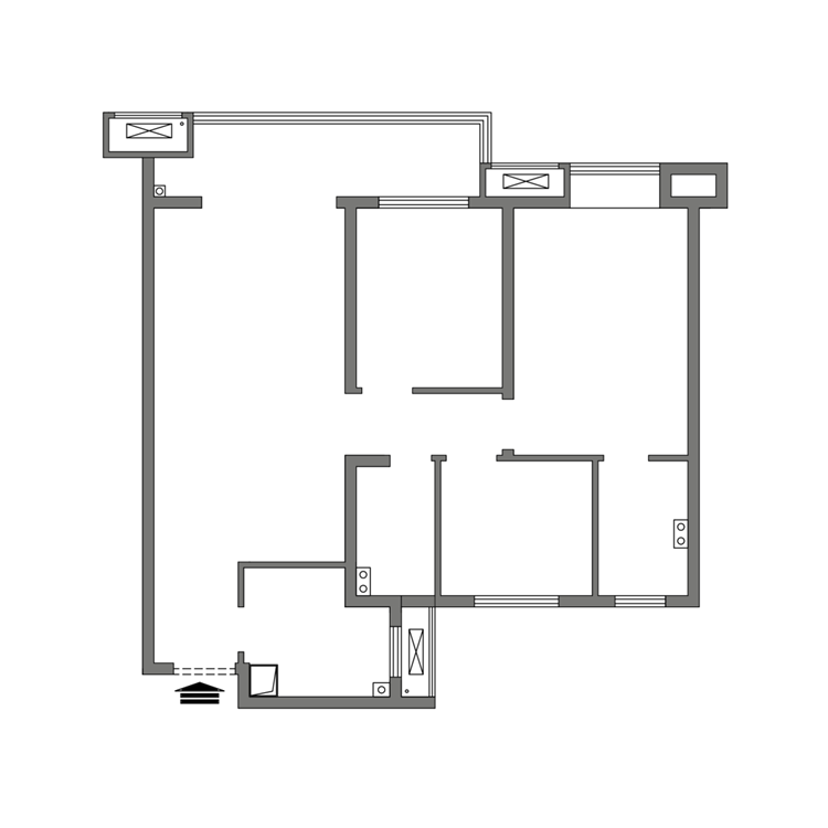
△原始結構圖
戶型優點
√ 采光通風非常好。
√ 戶型功能區域劃分清晰。
√ 空間利用程度高。
戶型缺點
× 廚房空間較小,難以滿足當代人對于廚房電器的需求。
× 臥室尺寸不大。
× 入戶位置局促。

思路解析
1 客廳與陽臺聯通,增大會客區域。
2 客衛干濕分離設計,空間開敞通透。
3 主衛納入主臥,與家人互不干擾,提升生活質量。
4 保留三房,滿足多人口居住。
效果圖展示



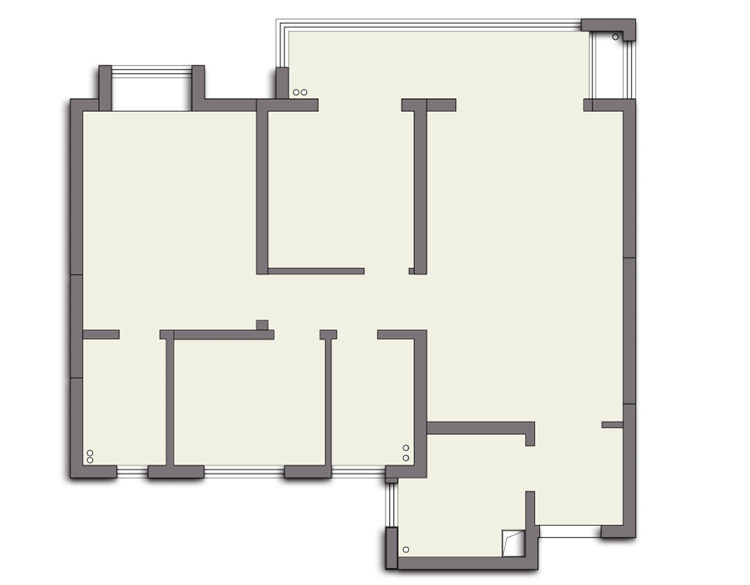
△原始結構圖
戶型優點
√ 采光通風非常好。
√ 戶型功能區域劃分清晰。
√ 擁有超級觀景大陽臺。
戶型缺點
× 生活陽臺功能不清晰。
× 廚房和餐廳空間較小。
× 大框架剪力墻結構固定,只能做小調整。

思路解析
1 客廳與陽臺聯通,增大會客區域,提升大氣視覺。
2 開放式廚房設計,解決餐廚空間較小的問題。
3 主衛納入主臥,與家人互不干擾,提升生活質量。
4 保留三房,滿足多人口居住。
效果圖展示


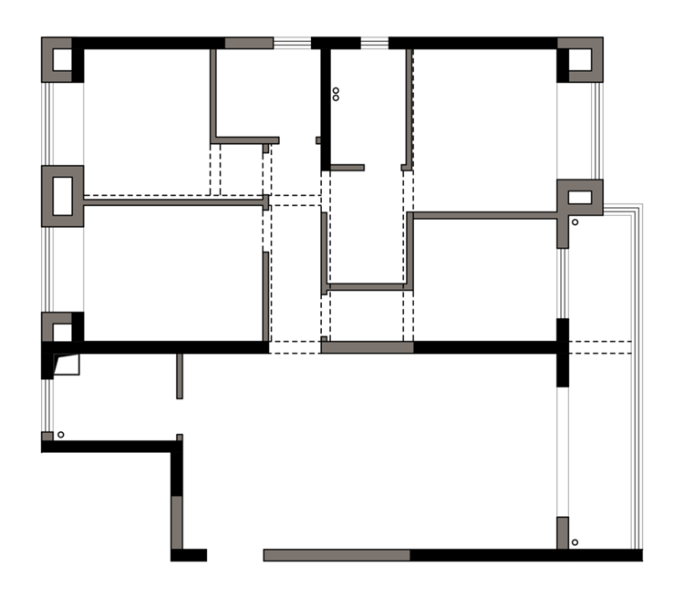
△原始結構圖
戶型優點
√ 客廳功能區域空間較大,有利于舒適性的布置,增加使用性和趣味空間。
√ 功能區域劃分清楚。
戶型缺點
× 廚房空間較小,難以滿足當代人對于廚房電器的需求。
× 餐廳區域采光不太理想。

思路解析
1 客廳與餐廳、陽臺一體設計,增加餐廳區域的采光。
2 主衛和一間次臥都納入主臥之中,打造了衣帽間,形成了一個獨立、功能齊全而又私密的生活空間。
3 封閉式廚房+餐廳補充西廚柜,中西合璧,功能便捷。
效果圖展示



思路解析
1 客廳與餐廳、陽臺一體設計,增加餐廳區域的采光。
2 保留三房設計,滿足多人口家庭居住。
3 將面積最小的次臥墻面向客衛推,擴大了次臥的面積。
4 封閉式廚房+餐廳補充西廚柜,中西合璧,功能便捷。
效果圖展示



△原始結構圖
戶型優點
√ 戶型較方正,功能區域劃分清晰。
√ 有一個開闊明亮的大陽臺。
戶型缺點
× 次臥面積較小,影響居住體驗。
× 廚房空間較小,難以滿足當代人對于廚房電器的需求。

思路解析
1 客餐廳陽臺一體化設計,提升視覺空間,增加了互動場所。
2 開放式廚房設計,解決了廚房面積較小,光線較暗的問題。
3 主衛納入主臥,形成私密、便捷的舒適套臥。
4 保留三間次臥,滿足多人口家庭;增設儲物間,滿足收納。
效果圖展示



思路解析
1 客餐廳陽臺一體化設計,提升視覺空間,增加了互動場所。
2 開放式廚房設計,解決了廚房面積較小,光線較暗的問題。
3 兩間次臥打通,形成一個衣帽間+主臥+主衛的舒適套臥,打造高品質私人生活。
效果圖展示




△原始結構圖
戶型優點
√ 客餐廳面積較大,活動舒展。
√ 擁有開闊的觀景大陽臺。
√ 房間多,適宜多人口家庭。
戶型缺點
× 餐廳部分面積較小,采光受限。

思路解析
1 入戶靠墻做一排收納柜,增加收納。
2 客餐廳陽臺都打通,空間開闊明亮。
3 餐廳借用書房面積,擴大餐廳使用面積,提供更大的互動空間。
4 書房納入主臥,形成了一個集衣帽間、浴室、書房和睡眠區為一體的奢華套臥。
5 三間衛浴,家人使用可以互不干擾。
效果圖展示



思路解析
1 進門做玄關端景和收納柜,增加入戶儀式感。
2 玄關旁邊還專門做了一個小儲物間,增加收納。
3 餐廳借用書房面積,擴大餐廳使用面積,提供更大的互動空間。
4 書房納入主臥,形成了一個集衣帽間、浴室、書房和睡眠區為一體的奢華套臥。
5 三間衛浴,家人使用可以互不干擾。
效果圖展示



知精準報價 避裝修深坑
選擇您喜歡的風格
現代輕奢
現代美式
北歐
新中式
歐式
其他
知精準報價 避裝修深坑
選擇房屋面積區間
您的戶型
兩居室
三居室
四居室
五居室
六居室
知精準報價 避裝修深坑
稍等片刻,您的報價正在生中......
知精準報價 避裝修深坑
每日僅限前10名用戶