小區:融創和平中心
戶型:89㎡;102㎡;106㎡;118㎡;124㎡;125㎡

————————
融創和平中心占據青山核心段,位于和平大道主軸上,項目緊鄰印象城,出行便捷,更享受周邊資源聚合帶來的強勁勢能。同時,該項目毗鄰和平公園,讓你不必奔赴遠方,在家門口即可攬盡四季風華。
為了給融創和平中心的業主帶來更好的生活體驗,澳華裝飾的設計師全面解析建面89㎡-125㎡的戶型方案。從居住者出發,從場景入手,平衡視覺效果與居住功能,擴展生活秩序!
————————
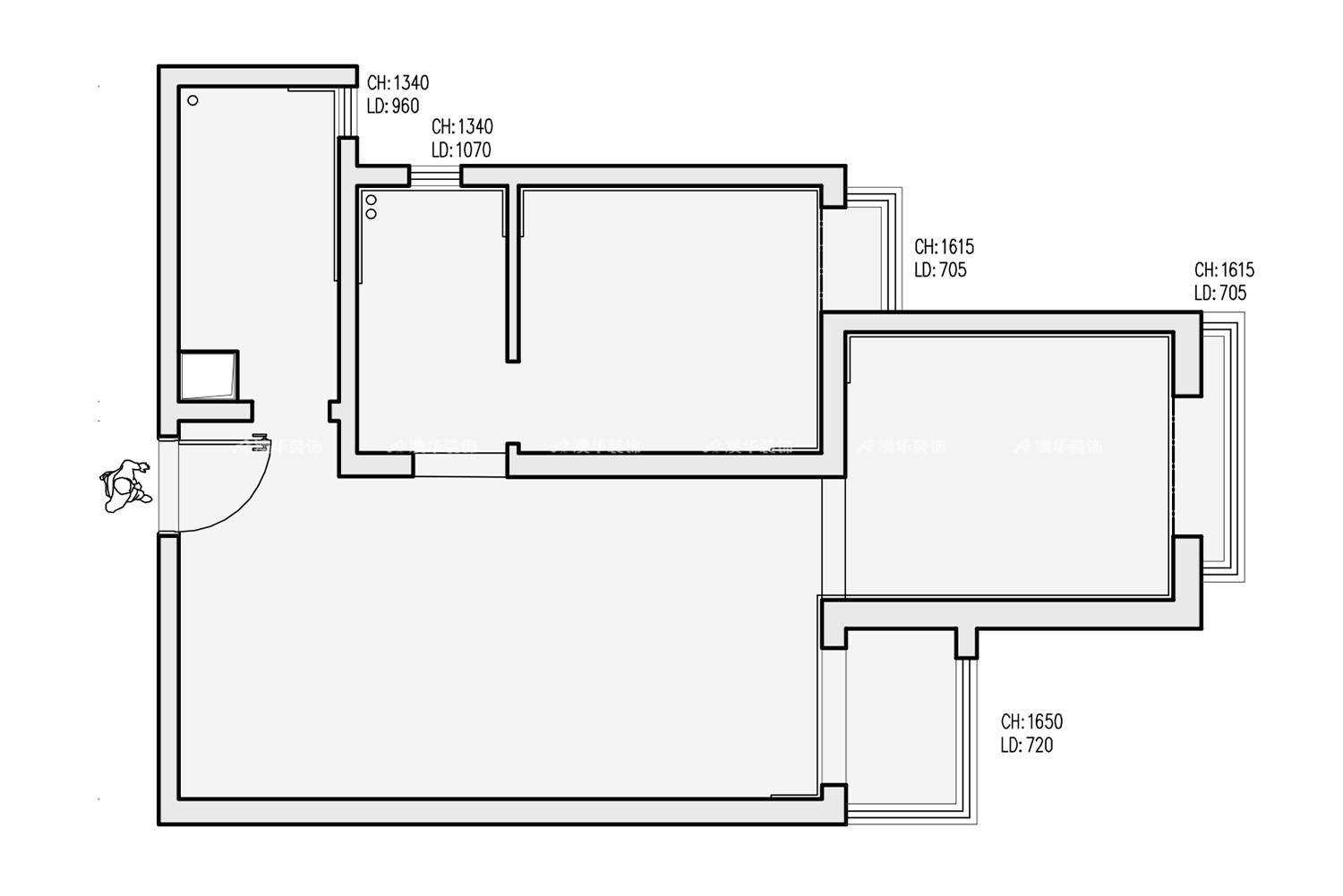
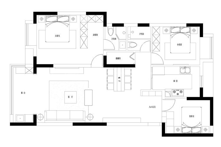
89㎡戶型解析

戶型優點:
1、戶型方正,南北通透
2、南向臥室,采光優越
3、客餐廳相連,視野更佳
戶型缺點:
1、廚房相對較小,冰箱太占空間,操作受限
2、陽臺太小,影響室內采光,空間利用率不高
方案一
開闊通透公區+舒適雙房

思路解析
1、客廳與陽臺聯通,提升室內采光,同時將晾曬與休閑結合
2、廚房L型布局,將冰箱外置,使操作臺面更充足,烹飪更舒心
3、衛生間做三分離設計,各功能區互不干擾,實用性更強
4、保留兩間臥室,滿足基本休憩需求
效果圖展示


方案二
開闊通透公區+多功能次臥

思路解析
1、客廳與陽臺聯通,提升室內采光,同時將晾曬與休閑結合
2、廚房L型布局,將冰箱外置,使操作臺面更充足,烹飪更舒心
3、衛生間三分離設計,各功能區互不干擾,實用性更強
4、次臥變換床的布置方式,兼顧休憩、收納與學習功能
效果圖展示


————————
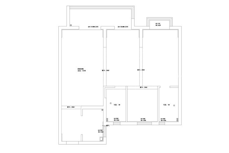
102㎡戶型解析

戶型優點:
1、南北通透,采光甚佳
2、動靜分離,功能區域劃分清晰
3、南向開間約5.2m闊境觀景大陽臺
戶型缺點:
1、收納空間不多
方案
開闊通透公區+舒適三房

思路解析
1、客廳與陽臺聯通,擴大公區面積,同時將晾曬與休閑結合
2、入戶定制玄關柜銜接餐邊柜、電視背景墻、儲物柜,兼顧美觀與實用
3、公共衛生間三分離設計,各功能區互不干擾,實用性更強
4、主臥套房設計,預留獨立衛浴、衣帽間空間,尊享品質生活
5、保留三間臥室,滿足多人口家庭居住需求
效果圖展示



————————
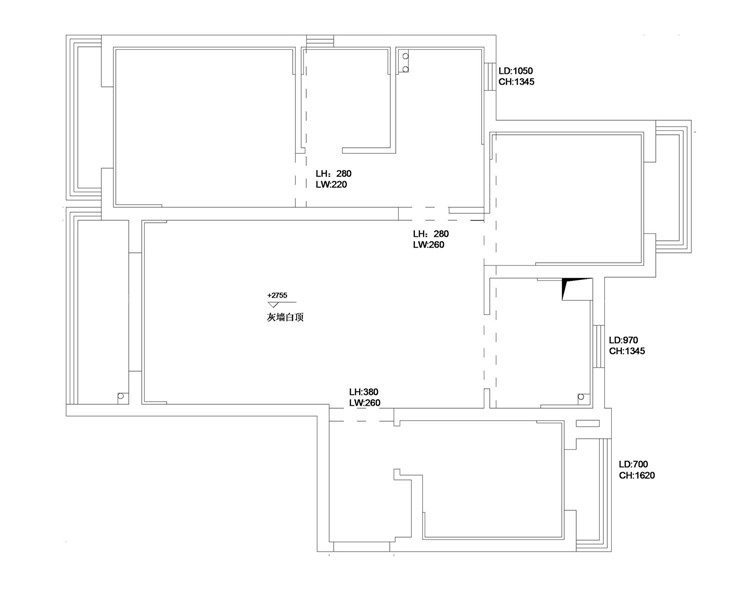
106㎡戶型解析

戶型優點:
1、格局方正,動靜分離
2、約6.3m橫廳,尺度開闊
3、南向雙臥室,采光優越
戶型缺點:
1、衛生間較大,空間有些許浪費
2、廚房空間小,放不下雙開門冰箱
方案
開放式格局,打造開闊互動公區

思路解析
1、衛生間干濕分離,提前預留洗衣機位置,空間利用率更高
2、開放式廚房,打造客餐廚一體,冰箱置于陽臺,以奢闊空間尺度,加強功能實用性
3、南向臥室一間作為主臥,一間作為兒童房,兒童房增設書柜、書桌,兼顧學習功能
4、預留一間多功能房,飄窗拆除定制懸浮書桌,沿著墻體定制兩組儲物柜,增加收納
效果圖展示


————————
118㎡戶型解析

戶型優點:
1、格局通透,采光極佳
2、戶型功能區域劃分清晰
3、南北臥室動線互不打擾
戶型缺點:
1、餐廚空間相對較小
方案一
舒適三房,滿足多人口家庭

思路解析
1、客廳與陽臺聯通,提升室內采光,同時將晾曬與休閑結合
2、U型廚房設計,連接餐廳、客廳,營造流暢的生活動線
3、餐廳采用抽拉式餐桌,可開可合,增加空間的通透性
4、南向主臥套房,配備獨立衛浴,還能透過寬幕飄窗,欣賞綠意美景
5、保留三間臥室,滿足多人口家庭居住需求
效果圖展示



方案二
去客廳化,解鎖家居生活新模式

思路解析
1、打破傳統客廳設計,打造集就餐、休閑、辦公等功能于一體的復合型公區
2、設計開放式廚房,進一步擴大公區;定制整墻餐邊柜,有效提升整體收納
3、主衛拆除并入主臥,實現空間最大化;增設衣柜+梳妝臺,尊享品質生活
4、公衛三分離設計,將洗手臺外置,各功能區互不干擾,使用更便捷
5、保留兩房,預留一間多功能房,滿足家庭不同階段的生活需求
效果圖展示


————————
124㎡戶型解析

戶型優點:
1、南北通透,生活尺度收放自如
2、開間約4.5m闊景陽臺,寬境客廳采光無限
3、南北臥室動線互不打擾,三臥室均帶飄窗
戶型缺點:
1、廚房空間較小,活動受限
2、主衛面積大,空間有所浪費
3、次臥空間小,收納稍顯不足
方案
舒適三房+超強收納

思路解析
1、陽臺獨立,邊側打造洗衣區,晾曬休閑兩不誤
2、廚房U型布局,冰箱內嵌,科學動線助力高效烹飪
3、餐島一體設計,補充廚房功能,滿足多元生活需求
4、主衛一分為二,部分改造成雜物間,提升整體收納
5、女兒房借用部分書房空間,于床尾增設嵌入式衣柜
效果圖展示


————————
125㎡戶型解析

戶型優點:
1、南北通透,功能區域劃分清晰
2、南向奢闊主臥,闊境觀景大陽臺
3、三個房間完全獨立分開,私密性好
戶型缺點:
1、主衛面積較大,空間有些許浪費
方案一
舒適三房,滿足多人口家庭

思路解析
1、入戶打造玄關落塵區,阻隔灰塵帶入室內
2、陽臺獨立,邊側打造洗衣區,晾曬休閑兩不誤
3、全功能主臥,配備獨立衛浴、獨立衣帽間
4、次臥兼顧收納、學習、休憩功能,滿足多元生活需求
效果圖展示


方案二
舒適三房+超強收納

思路解析
1、入戶打造玄關落塵區,借用次臥空間增設一組鞋柜
2、客廳與陽臺聯通,擴大公區,將晾曬與休閑功能結合
3、全功能主臥,配備獨立衛浴、衣帽間,尊享品質生活
4、縮減衛生間空間,規劃獨立儲物間,提升整體收納
效果圖展示


方案三
舒適兩房+多功能房

思路解析
1、入戶打造玄關落塵區,借用書房空間增設一組鞋柜
2、客廳與陽臺聯通,擴大公區,將晾曬與休閑功能結合
3、全功能主臥,配備獨立衛浴、衣帽間,尊享品質生活
4、縮減衛生間空間,規劃獨立儲物間,提升整體收納
5、預留一間多功能房,兼顧辦公、學習、收納等多種需求
效果圖展示



知精準報價 避裝修深坑
選擇您喜歡的風格
現代輕奢
現代美式
北歐
新中式
歐式
其他
知精準報價 避裝修深坑
選擇房屋面積區間
您的戶型
兩居室
三居室
四居室
五居室
六居室
知精準報價 避裝修深坑
稍等片刻,您的報價正在生中......
知精準報價 避裝修深坑
每日僅限前10名用戶