案例簡介:本案例的業主是一個熱愛田園風光的獨居女白領,她希望自己的家中能夠引入一些自然化元素,讓自己在休憩時感受到自然的美好與舒適。而由于房屋一般就只有自己居住,父母會偶爾過來探望自己,所以希望設計師能夠為偶爾來探望自己的父母預留出一個空間。根據業主的想法,設計師選擇了美式田園風作為空間軟裝方向,搭配以各種清新的色彩及自然化元素,讓室外美景“走”入家居空間。
戶型解析:

愛家的這套二居室的房屋占地面積約為88㎡,整個的房屋結果相對比較方正,但是由于房屋面積不算寬敞,想要設計出兩個獨立的休憩空間存在著一定難度。為了滿足業主及其父母的起居使用需求,設計師舍棄主臥的衛生間設計,同時將客廳區域進行放大,以提升整個家居空間的寬敞度。而由于整個家居空間面積不大,因此家具的選擇上,設計師優先選用了造型簡單且體量較小的,以起到視覺平衡效果。
客廳:

大面積的淡藍色讓人仿佛窺見藍天的清新爛漫,做舊處理的方形瓷磚裝飾性強而又不會顯得過于突兀。
臥室:

木色低的花鳥畫壁畫墻面清新而又不失韻味美,簡單的蕾絲簾布文藝范十足,有效起到空間隔斷作用。
衛生間:

衛生間區域借用大面積的淺色瓷磚進行鋪設,強調空間整潔清爽感,鏤空式臺面下置洗衣機,有效提升空間利用率。
案例簡介:本案例的業主偏愛歐洲文化,因此希望設計師在設計的過程中能夠融入一些具有歐洲風情的元素。而由于本案例房屋面積并不算寬敞,如果選用傳統歐式風進行軟裝,會顯得突兀且違和,為了滿足業主的審美同時兼顧空間結構特點,設計師選擇了帶有歐洲風情而又相對比較簡約素雅的簡歐風進行軟裝,通過少量歐式化元素與簡約元素的碰撞組合,打造出業主夢想的起居環境。
戶型解析:

世茂錦繡長江這套118㎡的三居室住宅外部戶型結構平整,但是內部結構存在著一些難以處理的細小角落,如廚房區域向內延伸的區域與墻面形成了一個長條形空間,該空間相對比較擁擠,如果不進行合理的規劃就會導致空間被直接閑置。而設計師在充分考慮區域結構與業主使用需求的前提下,將該區域空間打造成一個“L”形的廚房收納空間,有效提升了空間的利用率。
客廳:

大面積的白色搭配上暖黃色燈具,強調歐洲貴族風情,造型簡約的家具搭配上細節處理,在無形中增添空間的歐式貴族感。
廚房:

“L”形設計符合空間結構特點,且保障廚房使用者能夠正常出入。
書房:

榻榻米設計既可以滿足收納需求,又可滿足客人短暫居住需求。
臥室:

帶有暗紋處理的素色背景清新耐看又高級,搭配上造型華麗的床具,歐式貴族美展露無疑。
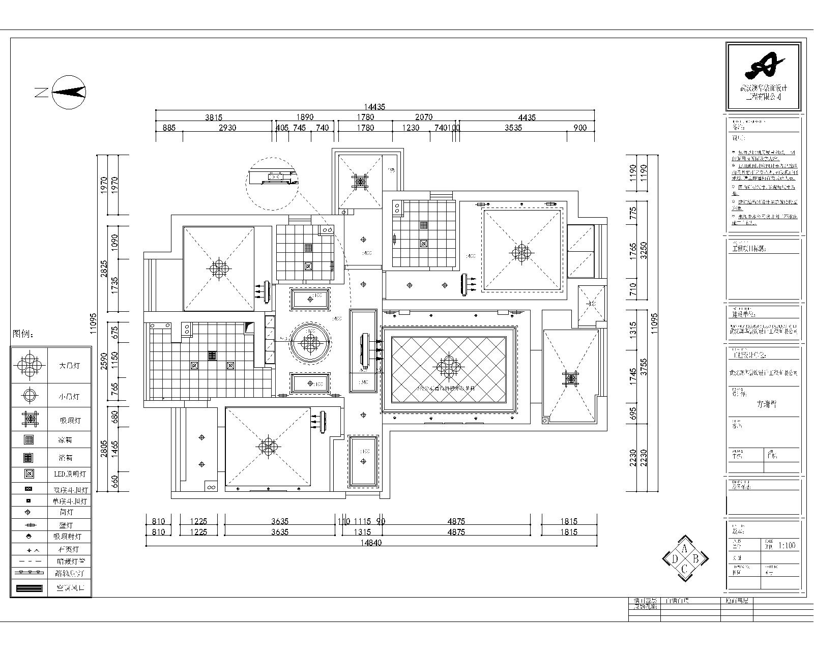
案例簡介:本案例的房屋位于喧囂的住宅區高層,有著絕佳的采光通風及觀賞視角,設計師將陽臺、會客區域與室外景色作為一個整體進行規劃設計,有效提升了室內外的聯系感,讓室外景色能夠“借”入會客區域,以提升整個客廳區域的格調感。而相同材質的穿插使用及不同類型塊面的碰撞,則讓整個家居空間更顯豐富,搭配以質感元素,品質韻味呼之欲出。
戶型解析:


新城璟悅城的這套三居室面積為123平方米,整體戶型南北通透、采光較好,設計師在設計時將重點放在了功能配比與動靜分區上,將休憩區域與會客區域、就餐區域隔開,以提升生活質感。為滿足主人的辦公、閱讀需求,設計師將一塊空間劃分為迷你書房,搭配以簡單的裝飾,讓空間兼具功能性與美觀性。
客廳:



白色水泥墻搭配上鑲金邊處理的電視背景墻,一種典雅的輕奢氛圍呼之欲出。綠色的絲絨沙發,則讓空間的色彩感更為跳躍活潑。
廚房:

廚房區域以暖黃色為主基調色,簡約清新而又不會顯得過于單調,核桃色的木質櫥柜,則讓空間更顯高級品質。
臥室:

臥室區域沒有過多的裝飾,僅以兩幅簡單藝術畫的疊掛作為裝飾點綴,簡約而又不失浪漫格調。
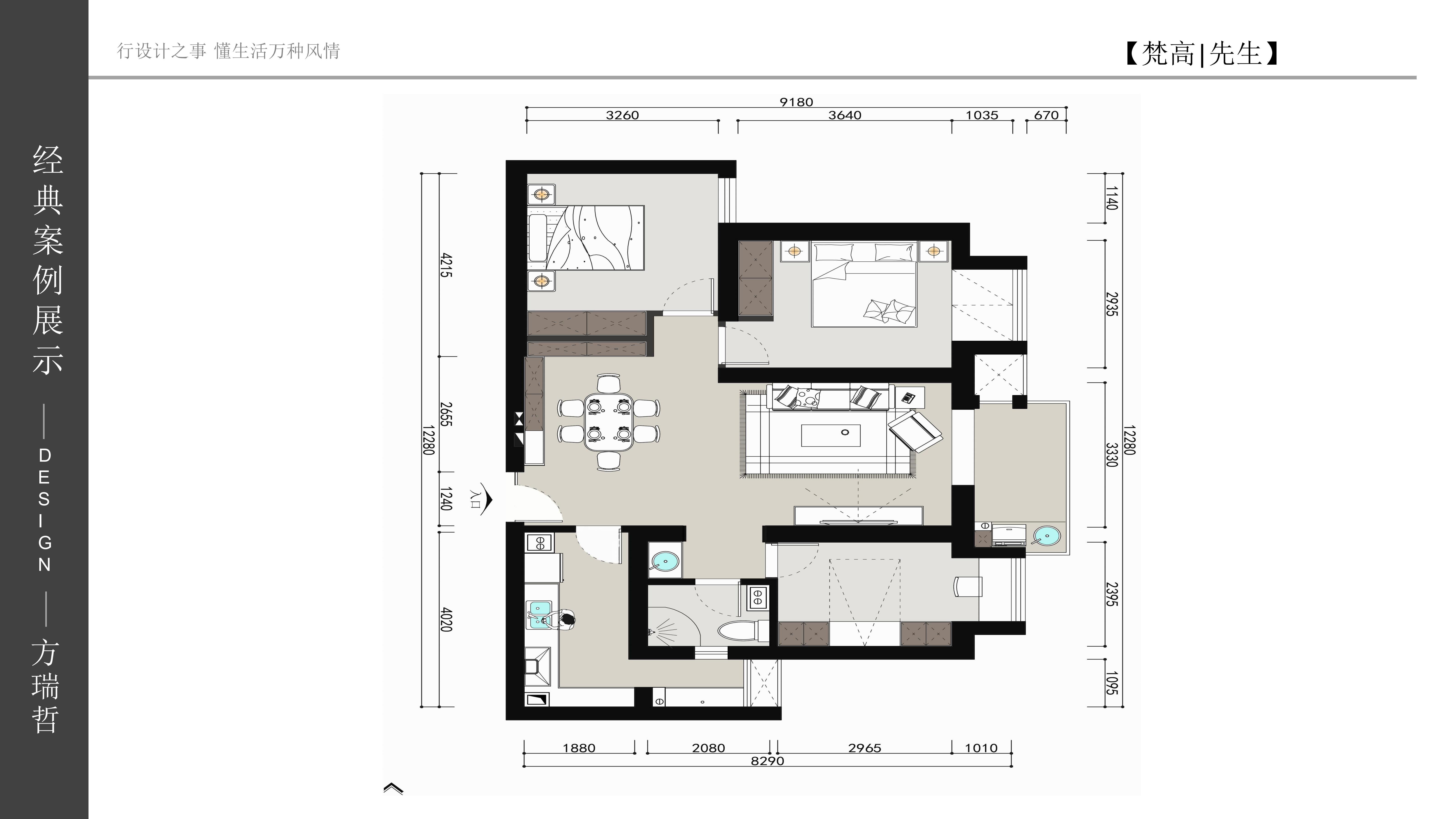
案例簡介:本案例的業主是一對80后夫妻,兩個人在大城市打拼多年終于買了屬于自己的房屋,對于這套來之不易的房屋兩人格外重視,而裝修上也十分上心。而設計師為了保障能夠呈現出讓業主滿意的裝修效果,在前提與這對夫妻進行了較為深入的溝通,在充分了解業主喜好、生活習慣后對空間進行了再規劃設計,同時通過材料本身的質感與線條搭配來營造一種簡歐輕奢的小資格調感。
戶型解析:



世茂錦繡長江的這套150㎡的四居室主宰整體格局呈現一個大正方形,因此在規劃設計上不適合將動靜區域完全分隔開,而設計師則利用將就餐區域作為家居中心點,臥室、廚房、客廳則圍繞就餐區域展開進行設計,有效提升空間利用率的同時有效提升了空間結構的層次感與豐富感。空間整體軟裝則以暖黃色為主基調色,與簡歐風相契合,強調溫和典雅氛圍。
客廳:

客廳區域使用了大量的歐式復古元素,在大面積暖黃色面的構造下點綴以造型設計,讓空間的簡歐華麗氛圍得到從容表達。
廚房:

簡約的暗紋瓷磚搭配上大面積的櫥柜,簡約耐看而又不失實用性。
臥室:

帶有印花處理的白色墻紙搭配以簡約的小清新掛燈就構成了臥室區域的整體軟裝,整體視覺效果清新簡約而不單調。
衛生間:

衛生間區域使用了大面積的淡黃色暗紋瓷磚鋪設墻面,強調簡歐風情。而櫥柜處的浮雕處理,則讓整個衛生間區域更具時尚感。
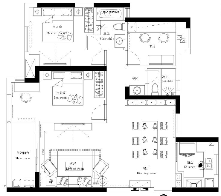
案例簡介:本案例是一個坐落于喧囂都市的大戶型別墅,業主希望設計師能夠幫助自己打造出一個高品質的格調家居,設計師結合業主的審美與實際情況為其打造了一個集高雅顏值與實用相融合的現代輕奢住宅,借助各種高品質的材料來提升空間質感,同時借助線條的律動來增添空間的時尚個性氛圍。
戶型解析:

華僑城這套五居室的別墅占地面積譽為235㎡,戶型結構四方且平整,空間劣勢在于入戶拐角區域的面積過于寬敞,且從風水的角度上分析該區域不適合作為休憩空間。本案例設計師則將該區域直接進行小隔斷,將該區域的外部空間打造成廚房,內部區域則改造為一個迷你的儲物間,收置各類零碎物件,以提升家居生活品質感。
客廳:

深褐色與灰色之間的碰撞,律動感十足的沙發混搭上線形背景墻,彰顯空間包容高雅格調。
書房:

大面積木色搭配上白色,強調溫潤清新的柔和靜謐感。嵌入式木質櫥柜收納性強且具有一定空間點綴效果。
衣帽間:

主臥的部分區域被打造成一個迷你衣帽間,借助大面積的收納強進行裝飾點綴,強調功能實用性的同時不失優雅高級感。
知精準報價 避裝修深坑
選擇您喜歡的風格
現代輕奢
現代美式
北歐
新中式
歐式
其他
知精準報價 避裝修深坑
選擇房屋面積區間
您的戶型
兩居室
三居室
四居室
五居室
六居室
知精準報價 避裝修深坑
稍等片刻,您的報價正在生中......
知精準報價 避裝修深坑
每日僅限前10名用戶