做事認真
案例簡介:作為多家庭成員,本案例的業主希望設計師在進行規劃設計的時候能夠考慮到不同家庭成員的生活習慣與審美,因此設計師在進行空間設計之前與業主及家人進行了一定的交流,在了解各位家庭成員的需求后對不同的功能空間進行選擇性的裝飾設計。而整體則選用符合大眾審美的現代簡約風進行軟裝,以兼顧不同年齡段家庭成員的審美。
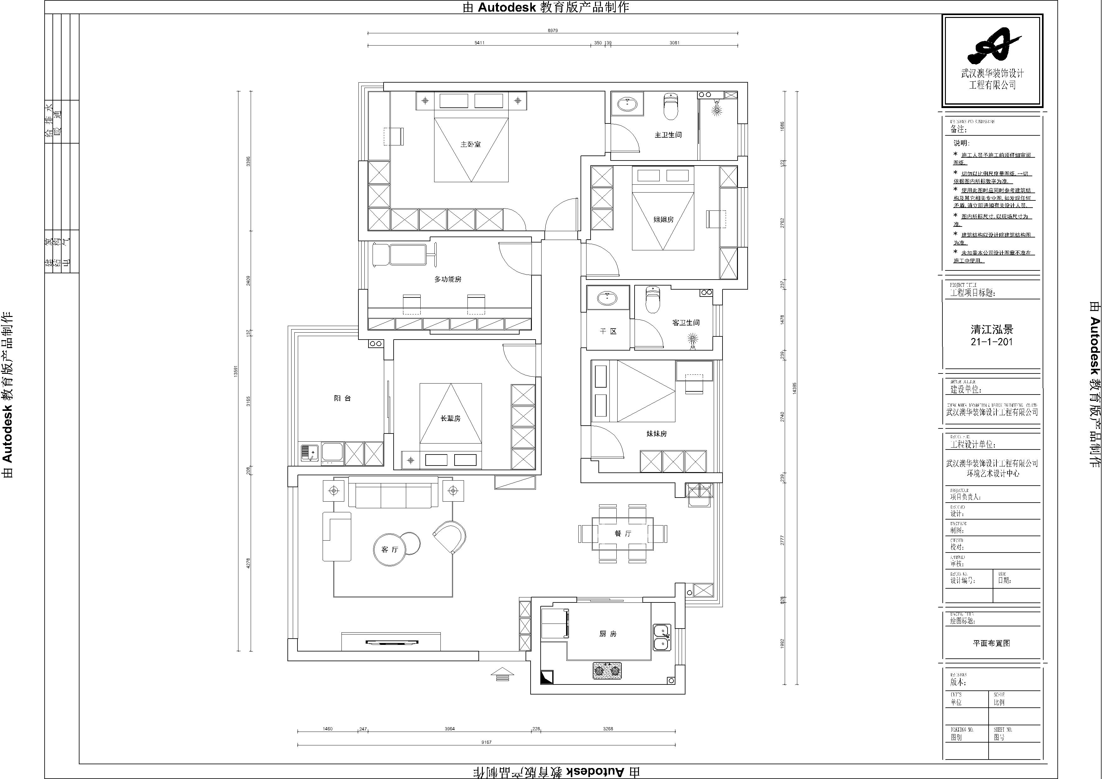
戶型解析:




位于清江鴻景的這套五居室住宅的占地面積約為138㎡,原有的房屋戶型結構存在著較多的細小角落,有的過道過于狹窄,對日常起居生活會造成一定不便利影響。因此設計師在進行規劃設計的時候,將戶型結構進行了一定的修改,將部分墻體去除,以提升整個空間的寬敞度。而為滿足不同家庭成員使用需求,則有針對性的對不同空間進行裝飾,強調個性感與舒適感。
客廳:




客廳整體用色素雅潔凈,強調柔和溫馨感。大面積的落地窗則確保陽光能夠更好的進入會客區域,提升生活品質。
主臥室:

白色墻面搭配上簡單掛畫,簡約而又不過于單調。藍色的窗簾為客廳同款,有效保證了各個空間的一致性。
長輩房:

由于業主家中老人偏愛寂靜的環境,因此老年人選擇了以黑白的經典搭配,點綴以清新山水畫,營造溫馨靜謐感。
兒童房:


兒童房的設計則從孩子的審美考慮出發,選擇了相對比較柔和明快的色彩進行裝飾,搭配以童真掛畫,甜美而又溫馨。
案例簡介:本案例的家庭為幸福的五口之家,除了業主夫妻二人外還有業主的父母與孩子,因此業主希望設計師能夠根據不同家庭成員的需求對空間進行合理的規劃與設計,以提升起居幸福感。而在與所有家庭成員進行一定交流溝通后,設計師折中選擇了認可度比較高的現代輕奢風作為空間主裝修基調,而色彩的選擇上則以簡潔素雅為主,這樣相對比較耐看且易于打掃。
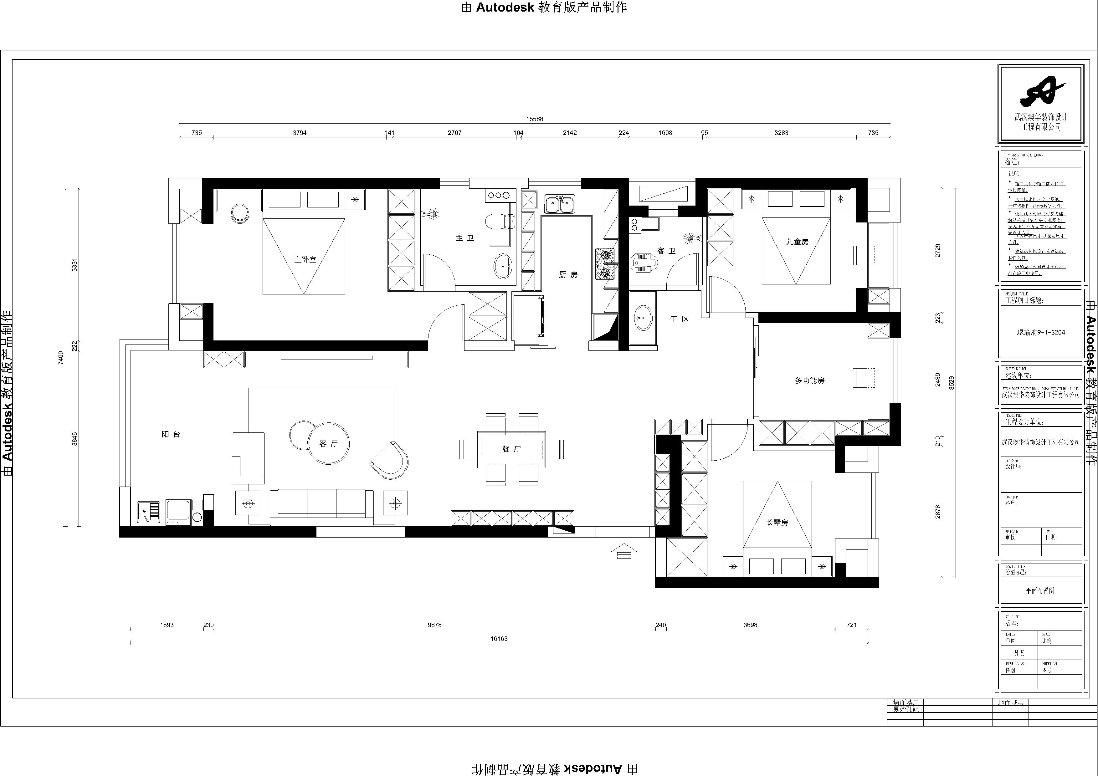
戶型解析:





這套位于琨瑜府的四居室面積譽為158㎡,整體的戶型結構相對比較平整合理,且不存在各種犄角區域,因此設計師在進行空間規劃時沿用了原來的空間格局,同時借助各種不同的隔斷進行空間劃分,以提升整個家居空間的豐富感。而針對不同家庭成員的生活習慣與審美,不同臥室空間則有針對性的進行了個性化裝飾。
客廳:


嵌入式的照明燈具既可以滿足日常使用需求,又易于打理。圓形大理石茶幾簡約清新而又不失高級藝術感。
長輩房:

灰色墻面搭配上深灰色床體,簡約而又舒適,很好滿足老年群體審美需求,且能夠營造一個靜謐的氛圍,有助于提升睡眠質量。
主臥

墻面借助木材與水泥材質兩種不同的材料進行空間裝飾,簡約而又賦予空間結構變化美。
兒童房:

大面積的灰色搭配上小區域的原木色,簡約清新而又耐看。一體式收納柜既可以滿足物件歸置需求,又能滿足孩子學習使用需求。
案例簡介:本房屋的業主喜歡簡潔實用的裝修風格,不喜歡過度裝修。再者由于裝修預算有限,因此業主希望設計師能夠盡可能的使用一些實用性元素進行空間設計。于是設計師利用最簡約的元素與色彩進行空間的裝飾點綴,在簡單而又不失質感的設計中幫助業主尋得適合生活的溫度平衡,提升家居生活品質。
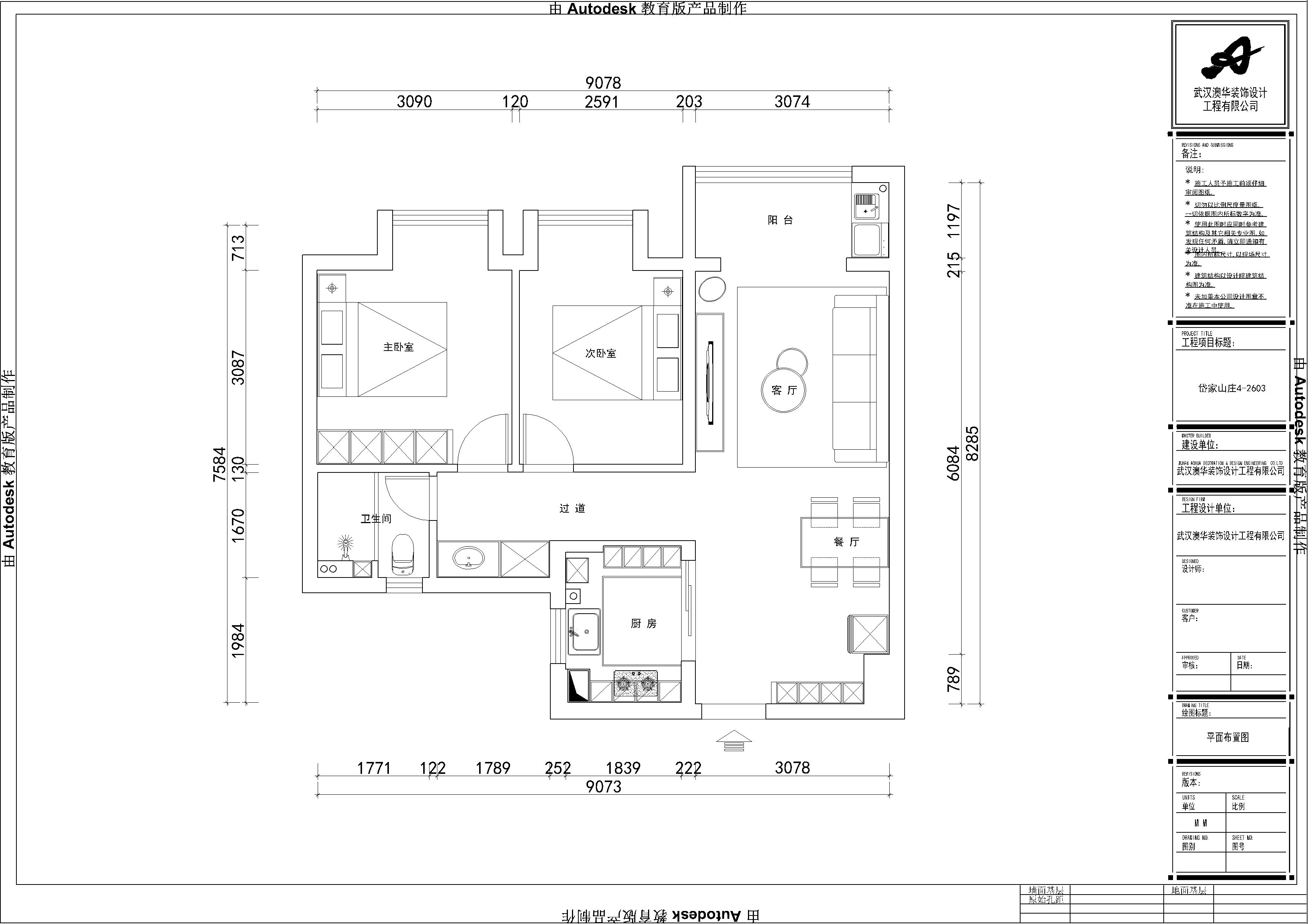
戶型解析:





岱家山莊這套78㎡的二居室房屋原有結構就已經進行了一定的功能分區,為了幫助業主節約裝修花銷,設計師在原有的戶型結構基礎上進行再設計,同時將狹小的過道進行一定的色彩點綴,以提升空間的寬敞度。整體裝修則選用簡約感十足而又不失時尚氛圍的現代風進行裝飾,以滿足業主審美需求。
過道:

過道增加無燈具的采光設計,在增強采光的同時提升空間明亮度與視覺寬敞度。
客廳:


由于客廳區域寬度不夠,因此設計師選用了相對比較素雅的色彩進行客廳裝飾,沙發則選用了帶有絲絨材質的長條形沙發,優雅耐看的同時從視覺上拉伸客廳寬度。
餐廳:

就餐區域設置在拐角處,同時借助簡單的餐桌椅與吊燈完成軟裝,強調實用性。
臥室:

藕粉色墻面搭配上白色簡潔的櫥柜,優雅又耐看。小清新感十足的植物掛畫則增添了空間在自然風情。
知精準報價 避裝修深坑
選擇您喜歡的風格
現代輕奢
現代美式
北歐
新中式
歐式
其他
知精準報價 避裝修深坑
選擇房屋面積區間
您的戶型
兩居室
三居室
四居室
五居室
六居室
知精準報價 避裝修深坑
稍等片刻,您的報價正在生中......
知精準報價 避裝修深坑
每日僅限前10名用戶