案例簡介:本房屋的業主喜歡簡潔實用的裝修風格,不喜歡過度裝修。再者由于裝修預算有限,因此業主希望設計師能夠盡可能的使用一些實用性元素進行空間設計。于是設計師利用最簡約的元素與色彩進行空間的裝飾點綴,在簡單而又不失質感的設計中幫助業主尋得適合生活的溫度平衡,提升家居生活品質。
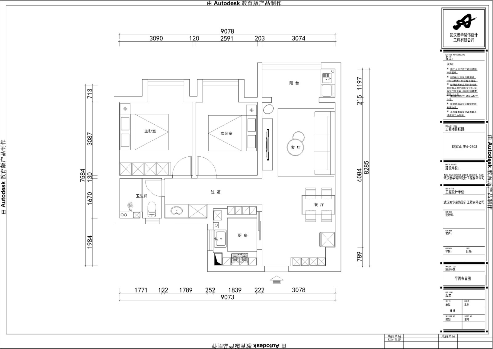
戶型解析:





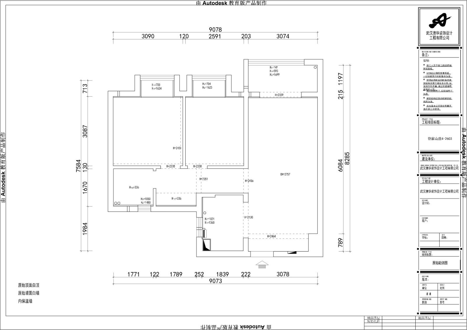
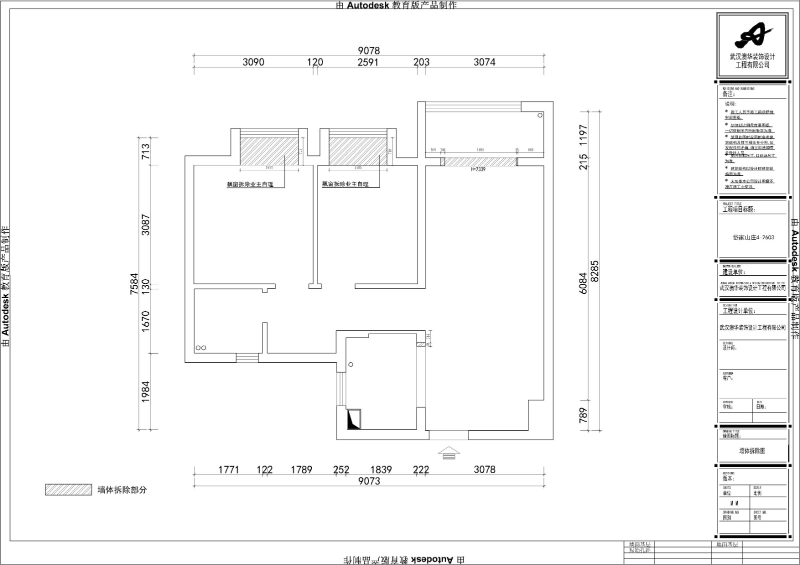
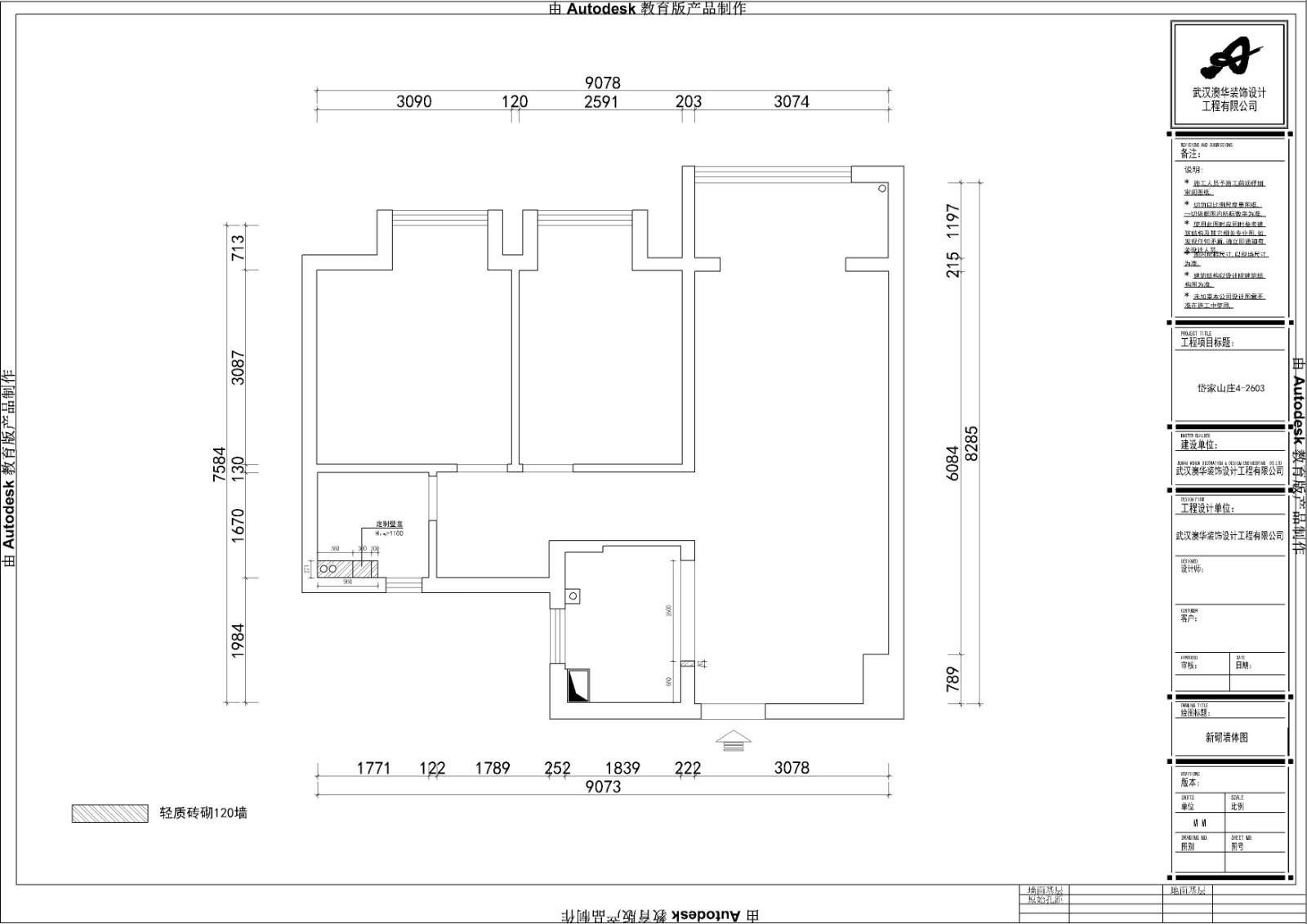
岱家山莊這套78㎡的二居室房屋原有結構就已經進行了一定的功能分區,為了幫助業主節約裝修花銷,設計師在原有的戶型結構基礎上進行再設計,同時將狹小的過道進行一定的色彩點綴,以提升空間的寬敞度。整體裝修則選用簡約感十足而又不失時尚氛圍的現代風進行裝飾,以滿足業主審美需求。
過道:

過道增加無燈具的采光設計,在增強采光的同時提升空間明亮度與視覺寬敞度。
客廳:


由于客廳區域寬度不夠,因此設計師選用了相對比較素雅的色彩進行客廳裝飾,沙發則選用了帶有絲絨材質的長條形沙發,優雅耐看的同時從視覺上拉伸客廳寬度。
餐廳:

就餐區域設置在拐角處,同時借助簡單的餐桌椅與吊燈完成軟裝,強調實用性。
臥室:

藕粉色墻面搭配上白色簡潔的櫥柜,優雅又耐看。小清新感十足的植物掛畫則增添了空間在自然風情。
知精準報價 避裝修深坑
選擇您喜歡的風格
現代輕奢
現代美式
北歐
新中式
歐式
其他
知精準報價 避裝修深坑
選擇房屋面積區間
您的戶型
兩居室
三居室
四居室
五居室
六居室
知精準報價 避裝修深坑
稍等片刻,您的報價正在生中......
知精準報價 避裝修深坑
每日僅限前10名用戶