案例簡介:此次案例的業主是一位退休老人,他希望能夠擁有一個沉穩大氣而又端莊的起居空間,也因此設計師在裝修風格的選擇上優先考慮了新中式風,同時借助各類木質元素與深色色彩來營造空間的沉穩大氣氛圍,再點綴上各類中式裝飾元素,烘托空間的古韻典雅氛圍,以滿足老年業主的審美需求。
戶型解析:


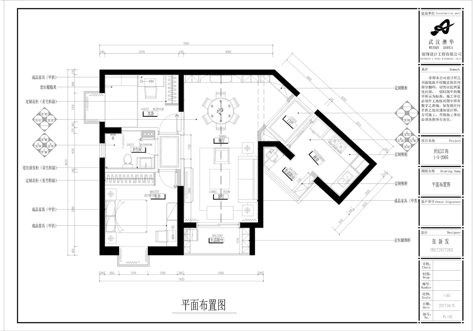
世紀江尚這套89㎡的房屋戶型存在著較大缺陷,原本房屋建筑面積就不算大,還存在著一個突兀的拐角空間,因此在設計時需要對空間的功能區域進行合理的劃分,同時對拐角區域的空間進行合理的利用,以避免空間出現違和感。而由于房屋整體面積較小,因此家具的選擇上則多考慮小體量家具,避免造成視覺違和感。
客廳:



大面積的木質材料搭配上鑲邊處理,簡約中透露著一股精致的古韻美。
餐廳:



借助木質櫥柜進行空間分隔,既可以起到有效隔斷作用,又提升了空間利用率。白色餐座椅則化解了大量深色元素帶來的壓迫感。
廚房:


廚房以簡約的白色作為主基調色,從視覺上放大空間,而櫥柜處的木質門既可以與外部空間形成呼應,又提升了廚房區域的結構感。
臥室:



復古造型衣柜奠定空間古韻氛圍,帶有造型設計的床頭柜,則為空間平添精致趣味。
衛生間:

該區域沿用與其他功能空間一致的木質材料,強調空間協調感,搭配以灰色瓷磚,典雅而又耐看。
| 姓名* | |
| 樓盤* | |
| 電話* | |
知精準報價 避裝修深坑
選擇您喜歡的風格
現代輕奢
現代美式
北歐
新中式
歐式
其他
知精準報價 避裝修深坑
選擇房屋面積區間
您的戶型
兩居室
三居室
四居室
五居室
六居室
知精準報價 避裝修深坑
稍等片刻,您的報價正在生中......
知精準報價 避裝修深坑
|
每日僅限前10名用戶