线上股票配资平台-股票杠杆网站佰朔资本简介-【东方资本】,10倍杠杆炒股,支持中信证券的手机炒股软件,想学炒股怎么入门

24小時咨詢電話
027-82411111
當前位置 : 首頁 > 大咖設計 > 汪海
找TA設計
經驗豐富
DESIGNER
汪海 主任設計師
從業時間 : 2002 作品數量 :6套
司 : 總部旗艦店
業主評價 :
    • 設計構思巧妙
    • 做事認真
    • 方案規劃合理
    • 有創意
    • 專業可靠
    • 交給他放心
    法式,新中式,中古風,意式風,奶油風
    • 個人簡介
    • 設計理念
    • 經典樓盤
    • 中國裝飾協會高級會員

      中國建筑裝飾協會高級室內設計師

      2016筑巢杯全國優秀作品獎

      2017紅璽杯最佳優秀表現獎

      2018筑巢杯全國優秀作品獎

      2019歐亞達杯DK設計大賽銀獎

      2020年紅鼎獎優秀作品

      2021中國室內設計年度評選設計優秀獎

    • 設計來源于生活,服務于生活。

    • 華潤悅府,一江璟城,中建大公館


    相關案例
    戶型解析
    在施工地
    其他案例推薦
    相關案例
    戶型解析
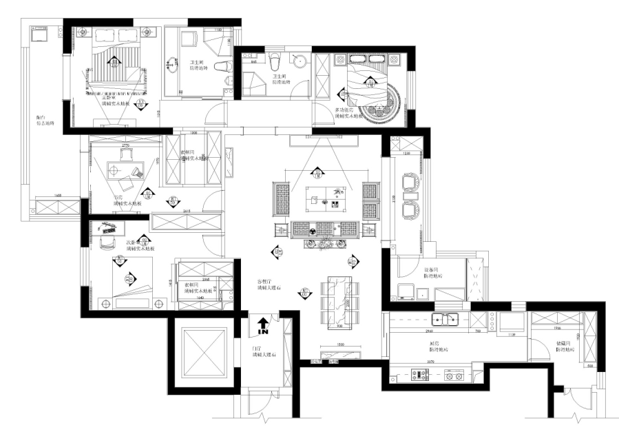
    綠地金融國際城220㎡ 四居室中式雅苑戶型解析
    大平層
    220m2
    中式

        案例簡介:基于本案例業主的背景、喜好還有個人追求,設計師選用了中式風格打造空間,從典雅的山水畫意境入手,搭配以傳統中式住宅設計手法,雜糅現代時尚元素,將傳統古風韻味與現代都市生活相融合,呈現出帶有現代時尚氣息的特色復古住宅,讓業主能夠在喧囂的城市中,獲得一個心靈棲息之所。


        案例解析:


    QQ截圖20190327092653.png


    QQ截圖20190327092734.png

        這套位于綠地金融國際城的四居室房屋面積雖然在220㎡左右,但是由于戶型并不方正平整,且存在著零碎角落,因此存在著較大的設計難題。為了讓所有的空間都得到合理的充分利用,化解戶型缺陷,設計師對空間進行了再規劃,將入戶處左邊的狹長條區域打造成廚房,利用戶型的轉折減少油煙進入生活空間的概率。同時將該區域進行一定的再切割,規劃出一塊置物空間,有效提升了家居空間的利用率。


        客廳:




        對稱式的設計搭配上帶有傳統結構制造的木質家具,一種清新典雅的復古韻味在空間中悠然流淌。


        餐廳




        餐廳區域借用淡雅的水墨畫起到視覺延伸的作用,搭配以各類帶有木材紋理的木質家具,強調一種空靈的自然典雅之美。


        廚房:




        長條形的廚房空間面積相對比較狹小,因此設計上使用了大量的收納元素,減少各類瑣碎物件出現在明面上的概率。


        臥室:




        古色古香的臥室門、做舊復古的吊燈、鑲邊處理的吊燈讓臥室洋溢著一股古韻氣息。而淡藍色的床具則讓空間多一抹輕快明麗的氣息。


        衛生間:


    衛生間.jpg

        暗紋的灰色瓷磚墻面為衛生間空間營造了一種清冷潔凈的氛圍,而帶有傳統總是元素的鏡子則讓衛生間區域與整個家居空間更加契合。


    在施工地
    • 開工
    • 前期
    • 中期
    • 后期
    • 竣工
    預約設計師
    海量行家, 搶訂免費設計服務
    每日前20名申請用戶, 獲3D裝修設計圖
    預約設計師
    姓名*
    樓盤*
    電話*
    *為了您的權益, 您的隱私將嚴格保密
    推薦相關案例
    免費獲取同款設計方案
    姓名*
    樓盤*
    電話*
    *為了您的權益, 您的隱私將嚴格保密
    預約成功
    您已報名成功, 稍后會有客服人員聯系您。 您的隱私將被嚴格保密。
    關注二維碼了解更多裝修知識
    聯系我們
    裝修咨詢電話 : 027-82411111
    售后服務電話 : 027-82866788
    公司地址 : 武漢市江岸區澳門路232號金冠大廈
    關于我們
    友情鏈接 :
      武漢澳華裝飾設計工程有限公司 頁面版權所有 www.mami-care.com

      算一算,您家裝修需要花多少錢?

      知精準報價 避裝修深坑

      01/03

      選擇您喜歡的風格

      • 現代輕奢

      • 現代美式

      • 北歐

      • 新中式

      • 歐式

      • 其他

      算一算,您家裝修要花多少錢?

      知精準報價 避裝修深坑

      02/03

      選擇房屋面積區間

      • 80-100㎡
      • 100-140㎡
      • 140-200㎡
      • 200-300㎡
      • 300㎡以上

      03/03

      您的戶型

      • 兩居室

      • 三居室

      • 四居室

      • 五居室

      • 六居室

      算一算,您家裝修要花多少錢?

      知精準報價 避裝修深坑

      0%

      稍等片刻,您的報價正在生中......

      算一算,您家裝修要花多少錢?

      知精準報價 避裝修深坑

      您的完整報價已經生成

      報名成功享搶訂優惠名額

      每日僅限前10名用戶