案例介紹
業主對家的定義:作為多子家庭,孩子的生活品質是自己極為關注的部分,在風格的選擇上,奢華而不奢靡的歐式風格能為孩子帶來更多優質的視覺感受,而歐式家具的細膩質感能帶來品質的生活體驗,符合家庭對家的期待。業主希望孩子在空間中有用更多活動面積,精致布置之余不失童趣與溫馨感。
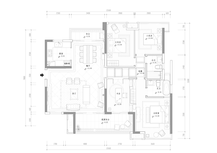
戶型解析

這是橡樹灣中一套160㎡的四居室,戶型面積中等,采光條件好,但內部分區較多,休憩區分區雜亂,需要設計出有邏輯的行動走線,這樣整體空間才具有設計感和時尚感。將餐廳與客廳中的非承重墻拆除,將兩個功能區合二為一,擴大了公共區域面積,使日常走動更為方便,以過道為中心,南北各分布兩個休憩區,日常生活變得更為舒適。
玄關


玄關為進門見廳的格局,過道并不長,墻面裝飾簡單。
客廳


餐廳與客廳一體化布局,白色基調下給人一種雍容典雅的視覺觀感,歐式皮質沙發自帶質感與顏值,搭配方形歐式茶幾和深灰色地毯,演繹出優雅、上檔次的歐式風尚,在整個空間中,家具多以獸腿造型呈現,符合歐式風格特色。
臥室

臥室空間邂逅浪漫紫色,時尚高雅的軟包設計不僅增添了隔音效果,也散發出優雅古典的歐式氣息,電視機的融入凸顯出主人對高品質生活的追求,傳遞出舒適智能的歐式生活品質。
其他

兒童房以米色調為背景,搭配白色歐式雙人床,傳遞出靜謐柔和的家居氛圍,卡通元素的融入令空間洋溢著青春鮮活的氣息。
知精準報價 避裝修深坑
選擇您喜歡的風格
現代輕奢
現代美式
北歐
新中式
歐式
其他
知精準報價 避裝修深坑
選擇房屋面積區間
您的戶型
兩居室
三居室
四居室
五居室
六居室
知精準報價 避裝修深坑
稍等片刻,您的報價正在生中......
知精準報價 避裝修深坑
每日僅限前10名用戶