案例介紹
業主對家的定義:家里有兩個孩子,一個上四年級,一個上初一,210㎡四房戶型基本夠我們使用,主臥的原始面積不夠大,雖然自帶衛浴間,但居住起來有些不夠舒展,希望主臥能有一個更衣室,令空間看上去更開闊,另外,客廳有一些零碎的角落不知道如何調整,希望設計師利用這些角落,盡可能令房間變得更舒展。風格上,我們希望呈現出的是有品質,能凸顯生活品味的設計方案。
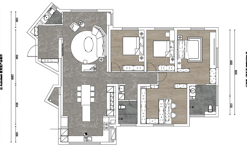
戶型解析

這是一套位于華潤悅府的210m?的四房戶型,雖設有玄關,但進門能看到客廳,空間私密性不是很好,客廳空間零碎部分較多,功能銜接上不是很舒服,為了提高客廳利用率,玄關處增加了隔斷,并將隔斷設計為電視墻,提升了客廳的銜接感,零碎角落面積做了分割,以保證客廳空間的完整與舒適。業主提到的衣帽間也做出了獨立設計,并與主臥進行銜接,令主臥生活更加舒適開闊。
玄關

入戶右邊增加了定制玄關柜,中上部分設計為隱性柜面,下部置空并增設了燈帶,便于收納展示裝飾物品,中部增加了墻體隔斷,細節處呈現出輕奢質感。
客廳

客廳空間以白色和灰色為主,無主燈的空間設計令視覺更為寬敞明亮,為提升空間收納,左側背景墻中設計了收納柜,其中還增置了燈帶,搭配灰色沙發,整個空間更為優雅。
臥室

米色與白色護墻板相互碰撞,在燈光的映射下營造出舒適溫馨的視覺觀感,褐色衣柜立面干凈,并作為半隔斷存在,增添了臥室空間的層次感。
知精準報價 避裝修深坑
選擇您喜歡的風格
現代輕奢
現代美式
北歐
新中式
歐式
其他
知精準報價 避裝修深坑
選擇房屋面積區間
您的戶型
兩居室
三居室
四居室
五居室
六居室
知精準報價 避裝修深坑
稍等片刻,您的報價正在生中......
知精準報價 避裝修深坑
每日僅限前10名用戶