案例介紹:業主對家的定義強調質感,追求細膩,喜歡歐式藝術帶來的沖擊,希望家里不經意間就能邂逅歐式藝術,在前期的設計溝通中還了解到,女業主頗愛深紫色,認為紫色自帶歐式宮廷調調,深邃耐看,氤氳優雅,紫色,是女業主心中對家的雛形。
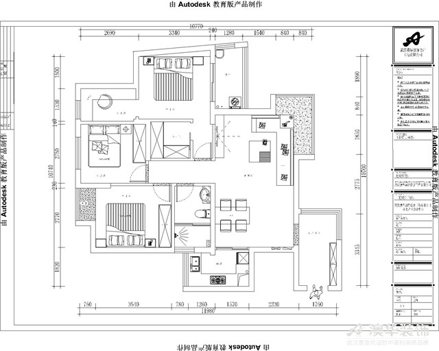
戶型解析

戶型本身格格局周正,設計師并未做過多調整;客餐處于同個空間下,橫廳設計,帶來更好的采光和通風,居住也會更加舒適;主臥帶衣帽間和陽臺,拐角處被設計為工作臺,滿足業主日常辦公需求;次臥格局緊湊,到公共衛生間的距離很近,居住舒適;衛浴間做了干濕分離設計,令日常打掃變得更加方便。
客廳

客廳吊頂耐人尋味,搭配水晶吊頂,加持了華麗感;客廳家具顏色以黑色為主,搭配女主人頗愛的紫色軟裝,呈現出深邃、浪漫的空間氛圍,使客廳空間更加優雅大氣。
餐廳

餐廳私密性強,空間背景鋪貼了歐式墻紙,美觀又容易打理,餐桌椅沿用黑色碰撞紫色的配色方式,演繹出歐式古典與現代的激情碰撞,提升了空間的格調感。
知精準報價 避裝修深坑
選擇您喜歡的風格
現代輕奢
現代美式
北歐
新中式
歐式
其他
知精準報價 避裝修深坑
選擇房屋面積區間
您的戶型
兩居室
三居室
四居室
五居室
六居室
知精準報價 避裝修深坑
稍等片刻,您的報價正在生中......
知精準報價 避裝修深坑
每日僅限前10名用戶