案例介紹:這套中建南湖壹號112㎡的新房是業主購置給老人退休養老使用,兩位老人常住,周末或假期自己會帶著孩子過來一起住,三房戶型剛好可以滿足這一需求。經過前期的溝通設計師了解到,二位老人不喜歡全實木家具,希望新中式風的新家里,以時尚簡單的家具為主,色彩切勿沉重,對空間收納有一定需求。
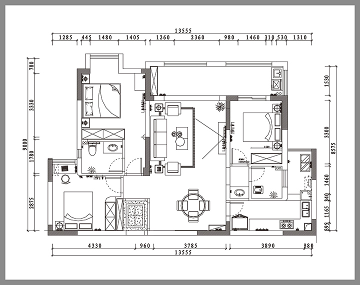
戶型解析

戶型方正,空間中柱子、橫梁與排污管道較少,通風面多,居住理想。客廳與餐廳一體銜接,并與其中一個臥室使用同一個陽臺,空間通風因此變得更好,另外,在三個臥室中,其中兩個臥室都帶有衛生間,日常使用十分方便。
玄關

為緩解進門見廳的尷尬局面,玄關處設計了實體半隔斷,掛畫裝飾后觀感非常棒;玄關柜采用嵌入式設計,立面干凈,為玄關空間贏出更多活動空間。
客廳

客廳采用新中式天花設計,在線條的勾勒下及中式燈具的點綴下,進一步擴大了客廳的通透感;沙發部分依業主需求,使用了現代白色沙發,搭配木質茶幾、電視地柜及新中式軟裝,令空間顯得更加輕盈。
臥室

臥室背景墻采用對稱的設計手法,中部通過時尚軟裝增加品質感,白色與藍色的床品搭配營造出滿滿的禪意感,呈現出古香古色的新中式氛圍。
知精準報價 避裝修深坑
選擇您喜歡的風格
現代輕奢
現代美式
北歐
新中式
歐式
其他
知精準報價 避裝修深坑
選擇房屋面積區間
您的戶型
兩居室
三居室
四居室
五居室
六居室
知精準報價 避裝修深坑
稍等片刻,您的報價正在生中......
知精準報價 避裝修深坑
每日僅限前10名用戶