案例簡介:本案例的業主是一對年輕的夫婦,兩人均喜歡簡潔干凈的元素,不喜歡各類繁瑣而又負責的設計,因此設計師在對本案例房屋進行規劃設計的時候,選擇了簡約感較為濃烈的現代輕奢風格,同時減少空間的造型設計,色彩也優先選擇各類素雅潔凈的色調,以滿足兩位業主的審美。同時,為滿足女主人的使用需求,設計師還單獨規劃出一個迷你的衣帽間,以起到衣服替換、放置的使用需求。
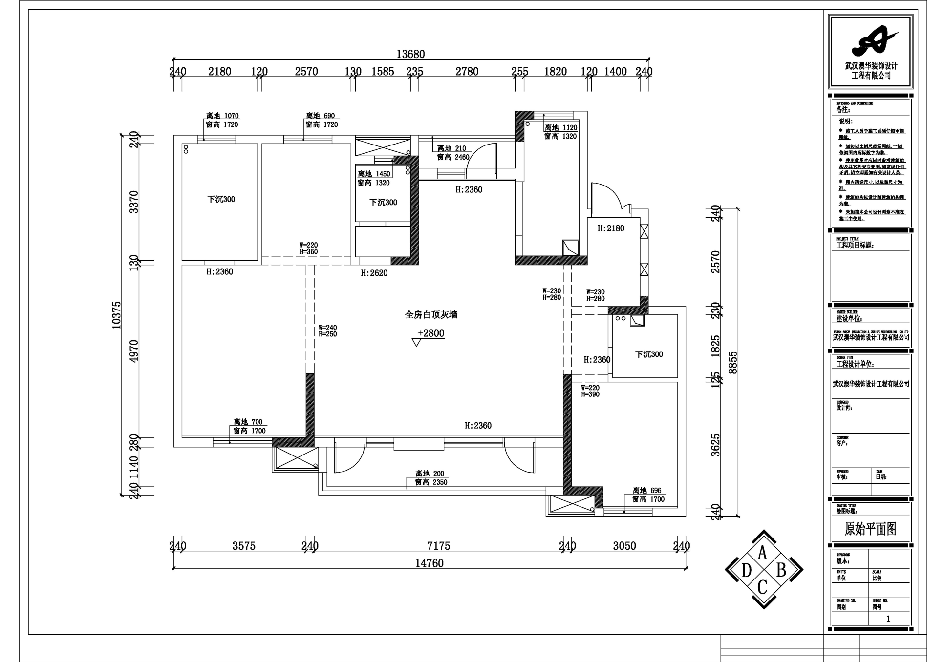
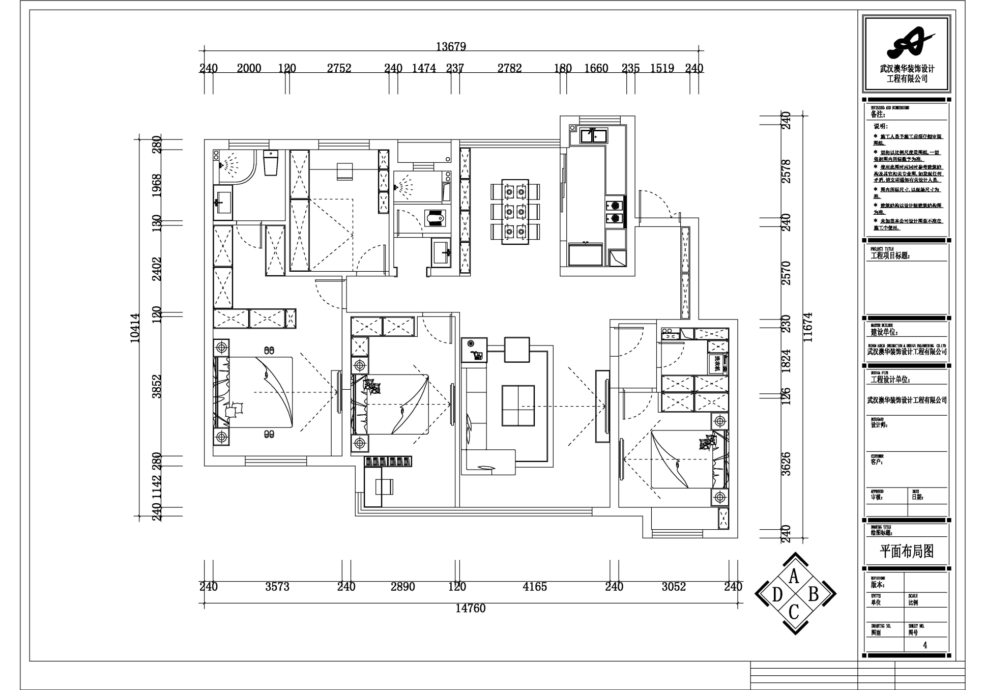
戶型解析:


這套融創觀瀾府的四居室房屋建筑面積在143㎡左右,房屋的結構已經有了雛形,且業主為了節約裝修花銷,提議設計師在原有的戶型結構上進行裝修設計。因此設計師保留了原有的功能結構,同時借助色彩、材質等軟裝元素為房屋進行“包裝”,以保障裝修效果。同時,為提升空間質感,設計師選用了大量“隱形”設計,如材質本身的紋理等,以起到在無形中裝飾空間的作用。
客廳:




借用隱形門作為電視背景墻,藝術感十足而又有效提升了藝術墻面的利用度。
餐廳:



嵌入式的“隱形”置物柜有效提升了空間利用率,亮橘色的椅子則有效提升了空間的跳躍感與視覺舒適度。
廚房:



簡約的木材搭配上清冷感十足的藕色瓷磚,清爽中又透露著一抹自然氣息。
兒童房:



帶有童真感的衣柜利用鏤空設計起到造型打造的作用,趣味性十足而又不失去實用性。
| 姓名* | |
| 樓盤* | |
| 電話* | |
知精準報價 避裝修深坑
選擇您喜歡的風格
現代輕奢
現代美式
北歐
新中式
歐式
其他
知精準報價 避裝修深坑
選擇房屋面積區間
您的戶型
兩居室
三居室
四居室
五居室
六居室
知精準報價 避裝修深坑
稍等片刻,您的報價正在生中......
知精準報價 避裝修深坑
|
每日僅限前10名用戶