案例簡介:本案例的業主是一位年輕的80后企業女領導,忙于工作的她對于家居生活空間有著更高的要求,希望能夠讓自己的心靈在家居空間中更好的得到休憩。因此,設計師在進行裝修設計的時候,選用了相對比較柔和的色彩作為主基調色,以營造一種朦朧溫馨的視覺效果。而各類材料則優先選用質感強的,以滿足女業主的審美需求。
戶型解析:


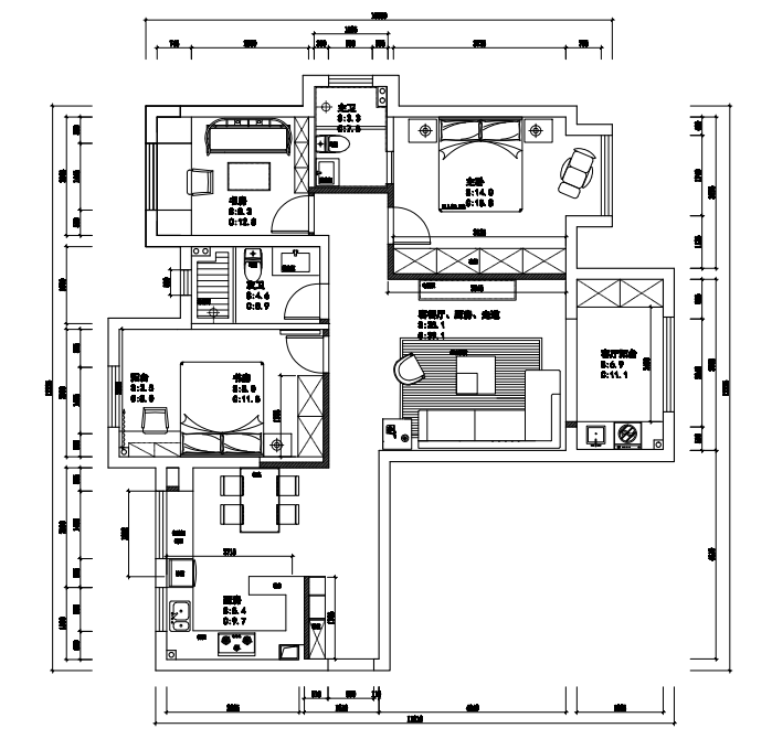
水岸國際·時代上城這套三居室的房屋占地面積約為120㎡,原有的戶型結構已經進行了基本的功能分區,因此設計師更需要做的是整體的軟裝設計。根據業主的日常生活習慣及審美,設計師實用了大量少女感十足的元素,同時借助各類隱形收納提升空間整潔度。而裝修風格的選擇上,則選用了相對比較素雅高級的現代輕奢風,與女主人的職業相吻合。
客廳:




大面積的素色碰撞上暖色系燈具,一種朦朧柔和的溫馨質感油然而生。
餐廳:




淺色系的主基調色搭配上藝術感十足的燈飾,簡約清新而又不失時尚氛圍。亮橘色的墻面裝飾,則打破了空間的單調感。
廚房:



為提升廚房空間的清爽感,該區域選用了大面積的白色作為主基調色,搭配上暖黃色的燈光,營造一種溫馨而又潔凈的舒適感。
臥室:


藝術掛畫搭配上蕾絲邊的空調罩,讓整個休憩空間充分濃濃的少女感。
衛生間:


墻面借助不同色彩濃度的瓷磚進行鋪設,耐看的同時有效提升了空間的結構感。
知精準報價 避裝修深坑
選擇您喜歡的風格
現代輕奢
現代美式
北歐
新中式
歐式
其他
知精準報價 避裝修深坑
選擇房屋面積區間
您的戶型
兩居室
三居室
四居室
五居室
六居室
知精準報價 避裝修深坑
稍等片刻,您的報價正在生中......
知精準報價 避裝修深坑
每日僅限前10名用戶