案例簡介:在家裝設計中有一種設計手法叫做留白,這指的是借助大面積的空白營造空間的韻味感,給人以無限遐想,這是簡約風中最為常見的設計手法,能夠讓人在家居空間中更好的放空自己。而本案例的業主不喜歡設計繁瑣的家居空間,希望通過最為簡潔的元素打造出干凈舒適的休憩空間,因此最終設計師為業主敲定了帶有留白設計的簡約風軟裝,通過合理的點綴搭配大面積留白來營造一種獨特的優雅高級感。
戶型解析:


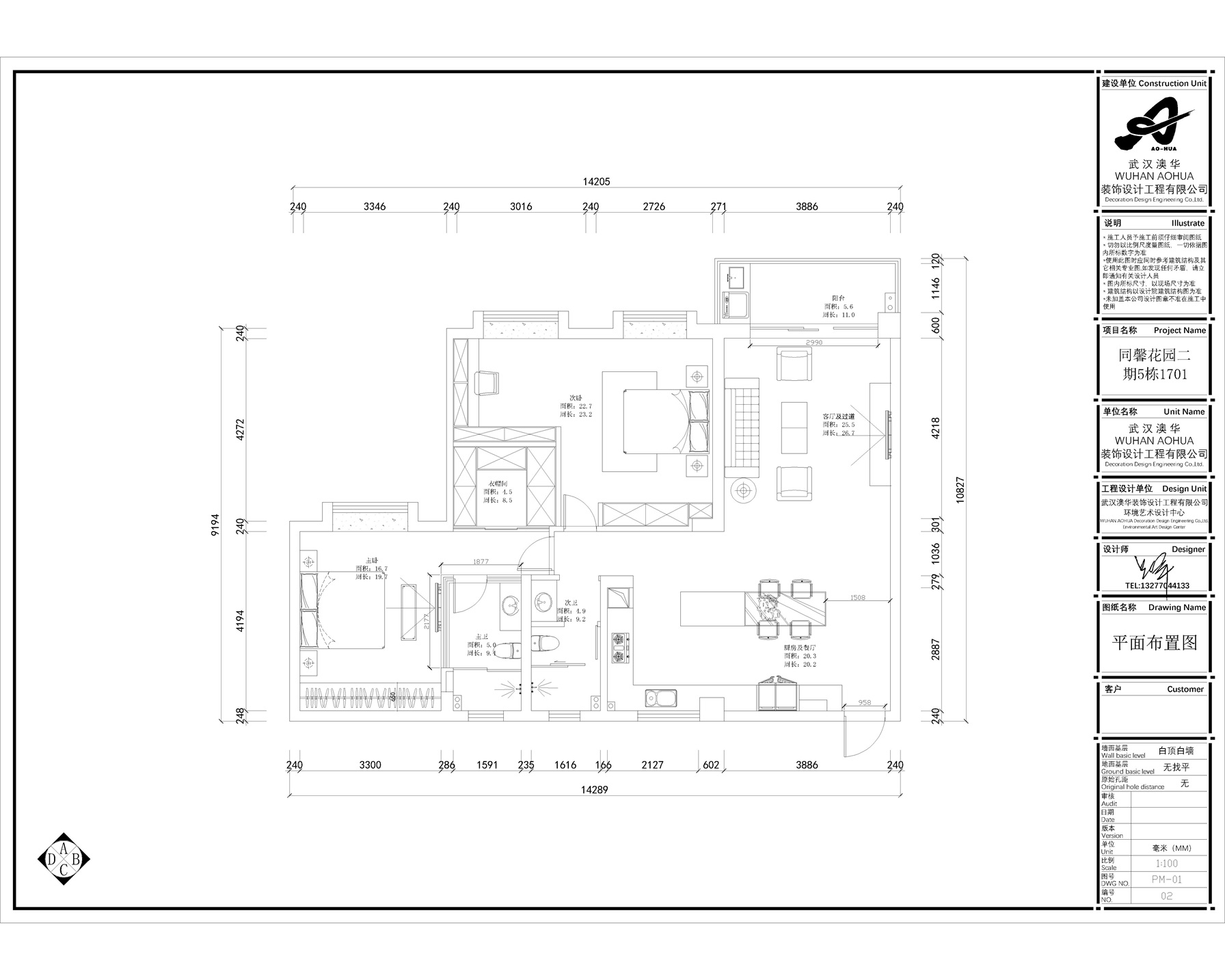
同馨花園這套140㎡的三居室雖然原有的戶型結構較為平整四方,且已經完成了基本的分區規劃,但是由于不能滿足業主日常起居使用需求,因此設計師根據業主個人使用需求將內部次臥區域直接打通,其中一部分向主臥延伸打造成衣帽間,而另外一部分則用于擴大另外一個次臥的面積,以提升生活品質感。廚房區域的墻面則直接打通,將廚房改造成為一個開放式設計,再借助軟隔斷融入就餐區域,提升空間的利用率。
客廳:

摒棄各種花里胡哨的設計,借助大理石材質本身的質感提升空間品味。嵌入式背景墻設計既可以節省一定室內空間,又有效保障室內時尚感。
書房:

書房面積較小,因此僅擺放了簡單的桌椅,再搭配上懸掛式收納柜,滿足日常辦公、閱讀需求。
臥室


臥室背景墻借用線條抒發空間簡約潔凈氛圍,舒適柔軟的床具搭配上簡潔大方的設計,讓人在素雅潔凈中更好享受生活的寧靜。
衛生間:

衛生間借用透明玻璃門進行干濕分離,有效提升衛浴環境品質感。
知精準報價 避裝修深坑
選擇您喜歡的風格
現代輕奢
現代美式
北歐
新中式
歐式
其他
知精準報價 避裝修深坑
選擇房屋面積區間
您的戶型
兩居室
三居室
四居室
五居室
六居室
知精準報價 避裝修深坑
稍等片刻,您的報價正在生中......
知精準報價 避裝修深坑
每日僅限前10名用戶