案例簡介:現代輕奢風借用了最為簡潔的元素來展示一種由內向外的高級格調感,強調一種內斂的獨特品味,這也是現代輕奢風的魅力所在。而本案例的設計師借助材料絲絨材質、大理石材質等質感元素進行空間裝飾,強調室內氛圍的輕奢優雅感。同時,利用冷暖色系的搭配使用增添室內環境的視覺豐富感與層次感。
戶型解析:

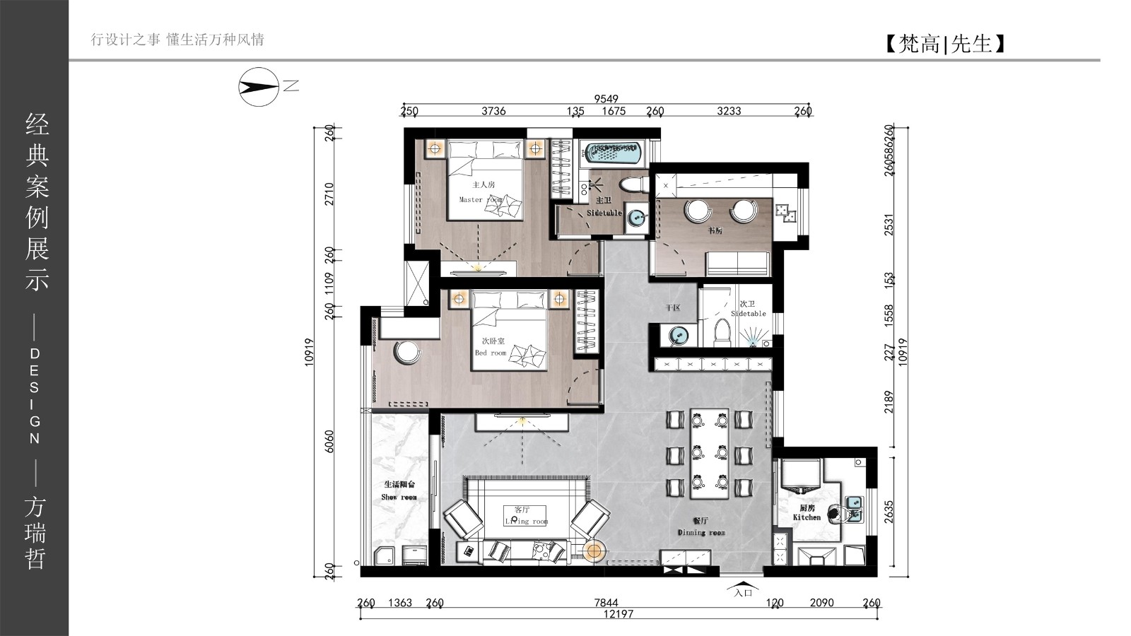
新城錦瑞城這套136㎡的三居室住宅戶型結構上相對比較規整,沒有復雜且難以規劃設計的空間,功能區也比較相近,因此設計師需要權衡好空間的動靜分區。而由于業主工作的性質,設計師單獨劃分出一個區域打造成書房,滿足業主在家辦公需求,同時借助靈活式設計滿足客人休憩使用需求。陽臺區域則借助大面積落地窗將室外陽光盡可能的引入室內,以提升室內采光。
客廳:



由于客廳寬度不夠,因此設計師選擇了長條形沙發,點綴以色彩清新跳躍的抱枕,從視覺上擴大空間寬敞度。
餐廳:


核桃色的木質櫥柜與白色墻面反差感較大,給人以較強視覺沖擊力。
臥室:


淡藍色墻面奠定靜謐柔和氛圍,灰色地毯則平衡了空間的輕柔感,為空間增添一抹沉穩氣息。
| 姓名* | |
| 樓盤* | |
| 電話* | |
知精準報價 避裝修深坑
選擇您喜歡的風格
現代輕奢
現代美式
北歐
新中式
歐式
其他
知精準報價 避裝修深坑
選擇房屋面積區間
您的戶型
兩居室
三居室
四居室
五居室
六居室
知精準報價 避裝修深坑
稍等片刻,您的報價正在生中......
知精準報價 避裝修深坑
|
每日僅限前10名用戶