小區:融創臨江府
戶型:98㎡;108㎡;119㎡;125㎡;136㎡

融創臨江府擁有武漢濱江土地上珍貴的生態資源——臨江公園、和平公園、武九鐵路公園(規劃中)將項目三面環抱,舒適宜居。同時項目周邊以武商眾圓廣場、紅坊里、吾行里等商業體組成的青山核心商圈,能夠滿足業主所有的生活起居和休閑娛樂的需求。
為了給融創臨江府的業主帶來更好的生活體驗,澳華裝飾的設計師全面解析建面98㎡-136㎡的戶型方案。從居住者出發,從場景入手,平衡視覺效果與居住功能,擴展生活秩序!
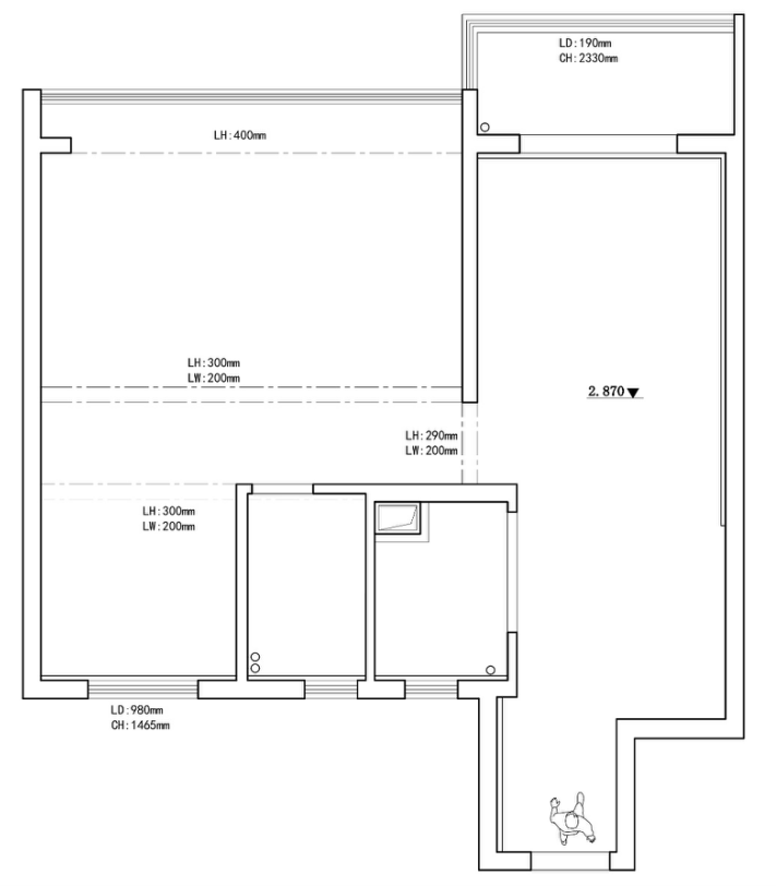
98㎡戶型解析

△原始結構圖
戶型優點
? 采光通風好。
? 戶型功能區域劃分清晰。
? 承重墻較少,利于更改區域。
戶型缺點
? 飄窗區域較大,空間容易造成浪費。
? 臥室面積較小,缺少儲物空間。
方案
通透的開放式公區+奢享套臥

思路解析
1 客廳與陽臺聯通,增大會客區域,提升大氣視覺,提高整體的流動性。
2 拆除飄窗,使主臥、書房空間增大。
3 一間次臥做衣帽間,并將主臥和衣帽間聯通,使室內光線明亮使用流動性更足。
4 衛生間及衣帽間利用z型墻體解決洗手盆放置問題。
效果圖展示


108㎡戶型解析

△原始結構圖
戶型優點
? 采光通風都很不錯。
? 戶型功能區域劃分清晰。
? 擁有觀景大陽臺。
戶型缺點
? 衛生間面積較小,活動受限。
方案
開闊通透空間,打開社交場景

思路解析
1 客廳與餐廳、陽臺一體設計,打通了陽臺和客廳的移門使空間更加的通透。
2 主臥打造L型衣帽間,增加收納;浴室納入主臥,打造功能齊全的舒適套房。
3 中餐封閉廚房,隔絕油煙;西廚區域操作空間很大,櫥柜都做了封閉式收納,處理食材空間及收納空間都十分足夠。
效果圖展示



119㎡戶型解析

△原始結構圖
戶型優點
? 南北通透采光性好,通風好。
? 客廳功能區域空間較大,有利于舒適性的布置,增加使用性和趣味空間。
? 局部拆改較少,不影響房間結構。
? 該戶型結構方正,功能區域劃分清晰。
戶型缺點
? 兩個臥室需要重新劃分,原結果柜子都比較少。
方案
舒適三房,滿足三代同堂家庭

思路解析
1 客廳與餐廳、陽臺一體設計,提升視覺空間,增加了互動場所。封閉式中餐廚房,隔絕油煙。
2 改動原始主臥衣柜嵌入式格局,增加兩房衣柜的同時,擴大使用空間。
3 每個房間都有一組衣柜滿足了收納需求。
4 浴室納入主臥,打造功能齊全的舒適套房。
效果圖展示



125㎡戶型解析

△原始結構圖
戶型優點
? 戶型方正,采光通風都很不錯。
? 戶型功能區域劃分清晰,動靜分離。
? 擁有開闊的觀景大陽臺。
戶型缺點
? 廚房狹長,活動受限。
? 衛生間面積較小。
方案
豪華套臥+舒適三房

思路解析
1 客廳與陽臺聯通,增大會客區域,提升大氣視覺。
2 客餐廚一體化設計,提升視覺空間的同時,考慮充足儲存空間,增設整排入墻式餐邊柜。
3 主衛納入主臥,利用柜子打造L型衣帽間,形成私密、便捷的舒適套臥。
4 次臥做干濕分離,增加使用率;保留三間臥室,滿足多人口家庭居住。
效果圖展示


136㎡戶型解析

△原始結構圖
戶型優點
? 戶型方正,采光通風都很不錯。
? 戶型功能區域劃分清晰,動靜分離。
? 擁有開闊的觀景大陽臺。
戶型缺點
? 廚房面積較小,活動受限。
方案
舒適三房+獨立開闊書房

思路解析
1 客廳與陽臺聯通,增大會客區域,提升大氣視覺。
2 客廳餐廳一體化設計,提升視覺空間的同時,打造多元生活場景,增加互動。
3 西廚區域操作空間很大,櫥柜都做了封閉式收納,處理食材空間及收納空間都十分足夠。
4 衛生間干濕分離,可以多人同時使用,防潮性好,并增加了收納空間。
5 一間次臥做超開闊書房,增加儲物,同時滿足兩人同時辦公需求。
效果圖展示


知精準報價 避裝修深坑
選擇您喜歡的風格
現代輕奢
現代美式
北歐
新中式
歐式
其他
知精準報價 避裝修深坑
選擇房屋面積區間
您的戶型
兩居室
三居室
四居室
五居室
六居室
知精準報價 避裝修深坑
稍等片刻,您的報價正在生中......
知精準報價 避裝修深坑
每日僅限前10名用戶