小區:融僑濱江城美域
戶型:4#樓A1戶型111㎡;5#樓A1戶型111㎡;3#樓C1戶型128㎡;C2戶型130㎡

武漢融僑濱江城項目周邊與徐東、奧山、眾圓、積玉橋商圈咫尺之遙,近攬34家幼兒園、12所小學、4所中學,以及1所211高校;多所二甲醫院和同濟、協和為健康保駕護航,周邊優質配套資源豐富,美好生活觸手可及。
為了給融僑濱江城美域的業主帶來更好的生活體驗,澳華裝飾的設計師全面解析建面111㎡-130㎡戶型的戶型方案。從居住者出發,從場景入手,平衡視覺效果與居住功能,擴展生活秩序!
4#樓A1戶型111㎡

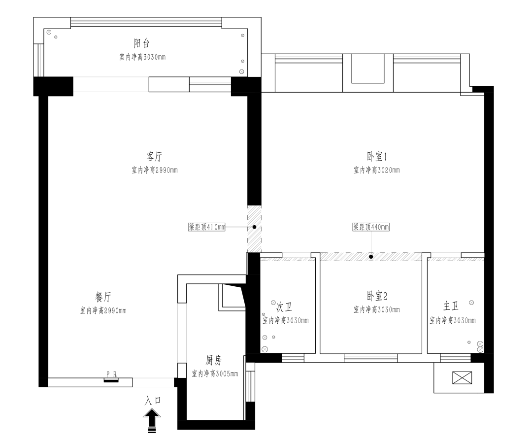
△原始結構圖
戶型優點
? 戶型方正,活動區域開闊。
? 擁有觀景大陽臺。
戶型缺點
? 部分采光有遮擋。
? 有部分浪費面積。
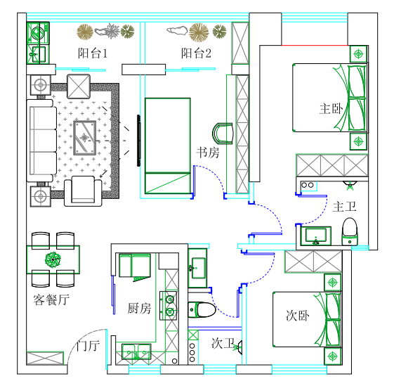
方案一
通透的開放式公區+舒適套臥

思路解析
1 聯通整個陽臺,形成一個開闊明亮的觀景區域。
2 一間次臥利用移門與陽臺聯通,增加采光,擴大了使用空間。
3 將主衛包進主臥,提高生活品質;利用入墻柜增加收納。
4 面積較小的次臥做多功能書房,打造了一個舒適靜謐的辦公區域。
5 次衛做干濕分離,方便多人同時使用。
效果圖展示


方案二
觀景雙陽臺+舒適套臥

思路解析
1 封閉式中餐廚房,利用可開可合的玻璃移門,隔絕油煙不隔絕采光。
2 客廳的陽臺與臥室的陽臺分隔開來,利用移門與陽臺聯通,增加采光,擴大了使用空間。
3 將主衛包進主臥,提高生活品質;利用入墻柜增加收納。
4 一間次臥做多功能書房,打造了一個舒適靜謐的辦公區域。
5 次衛做干濕分離,方便多人同時使用。
效果圖展示


5#樓A1戶型111㎡

△原始結構圖
戶型優點
? 采光通風都很不錯。
? 戶型功能區域劃分清晰。
? 擁有觀景大陽臺。
戶型缺點
? 一間臥室面積較小。
方案一
開闊空間,打開社交場景

思路解析
1 餐廳、客廳、陽臺采用一體化設計,增大視覺空間,增加了互動性。
2 次衛采用干濕分離,提升衛生間的體驗感。
3 一間面積較小的次臥納入主臥,做步入式衣帽間,形成一個豪華套臥。
4 次臥連接陽臺,在陽臺做書桌和吊柜,打造學習辦公區域。
效果圖展示



方案二
實用三房,滿足多人口家庭

思路解析
1 餐廳、客廳、陽臺采用一體化設計,增大視覺空間,增加了互動性。
2 次衛采用干濕分離,提升衛生間的體驗感。
3 主臥靠墻做一整排通頂柜,增加收納;主衛包進主臥,形成便捷的套間。
4 次臥連接陽臺,在陽臺做書桌和吊柜,打造學習辦公區域。
5 保留三房,滿足多人口家庭居住需求。
效果圖展示


3#樓C1戶型128㎡

△原始結構圖
戶型優點
? 每個空間通風采光較好。
? 客廳功能區域空間較大,有利于舒適性的布置,增加使用性和趣味空間。
戶型缺點
? 布局不合理。
方案
打造社交化客廳+舒適套臥

思路解析
1 客廳與餐廳、陽臺一體設計,提升視覺空間,增加了互動場所。封閉式中餐廚房,隔絕油煙。
2 主臥打造L型衣櫥構建衣帽間,增加收納的同時還劃分了功能區。主衛納入主臥,打造功能齊全的舒適套房。
3 一間次臥打造多功能書房,增設獨立的學習、辦公區域。
效果圖展示


C2戶型130㎡

△原始結構圖
戶型優點
? 戶型方正,采光通風都很不錯。
? 戶型功能區域劃分清晰,動靜分離。
? 擁有開闊的觀景大陽臺。
戶型缺點
? 過道狹長,有部分空間浪費。
? 衛生間面積較小。
方案一
開闊互動公區+舒適三房

思路解析
1 客廳、餐廳與陽臺聯通,增大會客區域,提升大氣視覺。
2 客廳整墻電視柜制造充足儲存空間,視覺整潔大氣。
3 主衛納入主臥,利用入墻柜補充收納。
4 次臥連接陽臺,在陽臺做書桌和吊柜,打造學習辦公區域。
效果圖展示


方案二
舒適三房,滿足多人口家庭

思路解析
1 客廳、餐廳與陽臺聯通,增大會客區域,提升大氣視覺。
2 客廳整墻電視柜制造充足儲存空間,視覺整潔大氣。
3 主臥面積向外借,兩個衛生間合并為一間,增加主臥的使用面積,也解決單個衛生間較小的問題。
4 次臥連接陽臺,在陽臺做書桌和吊柜,打造學習辦公區域。
效果圖展示


知精準報價 避裝修深坑
選擇您喜歡的風格
現代輕奢
現代美式
北歐
新中式
歐式
其他
知精準報價 避裝修深坑
選擇房屋面積區間
您的戶型
兩居室
三居室
四居室
五居室
六居室
知精準報價 避裝修深坑
稍等片刻,您的報價正在生中......
知精準報價 避裝修深坑
每日僅限前10名用戶