這個家,足以容納三代共聚一堂
開闊的布局、通透的視野、溫馨的氛圍、精致的細節……這些元素共同構筑了這個家的獨特魅力。
設計之初,我們細致考量居者的需求、喜好與生活方式,精心優化重組空間布局,力求實現多功能一體化。同時,巧妙打造“隱形”收納空間,確??臻g通透開闊,為居者打造舒適宜人的生活環境。

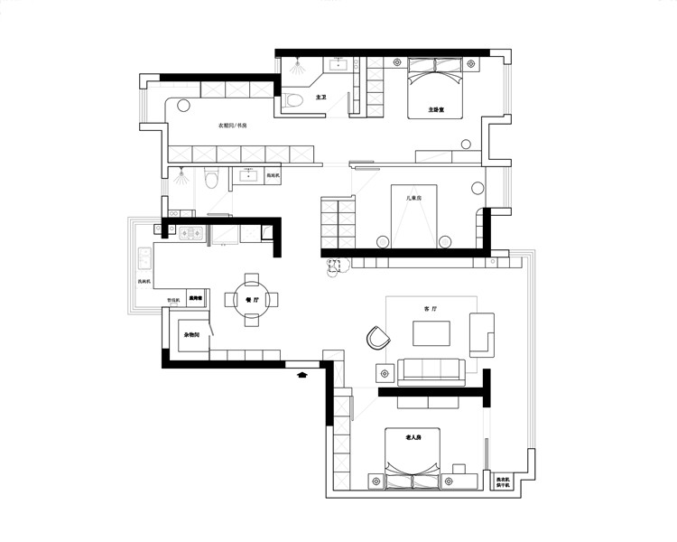
戶型解析
1、入戶無獨立玄關,收納稍顯不足
2、廚房空間小,做不了中西廚分區
3、走道較為狹長,空間有些浪費

優化改造
1、入戶門右側設半高玄關柜,長輩房外定制通頂鞋柜,增強入戶收納功能,優化空間布局。
2、整合餐廳、陽臺與廚房,新布局容納中西廚、儲物空間,并與餐廳融合,實現多功能一體化。
3、公衛內移創造拖地機空間,部分走道融入主臥套間,并借次臥走道定制儲物柜,優化收納。

這個家進門的位置是沒有獨立玄關的,進門就是客餐廳。

這里將右側墻體延伸,將長輩房外側定制的通頂鞋柜完全嵌入,實現“完美隱形”。
半高鞋柜與擺件、綠植巧妙融合,共同打造出充滿藝術氣息的精致端景。



柔和的日光透過玻璃窗,輕撫寬敞的客廳,溫暖的光輝彌漫每一個角落,為居室披上寧靜溫暖的華裳。
隨著日光鋪灑,視野無限延伸,通透的公區宛如居者內心的寬廣天地。這里,靜謐與喧囂并存,既能容納個人的沉思,也能承載全家的歡聚。


天然石材作為地臺,與懸浮電視背景及燈線精妙融合,于靜謐中流露藝術韻味,巧妙平衡休閑與雅致,構筑出別具一格的生活美學空間。

側邊巖板黑白交織,綠意盎然佇立其前,虛實相生間繪就一幅詩意盎然的水墨圖景,賦予平凡日常詩意之美。

陽臺一角,黑玻書柜巧妙嵌入,與電視背景和諧相融。隨手翻閱一本心儀的書籍,悠然落座于柔軟的懶人沙發,盡享寧靜的閱讀時光。

經線條與色塊精心勾勒的沙發背景墻,彰顯出別具一格的簡約與高雅,它完美融入整體家居環境,營造出和諧統一的視覺美感。

夢幻的紗簾將洗衣晾曬區隱藏,確保各功能區間互不干擾,使家居生活更靜謐有序。


改造后的餐廚,不僅空間更大,功能也更齊全。


定制高柜嵌入冰箱,形成一體化設計,既整潔美觀又實用。餐邊柜兼顧西廚功能,頂部增設酒柜,為日常生活增添更多趣味與便利。

餐桌旁并非僅有一面墻,實際上這里藏著隱形門,門后則是一個雜物間,家里不常用的物品都可以妥善收納于此。



無需復雜設計,深色系的半墻護墻板,就將臥室的氛圍渲染得愈發寧靜深邃,讓人不自覺地放松身心,回歸內心的平靜。

次臥經過改造,蛻變為時尚衣帽間,與主臥、主衛融合,共同構筑起一個奢華大套間,為品質生活增添無盡魅力與舒適。

利用窗臺位置定制轉角辦公區,墻體兩側定制滿墻衣柜,實現工作與收納的完美融合。

衛浴干濕分離,采用墻地一體式鋪貼設計,盡顯高級質感,同時帶來清透舒適的洗浴體驗。


毗鄰陽臺的房間,專為長輩休憩打造,淡雅色調營造出寧靜優雅的氛圍,每一寸空間都流淌著對長輩的深情關懷與深深尊重。

兒童房的設計,既注重實用性也兼顧趣味性。

床頭背景墻選用清新的淡藍色,營造出靜謐而雅致的氛圍,同時也為孩子的世界增添了童趣與夢幻的色彩。

窗前設有懸浮書桌,專為孩子閱讀學習而設計。書桌旁是滿墻書柜,轉角處采用弧形設計,有效降低磕碰風險,盡顯父母對孩子細致入微的關愛。
| 姓名* | |
| 樓盤* | |
| 電話* | |
知精準報價 避裝修深坑
選擇您喜歡的風格
現代輕奢
現代美式
北歐
新中式
歐式
其他
知精準報價 避裝修深坑
選擇房屋面積區間
您的戶型
兩居室
三居室
四居室
五居室
六居室
知精準報價 避裝修深坑
稍等片刻,您的報價正在生中......
知精準報價 避裝修深坑
|
每日僅限前10名用戶