昏暗的光線、老舊的設施、雜亂的物品堆放、狹小的衛生間……這些都是老房子亟待解決的問題。因此,屋主毅然決定進行全面的翻新改造,以期用全新的面貌來迎接更加高品質的生活。
簡潔、時尚、耐看、通透,是屋主對新居的首要期待。經過深入交流,我們迅速在設計理念上達成一致,決定以隨性自然的黑白灰作為主色調,對空間布局進行精心重組,旨在擴大生活區域,讓自由無拘的氣息充盈于整個居家空間之中。


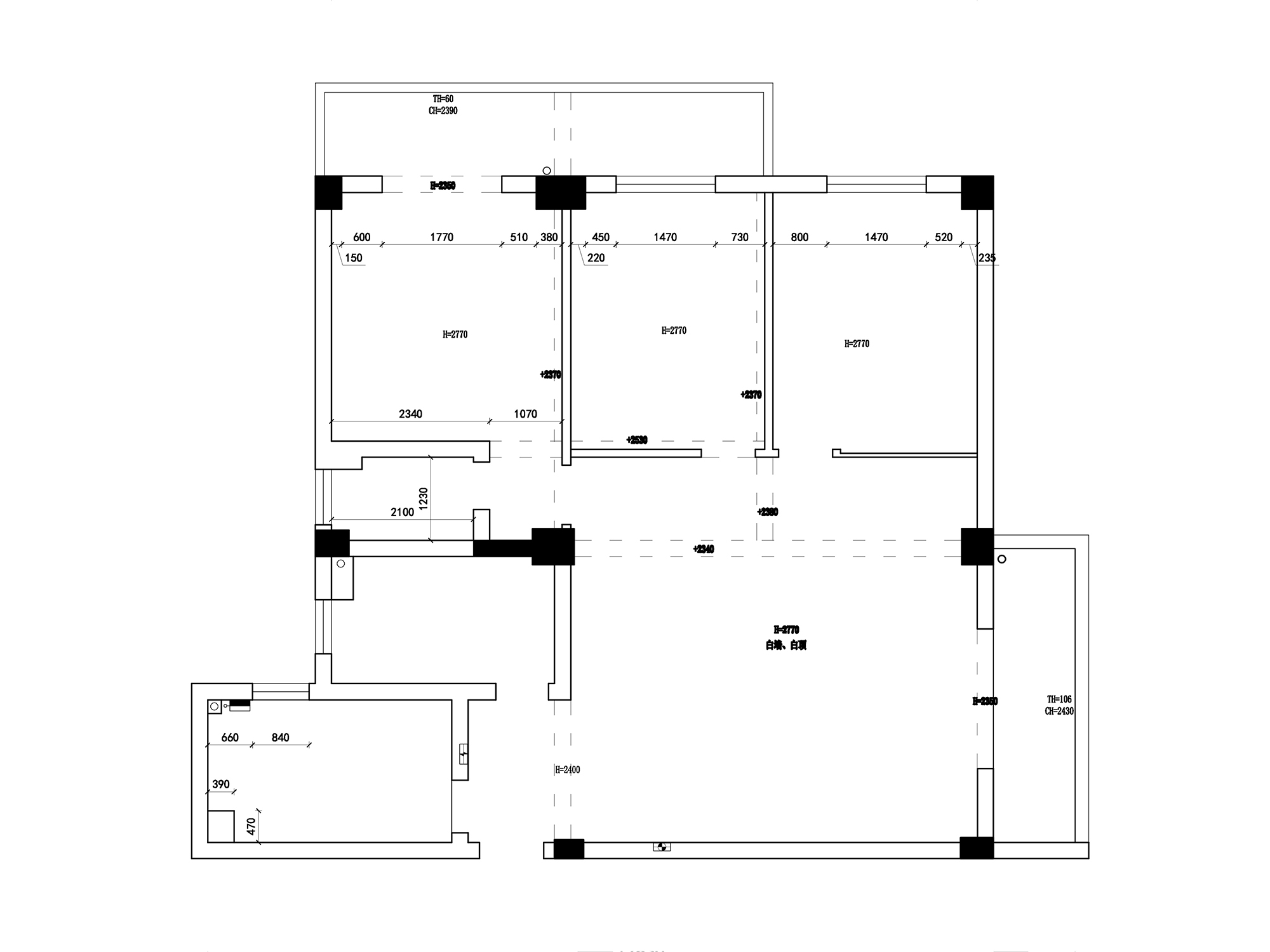
①入戶門直面次衛門,隱私性不佳
②主衛局促,陽臺、走道空間浪費多
③各個空間收納不足,利用率低

優化改造
①優化次衛布局,借用廚房空間嵌入洗漱區,并調整門向,規避大門與次衛門直對。
②擴大主衛,借主臥空間設洗手臺;分割臥室旁走道與陽臺,分別融入室內空間。
③承重墻不動,兩側定制衣柜餐邊柜,增強收納并巧妙遮擋承重柱,美化空間。



在黑白灰的主色調下,客廳彌漫著一股純粹而高雅的氣息,這種色調憑借其強大的包容性和可塑性,勾勒出了一幅和諧而宜居的生活畫卷。
線條,作為這幅畫卷的靈魂筆觸,以精準而富有韻律的比例分割,不僅強化了畫面的結構美,更賦予其震撼人心的視覺沖擊力,使每一處細節都躍然紙上,立體而鮮活。

十字線條勾勒懸浮電視背景,強化輪廓,木色格柵點綴其間,深化空間縱深感,整體設計層次分明,盡顯雅致與立體美學。

將目光聚焦于沙發背景,其設計以簡練線條搭配溫馨的暖光燈帶,僅僅幾筆勾勒,便展現出非凡的藝術韻味與格調。


過多的白色或許會顯得單調,但擺放一款線條圓潤的黑色沙發,不僅引領視覺下沉,還融入了靜謐與安寧的氛圍。一旁蓬勃生長的植物,更為空間增添了一抹清新與生機。

客廳與陽臺融合后,頂面梁體曾略顯突兀,但通過巧妙的斜面設計,現已與頂面流暢銜接。
筆直的線性燈則如同精致的紐帶,將陽臺、客廳與餐廳三個空間無縫串聯,營造出連貫而和諧的視覺體驗。



卓越的收納能力,是構建舒適生活的基礎。
入戶門旁的兩組玄關柜,為居者出門入戶提供了極大的便利。它們不僅承載著收納鞋履、衣物、包包等日常用品的功能,還能兼任餐邊柜的角色,使空間利用更高效。

餐桌的另一側,矗立著真正的餐邊柜。白色柜體融合黑玻酒柜,黑白之間,有藏有露,盡顯簡約而不失格調的生活美學,實用與美觀并存。

餐邊柜背景選用大理石,與端景臺和諧統一,其天然紋理交織冷峻質感,為用餐區域平添一份高貴與典雅,讓每次用餐都成為視覺與味覺的雙重享受。


主臥空間,一襲純白優雅鋪陳,宛如初雪覆蓋,靜謐且圣潔。整體設計沒有多余雜色侵擾,僅余純凈與安詳,悄然拉開每個夜晚甜蜜夢境的序幕。

陽臺無縫融入室內,巨幅落地窗化作自然畫框,將外界風光溫柔引入,讓自然光線肆意流淌,瞬間點亮室內,營造出一種既開放通透又兼顧私密性的生活享受。


擴容后的兒童房,不僅寬敞舒適,完美契合休憩之需,更巧妙融入學習區域,激發孩子無限探索欲。同時,增設了豐富的收納空間,讓每一樣物品都能井然有序。

由陽臺改造的學習區,既蘊含趣味性又兼備濃厚的書卷氣息。學習之余,偶爾眺望遠景,既護眼又讓身心得到放松。

一體式書柜與書桌規劃出簡致的收納體系,功能與美感維持著平衡。這里是學習小天地,也是展示個人手辦收藏的趣味空間,學習與興趣愛好和諧共存。
知精準報價 避裝修深坑
選擇您喜歡的風格
現代輕奢
現代美式
北歐
新中式
歐式
其他
知精準報價 避裝修深坑
選擇房屋面積區間
您的戶型
兩居室
三居室
四居室
五居室
六居室
知精準報價 避裝修深坑
稍等片刻,您的報價正在生中......
知精準報價 避裝修深坑
每日僅限前10名用戶