案例簡介:本裝修案例為現代意式極簡風格,設計以業主的品味、審美以及生活習慣為考慮依據,空間整體以素色系色彩為主基調色,把一些復雜的元素都去除,保留必要元素加以少量裝飾,打破繁瑣而又不實用的設計,幫助業主享受生活本質。各類線條的穿插使用,則為空間的結構感、層次感增添了一抹時尚氛圍。
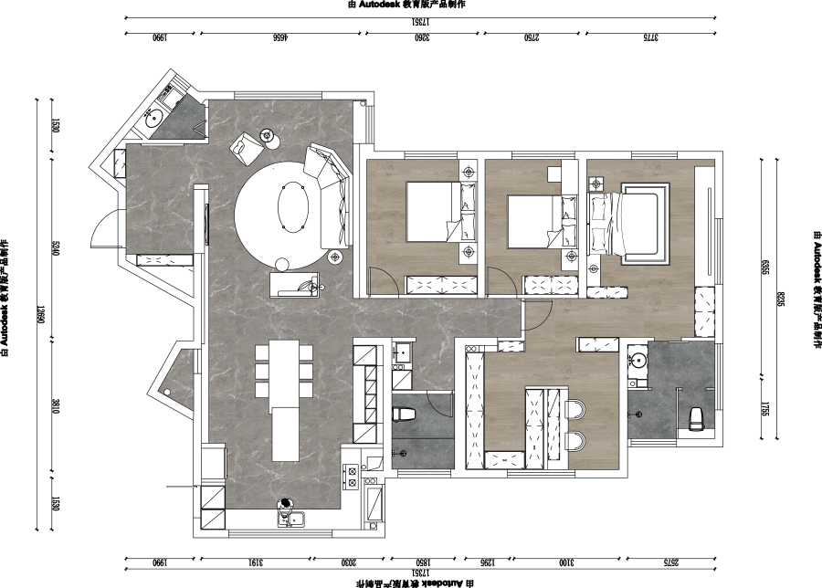
戶型解析:


西斯萊公館的這套房屋面積約為200㎡,空間戶型上存在著一個斜坡角度,該斜坡導致整個家居空間中出現一個三角形角落,如何對這塊區域進行合理的規劃設計,在滿足使用需求的前提下不會顯得違和是本次設計難點。而設計師將該快區域直接融入臥室區域,然后借助斜坡打造一個藝術感陽臺,提升臥室區域通風透氣效果的同時,有效化解了空間犄角帶來的局限性。
客廳:


客廳區域借助線條的搭配與組合來形成裝飾,背景墻處的幾何切割、曲線型的沙發等,為整個空間整潔而又不失藝術感。
餐廳:

為保障空間整體的銜接感,就餐區域選用了與會客區域一致的配色與桌椅,通過座椅的體量與擺放進行空間區分。
臥室:


相比于其他功能空間,臥室區域使用了較多的木質材料,通過木材本身的溫潤質感提升空間溫馨舒適氛圍。
衛生間:

大理石材質清冷而又高級,搭配上大面積簡約方形鏡子,大氣耐看而又實用。
案例簡介:本案例的業主作為一個年輕的創業者,平常工作帶給他太多壓力,因此他希望能夠擁有一個舒適的休憩空間,讓自己能夠得到真真正正的放松。因此設計師在進行空間設計時,選用了一些相對比較簡約而又不易過時的元素,同時借用色彩的搭配來強調整個家居空間的溫馨感。為了能夠讓居住者能夠更好的得到心靈休憩,設計師將空間中的陽臺區域放大打造成一個休閑區,可供居住者觀賞室外美景、放松身心。
戶型解析:


金地自在城這套136㎡的四居室住宅雖然建筑面積不小,但是由于空間中獨立的空間比較多,因此各個功能區域的占地面積其實并不大,因此設計師在對空間進行規劃設計的時候就需要優先考慮從視覺上起到擴大空間的作用,避免造成視覺壓迫感,進而影響起居質量。而雙陽臺設計,則在保障南北通透的情況下有效提升了室內的視覺寬敞度。
客廳:


背景墻與沙發顏色上的呼應保障了整個空間的銜接感,藍色絲絨窗簾、幾何造型燈飾,則增添了空間的摩登氣息。
餐廳:

干凈的灰色墻面搭配上黑色餐桌,簡單而又不失個性感,同時為空間增添了沉穩氣息。
臥室:

對稱式背景墻設計搭配上婚紗照,溫馨而又不失高級感。灰色創兩則與床頭柜色彩相呼應,有效提升了整個室內空間的主題感。
案例簡介:本案例的主人公是一位超級“奶爸”,平時忙于工作的他希望家居空間中能夠多一些童真感與親子互動空間,以滿足孩子健康成長需求。而由于工作需求,業主還需要經常在家辦公,因此想要一塊安靜且獨立的區域。設計師在充分了解業主需求的前提下選擇了新中式風作為空間主裝修風格,搭配以港式風,強調空間個性感。同時,借助各類明亮的色彩打造兒童房與書房,以滿足親子互動及在家辦公需求。
戶型解析:

復地東湖國際7期這套三居室住宅的面積約為133㎡,原有的戶型結構已經能夠滿足業主基本使用需求,因此設計師沒有在空間規劃上進行再改動。由于房屋走廊過道相對比較狹小,因此設計師借用色彩的搭配使用從視覺上起到擴大空間的作用。兒童房外部區域則與客廳陽臺打通,改造成為一個大面積休憩空間,以滿足業主及家人休憩、觀賞需求。
客廳:



嵌入式的電視背景墻點綴上風格青花瓷花瓶,讓空間中流淌著優雅古韻。
餐廳:



大面積深褐色的木質地板搭配上清新掛畫,讓中式風所特有的典雅韻味得到很好的表達。
廚房:

為了便于打掃,廚房區域選用了各類素色而又耐臟的瓷磚,同時搭配上金屬質感收納,簡約而又不失時尚感。
書房:

簡約白色的主基調色搭配上亮色地貼,營造明快清新氛圍,滿足業主辦公需求的同時還可進行親子互動。
臥室:


簡單的線條搭配耐看而又高級,窗簾與床具之間的顏色呼應則讓空間更具和諧美。
案例介紹:
在所有的裝修風格中,現代輕奢風最符合我跟愛人的審美,也因此在新房的裝修設計過程中我們一再跟設計師強調了我們的需求跟審美。在戶型上,房屋面積不小,設計難度較大,我們希望的是能夠讓空間合理利用的同時呈現輕奢的小資格調感。而在色彩的搭配選擇上,我們偏向于選擇素雅潔凈的配色,希望能夠用最簡約的色彩打造出典雅清新浪漫而又不落俗套的婚房。
戶型解析:

這是綠地國際理想城中一套260㎡的大戶型復式房,空間面積較大,如果沒有合理的進行規劃設計很容易出現空洞感。 不過該房屋戶型結構相對比較四平八穩,因此在進行規劃設計的時候只需充分考慮需求即可,無需過分進行戶型的調整。為提升空間的私密度,在入戶處利用半透明玻璃與綠植作玄關,即可提升空間私密感,又能夠讓整個家居環境看起來更加清新典雅。
玄關:

玄關處使用了經典的原木色與白色的搭配,從入門處即開始營造一種小清新的自然氛圍感。半透明的玻璃隔斷既可以保障室內的私密度,又不會顯得過于生硬突兀,很好的提升了空間的通透感。
客廳:

整個客廳區域醫簡約的灰白配色為主,奠定素雅潔凈的空間氛圍感。現代感十足的華麗吊燈,則為整個家居空間注入了輕奢貴氣美。玻璃及金屬材質的燈飾與柔軟的絲絨材質形成對比,讓空間更具層次感與結構美。
餐廳:

餐廳區域使用了與客廳空間一致的配色,以保障不同功能空間具有一定的銜接感。符合人體功能學的曲線靠背桌椅讓區域多了一抹現代美學感。
廚房:

大面積的灰色點綴上黑白相間的櫥柜,簡約而又不失高級設計感。大面積的透明窗戶,巧妙的將室外景色“借”入廚房空間,讓該區域更具時尚氣息。
案例介紹
業主對家的定義:家里有兩個孩子,一個上四年級,一個上初一,210㎡四房戶型基本夠我們使用,主臥的原始面積不夠大,雖然自帶衛浴間,但居住起來有些不夠舒展,希望主臥能有一個更衣室,令空間看上去更開闊,另外,客廳有一些零碎的角落不知道如何調整,希望設計師利用這些角落,盡可能令房間變得更舒展。風格上,我們希望呈現出的是有品質,能凸顯生活品味的設計方案。
戶型解析

這是一套位于華潤悅府的210m?的四房戶型,雖設有玄關,但進門能看到客廳,空間私密性不是很好,客廳空間零碎部分較多,功能銜接上不是很舒服,為了提高客廳利用率,玄關處增加了隔斷,并將隔斷設計為電視墻,提升了客廳的銜接感,零碎角落面積做了分割,以保證客廳空間的完整與舒適。業主提到的衣帽間也做出了獨立設計,并與主臥進行銜接,令主臥生活更加舒適開闊。
玄關

入戶右邊增加了定制玄關柜,中上部分設計為隱性柜面,下部置空并增設了燈帶,便于收納展示裝飾物品,中部增加了墻體隔斷,細節處呈現出輕奢質感。
客廳

客廳空間以白色和灰色為主,無主燈的空間設計令視覺更為寬敞明亮,為提升空間收納,左側背景墻中設計了收納柜,其中還增置了燈帶,搭配灰色沙發,整個空間更為優雅。
臥室

米色與白色護墻板相互碰撞,在燈光的映射下營造出舒適溫馨的視覺觀感,褐色衣柜立面干凈,并作為半隔斷存在,增添了臥室空間的層次感。
知精準報價 避裝修深坑
選擇您喜歡的風格
現代輕奢
現代美式
北歐
新中式
歐式
其他
知精準報價 避裝修深坑
選擇房屋面積區間
您的戶型
兩居室
三居室
四居室
五居室
六居室
知精準報價 避裝修深坑
稍等片刻,您的報價正在生中......
知精準報價 避裝修深坑
每日僅限前10名用戶