案例簡介:傳統中式風多給人以沉穩、大氣渾厚感,因此多受老年群體的偏愛,而本案例的業主作為退休人士就對中國傳統文化情有獨鐘,因此設計師在與業主交流后敲定以中式風裝飾空間。大面積的核桃木搭配上簡約優雅的潔凈白,在平衡空間視覺效果的同時給人以清新的悠然古韻美感。
戶型解析:


萬科四季花城這套140㎡的三居室住宅整體結構近似正方形,因此設計師在進行空間規劃設計的時候就將客廳作為核心店,其他功能區域則圍繞客廳展開設計,以確保整體空間的和諧感。由于房屋面積不算寬敞,因此設計師在進行裝飾設計的時候舍棄了大量中式造型設計,而是借助色彩的搭配與傳統韻味畫來展示空間的清新古韻感。
客廳:


簡約木質仿古家具與現代時尚感濃烈的大理石背景墻之間的碰撞,呈現了宜古宜今的獨特時尚美。
次臥:


大面積的白色點綴山素雅的山水畫掛畫,強調清幽雅致的藝術氛圍。
衛生間:

透明玻璃通透性強,既可以起到干濕分離作用又不會顯得過于生硬,黑色鑲邊處理則為空間增添結構感。
案例簡介:其實對于絕大多數人而言,家不需要花里胡哨的設計,只需要能夠給人一種踏實的歸屬感就足夠了,也因此本案例的設計師在與業主進行溝通之后,舍棄了各種華麗的設計,借助最為常見的灰白配色營造一種溫馨舒適感,同時借助簡單的墻面設計,在不會顯得過于刻意的前提下裝飾點綴空間,強調一種簡約而又不簡單的高級潔凈美。
戶型解析:

新華尚水灣這套137㎡的三居室住宅戶型規整且采光好,原有功能分區上的劣勢在于走廊過于狹長,容易給人以閉塞感。因此設計師充分利用戶型優勢,借助雙陽臺設計引進自然光,而走廊處則借用吊燈、墻壁等設計提升豐富感。為便利主人日常起居生活,設計師在主臥區域改造出貨一個迷你衛浴空間,以提升生活的私密感。
客廳:

灰色墻面搭配上以色塊組合而成的藝術掛畫,簡約而又不失現代時尚氛圍。大面積的灰色的配色淺褐色,給人以豐富的視覺效果。
餐廳:


就餐區域配色清新又柔和,木色與白色之間的組合營造空間溫馨靜謐感,墻面圓形藝術掛件簡約清新而又不失藝術感。
書房:

褐色與白色構成的書柜藝術感十足,搭配上簡單的圓形擺件,展示主人獨特審美與品位。
廚房:

大理石臺面賦予空間沉穩大氣感,半開放式設計讓廚房空間更顯寬敞大氣。
案例簡介:在家裝設計中有一種設計手法叫做留白,這指的是借助大面積的空白營造空間的韻味感,給人以無限遐想,這是簡約風中最為常見的設計手法,能夠讓人在家居空間中更好的放空自己。而本案例的業主不喜歡設計繁瑣的家居空間,希望通過最為簡潔的元素打造出干凈舒適的休憩空間,因此最終設計師為業主敲定了帶有留白設計的簡約風軟裝,通過合理的點綴搭配大面積留白來營造一種獨特的優雅高級感。
戶型解析:


同馨花園這套140㎡的三居室雖然原有的戶型結構較為平整四方,且已經完成了基本的分區規劃,但是由于不能滿足業主日常起居使用需求,因此設計師根據業主個人使用需求將內部次臥區域直接打通,其中一部分向主臥延伸打造成衣帽間,而另外一部分則用于擴大另外一個次臥的面積,以提升生活品質感。廚房區域的墻面則直接打通,將廚房改造成為一個開放式設計,再借助軟隔斷融入就餐區域,提升空間的利用率。
客廳:

摒棄各種花里胡哨的設計,借助大理石材質本身的質感提升空間品味。嵌入式背景墻設計既可以節省一定室內空間,又有效保障室內時尚感。
書房:

書房面積較小,因此僅擺放了簡單的桌椅,再搭配上懸掛式收納柜,滿足日常辦公、閱讀需求。
臥室


臥室背景墻借用線條抒發空間簡約潔凈氛圍,舒適柔軟的床具搭配上簡潔大方的設計,讓人在素雅潔凈中更好享受生活的寧靜。
衛生間:

衛生間借用透明玻璃門進行干濕分離,有效提升衛浴環境品質感。
案例簡介:本案例的業主追求一種返璞歸真的清新自然式生活,在喧囂都市打拼久了的他希望能夠擁有一個簡約清新的住宅,他希望設計師能夠放棄各類繁瑣且花里胡哨的裝飾設計,利用最為簡潔的元素與色彩為自己打造出一座夢想的心靈休憩所。在與業主進行深入交流后,設計師為業主選擇了簡美式風作為裝修主基調,通過清新的色彩來營造古樸潔凈的自然美。
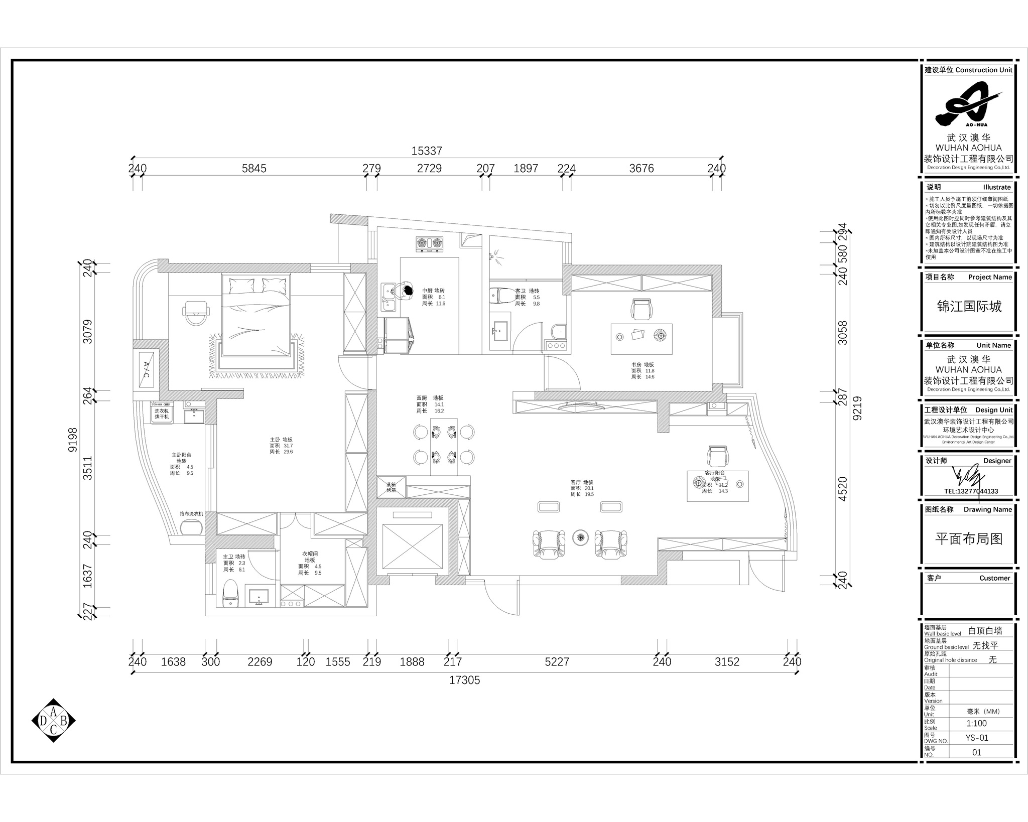
戶型解析:


錦江國際這套三居室的140㎡的住宅原有的戶型結構并不算平整,存在一定的斜角空間,因此需要設計師將空間進行更加合理的利用,避免斜角帶來的視覺壓迫感。而由于業主喜愛閱讀及高品質的生活,因此設計師將次臥改造成一個書房,同時借助收縮式的家具設計,滿足客人來訪時的居住使用需求。
客廳:


大面積的白色搭配上細節處的線條處理,簡約耐看而又不失優雅高級格調。
書房:

大面積的淡藍色點綴上藝術照片墻,簡約而又不失去生活氣息,白色辦公桌則與客廳色彩形成呼應強調。
臥室:


休憩空間使用與房屋整體裝修一致的白色,強調功能空間之間的銜接感,再搭配以少量的藕粉色,營造溫馨靜謐感。
案例簡介:本案例主人公作為高階級白領,向往美好而又精致的城市生活,對于房屋的裝修也有著更有品味的追求。設計師結合業主的品味、工作以及生活習慣,選擇了相對比較儒雅舒適的簡中式風進行軟裝,通過引入各類復古清新的古韻元素強調空間的清新自然之美,讓業主能夠在結束一天忙碌生活之后,盡情享受高雅舒適的休憩生活。
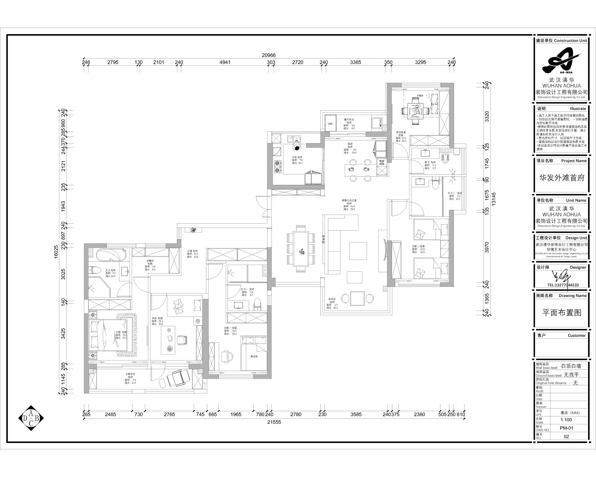
戶型解析:


華發外灘首府這套五居室的住宅面積約為241㎡,整體戶型結構相對比較少見,簡單的一面墻體將兩個相對比較獨立的大空間連接在一起,而本次的設計難點就在于如何將這兩個相對獨立的大空間進行合理的規劃設計,避免空間出現違法感與割裂感。設計師則直接將兩個獨立的大空間進行簡單的動靜分隔,將活動區域、會客區域與休憩空間借助戶型的天然隔斷進行分隔,有效提升室內私密性與格調感。
客廳:


客廳沙發背景墻采用靚麗的白色,提升空間亮度的同時奠定輕盈舒適氛圍感。
臥室:

臥室區域以清新的核桃木色作為主基調色,加以大理石材質背景墻,讓空間更顯靜謐高級格調。
衛生間:

衛生間區域被灰色暗紋瓷磚所包圍,搭配以玻璃透明隔斷們,給人精致優雅格調感。
知精準報價 避裝修深坑
選擇您喜歡的風格
現代輕奢
現代美式
北歐
新中式
歐式
其他
知精準報價 避裝修深坑
選擇房屋面積區間
您的戶型
兩居室
三居室
四居室
五居室
六居室
知精準報價 避裝修深坑
稍等片刻,您的報價正在生中......
知精準報價 避裝修深坑
每日僅限前10名用戶