
案例簡介:本案例的業主是高級白領,對家有著自己獨特的了解,因此在與設計師交流的時候表達了自己希望擁有一個個性化的家居空間。同時,由于業主夫婦目前帶有一個剛上幼兒園的小朋友,因此在設計的時候希望能夠將童真也融入其中,為孩子打造一個趣味十足的生活空間。基于此,設計師選擇了個性感相對比較濃厚的美式裝修風格,再搭配以各種清新明麗的色彩,來營造一種自由灑脫而又不失童真的個性家居。
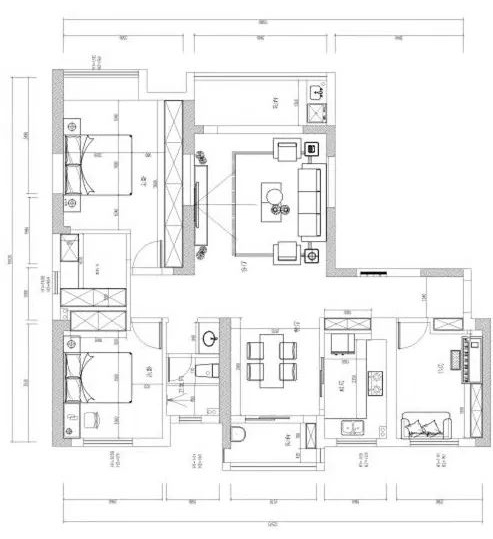
戶型解析:


復地東湖國際這套170㎡的四居室住宅戶型相對比較平整方正,而由于入戶門在房屋偏角處,因此設計師在進行規劃設計時就利用入戶門軸向作一個劃分,將作伴區域作為業主的辦公、休憩區域、中間則設置為會客區域,右邊則打造為兒童房,有效提升了各個功能區域的劃分。
玄關:


一個簡潔的白色儲物柜搭配上褐色矮腳小凳就構成了玄關處的軟裝,簡約耐看而又不失實用性。
客廳:



淺藍色墻面搭配上簡約的風景畫,一種悠然自得的清新感流淌在空間。而柔軟的深灰色絲絨沙發,則為空間增添了品質格調。
餐廳:



淡藍色的墻面為就餐區域增添了一抹清新明麗的氛圍,而造型優雅的餐座椅則讓整個就餐區域多了一抹精致的浪漫感。
廚房:



大面積的淺色瓷磚確保了廚房油煙能夠得到更好的清理,而懸掛式櫥柜的存在則有效提升了空間利用率。
臥室:



臥室區域使用了大面積的淺色作為主基調色,營造溫馨柔和氛圍,而撞色的床具則讓整個臥室更具個性感。
衛生間:


半圓弧的玻璃滑門既可以起到干濕分離的作用,又為衛生間增添了一抹藝術氛圍。
案例簡介:基于本案例業主的背景、喜好還有個人追求,設計師選用了中式風格打造空間,從典雅的山水畫意境入手,搭配以傳統中式住宅設計手法,雜糅現代時尚元素,將傳統古風韻味與現代都市生活相融合,呈現出帶有現代時尚氣息的特色復古住宅,讓業主能夠在喧囂的城市中,獲得一個心靈棲息之所。
案例解析:


這套位于綠地金融國際城的四居室房屋面積雖然在220㎡左右,但是由于戶型并不方正平整,且存在著零碎角落,因此存在著較大的設計難題。為了讓所有的空間都得到合理的充分利用,化解戶型缺陷,設計師對空間進行了再規劃,將入戶處左邊的狹長條區域打造成廚房,利用戶型的轉折減少油煙進入生活空間的概率。同時將該區域進行一定的再切割,規劃出一塊置物空間,有效提升了家居空間的利用率。
客廳:



對稱式的設計搭配上帶有傳統結構制造的木質家具,一種清新典雅的復古韻味在空間中悠然流淌。
餐廳



餐廳區域借用淡雅的水墨畫起到視覺延伸的作用,搭配以各類帶有木材紋理的木質家具,強調一種空靈的自然典雅之美。
廚房:


長條形的廚房空間面積相對比較狹小,因此設計上使用了大量的收納元素,減少各類瑣碎物件出現在明面上的概率。
臥室:



古色古香的臥室門、做舊復古的吊燈、鑲邊處理的吊燈讓臥室洋溢著一股古韻氣息。而淡藍色的床具則讓空間多一抹輕快明麗的氣息。
衛生間:

暗紋的灰色瓷磚墻面為衛生間空間營造了一種清冷潔凈的氛圍,而帶有傳統總是元素的鏡子則讓衛生間區域與整個家居空間更加契合。
案例解析:本案例的主人公剛剛退休,相比于各種時尚元素而言,她更加偏愛傳統而又韻味感十足的中式元素。因此設計師在裝修風格的挑選上選擇了傳統的中式風,同時融入一些現代化元素,這樣能夠在強調室內空間復古韻味的同時,還能夠較好的滿足現代人的起居使用需求。而空間劃分上,設計師則在考慮業主家人使用需求的前提下進行了再規劃,以保障能夠滿足不同家庭成員的使用需求。
戶型解析:


融創瀾岸的這套105㎡的三居室主宰整體的戶型結構相對比較平整,幾乎沒有太大的格局缺陷,因此空間設計難度不大。為了提升空間的實密度與美觀度,設計師將玄關處設置了一定的遮擋,避免室內景象直接映入來者眼前。同時,利用大面積落地窗設計,將室外的好風光進入室內,起到較好的室內裝飾點綴效果。
客廳:



大理石打造的電視背景墻清新而又不失高貴感,搭配上對稱式木質結構,平添一抹溫厚柔和之美。
餐廳:


就餐區域被設置在入門玄關的拐角處,有效避免了角落空間的浪費。同時借助一個木質儲物柜起到視覺隔斷的作用。
廚房:

L形的設計保障了廚房空間的合理利用,有有效避免出現轉身困難的情況。深棕色木質儲物柜與白色大理石臺面的碰撞,則讓空間層次感更為豐富。
臥室:


大面積藍色碎花壁紙搭配上木質地板,簡約清新而又耐看。
衛生間:

大面積的淺色瓷磚從視覺上起到放大空間作用,玻璃滑門則讓空間的不同功能區域得到更為明顯的劃分。
案例簡介:現在不少年輕的女孩子都會在婚前購置一套自己的房子,這不僅僅是生活品質的保障,也是個人能力的彰顯,本案例的業主也同樣不例外。作為一個年輕的95后都市白領,她有著自己對生活的領悟,且不喜歡過于花里胡哨的設計。設計師根據業主的喜好選擇了簡約裝修風格,同時將空間進行了再規劃設計,滿足家里來客人時的居住需求。
戶型解析:


廣電蘭亭榮薈的這套二居室住宅面積在90㎡左右,原有的戶型結構細小角落較多,加上原本房屋面積不大,因此需要對整體空間進行更加合理高效的利用。設計師在充分考慮業主使用需求的前提下,將次臥旁邊的瑣碎成一個迷你儲物間,有效避免了空間的浪費。而開放式廚房的設計,則有效節省了室內空間的占用。
客廳:



帶有磨砂質感的純色壁紙搭配上質感柔軟的布藝沙發,讓整個會客區域洋溢著舒適溫馨氣息。
餐廳:



餐廳區域與開放式的廚房設計在一塊區域,有效節約了室內空間。而黑白配色的桌椅簡約耐看搭配以花束,溫馨而又不失情趣感。
臥室:


帶有木質質感的地板貼紙、墻貼強調了空間的自然氣息,藍色床具與灰色曲線沙發則讓空間多一抹柔和明亮氣息。
衛生間:


衛生間面積不大,因此整體選用素雅的色彩進行裝飾,避免從視覺上造成壓迫感。
案例簡介:本案例的業主是一位獨居的年輕女士,作為一個新時代的都市麗人,她對家的理解是能夠充分釋放自己的心靈,不要過多繁瑣的設計。而根據業主介紹,她一般自己一個人居住,父母偶爾會過來陪伴自己。因此設計師在進行本案例的規劃設計時,為業主的家人預留出一個客房,而整體的裝修風格選擇了相對比較簡約而又不失小資格調的簡歐裝修風格,搭配以少量裝飾元素,簡約而又耐看。
戶型解析:


聯發九都國際6期這套二居室住宅的面積為123㎡,整體的戶型結構呈現“L”形,空間犄角少卻格局合理,因此設計師的設計重點放在了功能的劃分上。根據業主起居使用需求,空間左半部分被劃分為休憩空間,中間則被規劃為會客區域,左半側則設計為做飯與就餐空間,整體動靜分區合理,在無形之中提升了生活的品質。
玄關:

玄關處通過墻面材質的碰撞來營造豐富的結構感,木質墻面與水泥墻面將整個墻面劃分為幾何形,簡約耐看中透露著一抹個性氣息。
客廳:

皮質沙發與大理石材質桌子之間通過材質的對比碰撞提升了空間的結構感與層次感,簡約藝術掛畫則彰顯了主人的獨特品味。
餐廳:

光澤感強的桌椅、墻面讓就餐區域有了一抹流光溢彩的高級美,華麗的吊燈與精美的掛畫則賦予空間藝術美感。
廚房:

黑白的經典配色展示了廚房空間的現代美,質感清冷的暖色系瓷磚則透露著大氣端莊,各處小細節均體現著都市麗人對于高品質生活的追求。
案例簡介:本案例的主人是一個二十多歲的年輕女孩,年紀雖然不算大但是卻有著自己的堅持,而在家裝設計上她也有著自己的想法與設計思路,因此設計師在進行本案例設計的時候充分考慮了業主本人的喜好、需求,然后再根據這些進行延伸、拓展,以保障能夠打造出契合業主喜好的家居空間。
戶型解析:



巴黎春天這套143㎡的住宅戶型最大的問題就在于不夠平整,而戶型 不平整所帶來的犄角角落如果不進行合理的規劃設計,那么整個空間不僅會缺乏美觀度,還會造成空間的浪費。而設計師則利用戶型的結構特點,順著犄角空間放置置物臺、浴缸,在無形之中化解了犄角困擾。而其他區域則按照業主的需求進行了一定的再劃分,以滿足日常起居使用。
客廳:

客廳選用了大量歐式元素,如華麗的吊燈、歐式造型家具、復古臺燈等等,這些元素讓整個會客區域看起來更加的華麗精致。
餐廳:

帶有暗紋處理的壁紙搭配上菱形紋理地板,奠定了精致的格調氛圍。而桌椅、吊燈等細節設計,則為空間增添藝術時尚氣息。
書房:

極具藝術氛圍的吊燈搭配上復古的淺色臺燈,將時尚的氣息與歐式復古風情完美交織在一起。
臥室:


臥室沿用了與整個房屋一致的元素,通過各類線條的走向、家具的造型處理營造一種典雅高貴的大氣美。
知精準報價 避裝修深坑
選擇您喜歡的風格
現代輕奢
現代美式
北歐
新中式
歐式
其他
知精準報價 避裝修深坑
選擇房屋面積區間
您的戶型
兩居室
三居室
四居室
五居室
六居室
知精準報價 避裝修深坑
稍等片刻,您的報價正在生中......
知精準報價 避裝修深坑
每日僅限前10名用戶