昏暗的光線、老舊的設施、雜亂的物品堆放、狹小的衛生間……這些都是老房子亟待解決的問題。因此,屋主毅然決定進行全面的翻新改造,以期用全新的面貌來迎接更加高品質的生活。
簡潔、時尚、耐看、通透,是屋主對新居的首要期待。經過深入交流,我們迅速在設計理念上達成一致,決定以隨性自然的黑白灰作為主色調,對空間布局進行精心重組,旨在擴大生活區域,讓自由無拘的氣息充盈于整個居家空間之中。


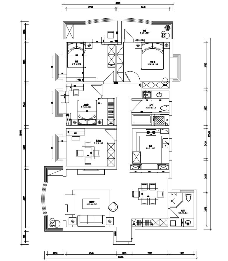
①入戶門直面次衛門,隱私性不佳
②主衛局促,陽臺、走道空間浪費多
③各個空間收納不足,利用率低

優化改造
①優化次衛布局,借用廚房空間嵌入洗漱區,并調整門向,規避大門與次衛門直對。
②擴大主衛,借主臥空間設洗手臺;分割臥室旁走道與陽臺,分別融入室內空間。
③承重墻不動,兩側定制衣柜餐邊柜,增強收納并巧妙遮擋承重柱,美化空間。



在黑白灰的主色調下,客廳彌漫著一股純粹而高雅的氣息,這種色調憑借其強大的包容性和可塑性,勾勒出了一幅和諧而宜居的生活畫卷。
線條,作為這幅畫卷的靈魂筆觸,以精準而富有韻律的比例分割,不僅強化了畫面的結構美,更賦予其震撼人心的視覺沖擊力,使每一處細節都躍然紙上,立體而鮮活。

十字線條勾勒懸浮電視背景,強化輪廓,木色格柵點綴其間,深化空間縱深感,整體設計層次分明,盡顯雅致與立體美學。

將目光聚焦于沙發背景,其設計以簡練線條搭配溫馨的暖光燈帶,僅僅幾筆勾勒,便展現出非凡的藝術韻味與格調。


過多的白色或許會顯得單調,但擺放一款線條圓潤的黑色沙發,不僅引領視覺下沉,還融入了靜謐與安寧的氛圍。一旁蓬勃生長的植物,更為空間增添了一抹清新與生機。

客廳與陽臺融合后,頂面梁體曾略顯突兀,但通過巧妙的斜面設計,現已與頂面流暢銜接。
筆直的線性燈則如同精致的紐帶,將陽臺、客廳與餐廳三個空間無縫串聯,營造出連貫而和諧的視覺體驗。



卓越的收納能力,是構建舒適生活的基礎。
入戶門旁的兩組玄關柜,為居者出門入戶提供了極大的便利。它們不僅承載著收納鞋履、衣物、包包等日常用品的功能,還能兼任餐邊柜的角色,使空間利用更高效。

餐桌的另一側,矗立著真正的餐邊柜。白色柜體融合黑玻酒柜,黑白之間,有藏有露,盡顯簡約而不失格調的生活美學,實用與美觀并存。

餐邊柜背景選用大理石,與端景臺和諧統一,其天然紋理交織冷峻質感,為用餐區域平添一份高貴與典雅,讓每次用餐都成為視覺與味覺的雙重享受。


主臥空間,一襲純白優雅鋪陳,宛如初雪覆蓋,靜謐且圣潔。整體設計沒有多余雜色侵擾,僅余純凈與安詳,悄然拉開每個夜晚甜蜜夢境的序幕。

陽臺無縫融入室內,巨幅落地窗化作自然畫框,將外界風光溫柔引入,讓自然光線肆意流淌,瞬間點亮室內,營造出一種既開放通透又兼顧私密性的生活享受。


擴容后的兒童房,不僅寬敞舒適,完美契合休憩之需,更巧妙融入學習區域,激發孩子無限探索欲。同時,增設了豐富的收納空間,讓每一樣物品都能井然有序。

由陽臺改造的學習區,既蘊含趣味性又兼備濃厚的書卷氣息。學習之余,偶爾眺望遠景,既護眼又讓身心得到放松。

一體式書柜與書桌規劃出簡致的收納體系,功能與美感維持著平衡。這里是學習小天地,也是展示個人手辦收藏的趣味空間,學習與興趣愛好和諧共存。
這個家,足以容納三代共聚一堂
開闊的布局、通透的視野、溫馨的氛圍、精致的細節……這些元素共同構筑了這個家的獨特魅力。
設計之初,我們細致考量居者的需求、喜好與生活方式,精心優化重組空間布局,力求實現多功能一體化。同時,巧妙打造“隱形”收納空間,確保空間通透開闊,為居者打造舒適宜人的生活環境。

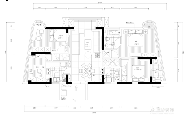
戶型解析
1、入戶無獨立玄關,收納稍顯不足
2、廚房空間小,做不了中西廚分區
3、走道較為狹長,空間有些浪費

優化改造
1、入戶門右側設半高玄關柜,長輩房外定制通頂鞋柜,增強入戶收納功能,優化空間布局。
2、整合餐廳、陽臺與廚房,新布局容納中西廚、儲物空間,并與餐廳融合,實現多功能一體化。
3、公衛內移創造拖地機空間,部分走道融入主臥套間,并借次臥走道定制儲物柜,優化收納。

這個家進門的位置是沒有獨立玄關的,進門就是客餐廳。

這里將右側墻體延伸,將長輩房外側定制的通頂鞋柜完全嵌入,實現“完美隱形”。
半高鞋柜與擺件、綠植巧妙融合,共同打造出充滿藝術氣息的精致端景。



柔和的日光透過玻璃窗,輕撫寬敞的客廳,溫暖的光輝彌漫每一個角落,為居室披上寧靜溫暖的華裳。
隨著日光鋪灑,視野無限延伸,通透的公區宛如居者內心的寬廣天地。這里,靜謐與喧囂并存,既能容納個人的沉思,也能承載全家的歡聚。


天然石材作為地臺,與懸浮電視背景及燈線精妙融合,于靜謐中流露藝術韻味,巧妙平衡休閑與雅致,構筑出別具一格的生活美學空間。

側邊巖板黑白交織,綠意盎然佇立其前,虛實相生間繪就一幅詩意盎然的水墨圖景,賦予平凡日常詩意之美。

陽臺一角,黑玻書柜巧妙嵌入,與電視背景和諧相融。隨手翻閱一本心儀的書籍,悠然落座于柔軟的懶人沙發,盡享寧靜的閱讀時光。

經線條與色塊精心勾勒的沙發背景墻,彰顯出別具一格的簡約與高雅,它完美融入整體家居環境,營造出和諧統一的視覺美感。

夢幻的紗簾將洗衣晾曬區隱藏,確保各功能區間互不干擾,使家居生活更靜謐有序。


改造后的餐廚,不僅空間更大,功能也更齊全。


定制高柜嵌入冰箱,形成一體化設計,既整潔美觀又實用。餐邊柜兼顧西廚功能,頂部增設酒柜,為日常生活增添更多趣味與便利。

餐桌旁并非僅有一面墻,實際上這里藏著隱形門,門后則是一個雜物間,家里不常用的物品都可以妥善收納于此。



無需復雜設計,深色系的半墻護墻板,就將臥室的氛圍渲染得愈發寧靜深邃,讓人不自覺地放松身心,回歸內心的平靜。

次臥經過改造,蛻變為時尚衣帽間,與主臥、主衛融合,共同構筑起一個奢華大套間,為品質生活增添無盡魅力與舒適。

利用窗臺位置定制轉角辦公區,墻體兩側定制滿墻衣柜,實現工作與收納的完美融合。

衛浴干濕分離,采用墻地一體式鋪貼設計,盡顯高級質感,同時帶來清透舒適的洗浴體驗。


毗鄰陽臺的房間,專為長輩休憩打造,淡雅色調營造出寧靜優雅的氛圍,每一寸空間都流淌著對長輩的深情關懷與深深尊重。

兒童房的設計,既注重實用性也兼顧趣味性。

床頭背景墻選用清新的淡藍色,營造出靜謐而雅致的氛圍,同時也為孩子的世界增添了童趣與夢幻的色彩。

窗前設有懸浮書桌,專為孩子閱讀學習而設計。書桌旁是滿墻書柜,轉角處采用弧形設計,有效降低磕碰風險,盡顯父母對孩子細致入微的關愛。
案例解析:該房為業主改善住房,男主人經常出差,比較喜歡酒店風格,女主喜歡健身,喝茶,故在客廳陽臺處設計留了健身區,吧臺區。該房主兒子和父母會偶而來居住,所以另外兩間房都以臥室設計為主,并設置了書桌功能。雖然設計整體很簡單,卻可以滿足自己喜好的同時也滿足了一家人居住的需求。
戶型解析:

方園小區三居室酒店風格住宅的面積是120平方米,經典的三室戶型兩個衛生間保障了居住的便捷性。房間的唯一缺憾便是客廳是比較狹長的,不過電視墻的空間范圍是很大的,完全可以滿足日常中使用的需要。兩個臥室距離比較近,而另外一個臥室則確保了私密性,居住的體驗感很好。
玄關:

現代的鞋柜設計滿足了衣服鞋子的擺放空間,入戶和玻璃之間采取了隔空玻璃的設計,既滿足了隔離感又不會覺得很悶。
客廳:


動靜結合的客廳設計效果理想,沙發椅滿足了日常生活中休閑的需要。客廳陽臺放入了健身器材,在家里便可以隨時健身具有理想體驗。
臥室:


臥室和書寫功能融合為一體,休息之后可以完成自己的工作,床鋪背景墻符合酒店風格,每一天都能夠感受居住酒店的快樂。
案例簡介:該房主為年輕有為的地大教授,孩子上小學,一家三口都非常喜歡看書學習,故臥室里都設置了書柜書桌。業主比較喜歡時尚流行的風格元素,也要求有更多的收納空間,故推薦現代輕奢風格。輕奢的風格融合了一些獨特的設計之后,完全可以滿足業主對于房屋獨特的居住要求。
戶型解析:

中建大廈160平方米四居室是160平方米,整體四居室完全滿足了居住的需要。戶型內部的大客廳窗戶呈現U型,一個簡單的設計便增加了客廳的時尚感。不過這套戶型有一個缺點便是各個臥室距離比較近,臥室的私密性不是很好,只能夠通過裝修的隔音處理來增強每個房間的私密性。
客廳:


客廳餐廳是開放連接并且分布在門的兩旁,使用起來確保便利的同時也實現了理想的空間劃分,現代的布藝沙發和時尚的現代餐桌凸顯了房間的輕奢風格。
餐廳:


白色風格簡單時尚,酒柜和灶臺渾然一體,桌子上綠植使得房屋生機勃勃。
臥室:


飄窗床鋪搭配時尚,主臥兒童房大衣柜滿足了儲物的功能,白色輕奢風格舒適安心。
書房:

大教授平日里工作緊張,空閑時候在自己家里書房和好友玩上幾圈麻將令日子更豐富。
案例簡介:本案例的業主是一對在大城市打拼多年的白領夫妻,兩人對于房屋有著自己的理解,希望設計師能夠幫助自己打造出一個清新優雅而又不失現代時尚氣息的住宅。而根據業主的生活習慣、審美等,在裝修風格上選擇了自由感較強的美式風,而材料的選擇上則更偏向于質感與色彩兼具的,以達到在無形之中裝飾空間的作用。
戶型解析:

舒適的四房兩衛,160平米空間充足,廚房陽臺擴充到廚房,形成一個非常敞亮的廚房,保留客廳陽臺,各區域功能分明。衣帽間拆除,擴充廚房與次臥面積,讓其更寬敞。因是一家三口居住,僅保留兩間臥室,其它次臥均分別改為多功能房與書房。
客廳:

設計感十足的藝術大理石背景墻搭配上簡約木質儲物柜,清冷與溫潤之間的碰撞為空間注入了一抹結構層次美。
廚房:

大面積的推拉窗戶能夠確保廚房油煙盡快釋放,簡約的黑白配色耐看而又不失時尚氣息。
臥室:

帶有紋理設計的木板貼紙溫潤而又不失自然感,搭配上柔軟的床具,強調舒適愜意感。
衛生間:

圓形鏡子搭配上鏤空木質背景墻,簡約而又不失禪意美。
案例簡介:
現代風的時尚氣息與美式風的浪漫風情都是業主都偏愛的,也因此在進行該房屋裝修的時候,融入了兩種裝修風格的設計元素,讓空間在風格的碰撞中呈現出不一樣的美感,讓幸福生活得到更進一步的提升。而色彩的搭配選擇上,則是選用了經典且保守的灰白搭配作為主基調色,以避免空間出現多種裝修風格而顯得過于凌亂。
戶型分析:


位于楚天都市雅園的這套120㎡三居室房屋,空間并非傳統的方正格局,需要將犄角空間進行更加合理的規劃設計,才能保證每一寸空間都不會被浪費。軟隔斷與硬隔斷的搭配使用,讓不同功能空間的劃分有了主次之分,而兒童區域則使用了靚麗的色彩進行裝飾,營造童心韻味。臥室區域則將外墻直接打通設計為落地窗,彰顯空間的明亮格調美。
客廳:

客廳區域使用了經典的灰白色搭配,強調素雅潔凈氣息。幾何放射形圖案的背景墻面則為客廳注入了一抹律動氣息,避免空間看起來過于的素雅單調。
餐廳:

灰色的墻面搭配上山水畫,為餐廳區域奠定了清新氛圍。大面積的置物柜既提升了空間利用率,又可巧妙利用各類物件裝飾點綴空間。
臥室:


淡暖黃色的墻面搭配上幾何圖形地毯,強調一種素雅柔和氣息。大面積的落地窗則確保陽光能夠直接撒落在床上,讓空間多一抹溫暖自然美。
知精準報價 避裝修深坑
選擇您喜歡的風格
現代輕奢
現代美式
北歐
新中式
歐式
其他
知精準報價 避裝修深坑
選擇房屋面積區間
您的戶型
兩居室
三居室
四居室
五居室
六居室
知精準報價 避裝修深坑
稍等片刻,您的報價正在生中......
知精準報價 避裝修深坑
每日僅限前10名用戶